物件を検索する
住所からさがす 沿線・駅からさがす 学校区からさがす特徴からさがす
シンプル検索
住まい・暮らしのサポート
ウィルのスタッフ
デザイン・コンサルティング
ウィルスタジオのスタッフ 
        中古×リフォーム事例 CASE 166-2555
 
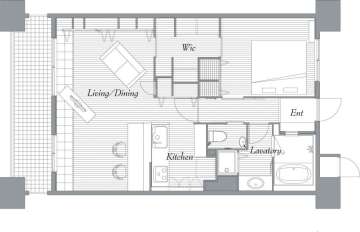
        マンションの概要
 
            BEFORE
 
            AFTER
このマンションがあるエリア
 
            JRへ徒歩4分、阪急へ徒歩7分と駅近好立地での中古×リフォーム。
生活に落とし込んだ間取りで細部にわたってオーダーメイドです。収納もたっぷり。大容量の壁面収納とWICは圧巻。
床材は『クリ』で仕上ています。
 
            ダイニング
 
            リビングダイニング
 
            カウンターデスク
 
            壁面クロゼット
 
            壁面クロゼット(オープン時)
 
            キッチン
 
            キッチン飾り棚
 
            キッチンカウンター飾り棚 観葉植物の緑が映えます
 
            観葉植物のためにタイルを貼った床(リビングダイニング)
 
            オリジナルの扉
としさんが購入したマンションがある街をご紹介しています。ある日の一日の過ごし方も掲載。この街が気に入ったら、周辺エリアの売出し物件を検索することも出来ます。
 
                伊丹市:JR伊丹駅周辺エリア
 
                JR福知山線から猪名川までは工業地域が大部分を占めているため、大小さまざまな工場があるエリアです。ただ、JR福知山線「伊丹」駅から徒歩圏のエリアであることや、駅前に大型商業施設があることからその利便性が住宅地として人気を集め、閉鎖した工場跡地に大規模マンションが建設されています。伊丹1~8丁目には20坪前後の一戸建てやアパート、マンションが混在しており、昔ながらの街並みで道路幅員が狭いところも多くあります。元々、江戸時代中期から市の中心地として酒造業が発展しており、酒蔵、町家、社寺が集まる地区。「伊丹酒蔵通り」と名付けられたJR福知山線「伊丹」駅から西へ延びる通りには、かつての町家の街並や土塀などが再生、整備されており、歴史ある賑わいを感じられます。
人気和菓子屋 キツネイロで整理券をもらう
キツネイロで季節限定どら焼きセットを買う おはぎ、わらび餅も美味しいよ
ヒロコーヒーでブランチ
フローラル花ランドに立寄りリーズナブルな観葉植物や切り花を購入
イオンモール伊丹 東宝シネマで映画鑑賞
奥出雲そば 一福でそばを堪能
同じリフォーム費用の住まい事例
同じエリアにある物件
ウィルでは各分野の専門家がチームを組み、不動産の購入からローン、プランニング、施工まで一貫してお客さまの理想の住まいづくりを強力にサポートします。
家探しの段階から物件の購入、施工、完成、入居までのストーリーをお客さまのコメントとウィルの各分野の専門家のコメントでご紹介しています。
2010.09
                                                                 
                                
共働きの為、交通の便利の良い駅前のマンションを探していました。
日当たり、風通しなど条件をお伝えしたところ、担当の方からきっと私たちの気にいる物件だからと連れて来ていただいたのが現在の住まいです。
不動産エージェント
当社のご提案ご通勤や生活の利便性、また将来的な資産性などを考慮し、駅近でマンションをご希望されておりました。駅近を中心に物件をご覧いただき、最終的に駅近かつ大通りや線路からも離れた静かな立地の素晴らしい物件をご購入いただきました。
2010.09
2010.10
                                                                 
                                
リフォーム担当に、私たちの暮らしぶりや好み趣味をお伝えし、観葉植物を育てるため、床の一部をタイルにすることや、フローリングには栗の木をふんだんに使うこと、浴室には窓を設けること、回遊できるウォークインクローゼットにすることなど多くの希望を叶えていただきました。
住空間コーディネーター
当社のご提案2人住まいには十分だが、決して広くはないスペースを、いかに有効活用するか。収納スペースをガサっと作るのではなく、しっかり小分けにし、それぞれの場所に洋服、リビング雑貨、書籍、掃除道具としっかり役割を担わせ、そのスペース以上のものを持たないように気を付ける。回遊できる廊下を移動導線とし、ウォークインクローゼットのように、ウォーク“イン”するスペース=移動導線、廊下、を作らないことで解決しました。
2010.11
2010.12
住空間コーディネーター
当社のコメント比較的珍しい栗の木の無垢フローリングとタイルの組み合わせは、洋風のインテリアを設えてもどこか懐かしく、和を感じさせる落ち着いた空間になりました。オーダーで作ったネストテーブル(重ね合わせて収納できる大小同型の家具)をご愛用いただいているのであれば嬉しいです。
 
                        
                                                                 
                                
風通しのよいところ
床をタイルにしたことで、多少の水を気にせず観葉植物を育てられること
リフォーム時に作っていただいたテーブルが広く使いやすいこと
床材に使用した栗の木が素足でも快適であること
1.さまざまなご要望をカタチにするフルオーダーメイドのリフォーム
2.物件探しから住宅ローン、リフォームまでワンストップでサポート
3.住宅ローンとリフォームローンをまとめてお得に組めます。
4.毎週、工事の進捗状況をお客様に共有。また売却の際の資産価値UPも目指します。
5.累計工事数1,000件。安心の自社設計・自社施工体制