UNICOのMOLNレザーソファが映えるリノベーション

中古リフォームの事例:UNICOのMOLNレザーソファが映えるリノベーション

中古×リフォーム事例 CASE 224-518

kamoさん
kamoさん(二人暮らし)
マンション×リフォーム 総額 3,230万円 (物件価格2,200万円+リフォーム費用1,030万円) 保存する

マンションの概要

価格
2,200万円
面積
建物 84.39 ㎡
間取り
3LDK
築年月
1985年6月
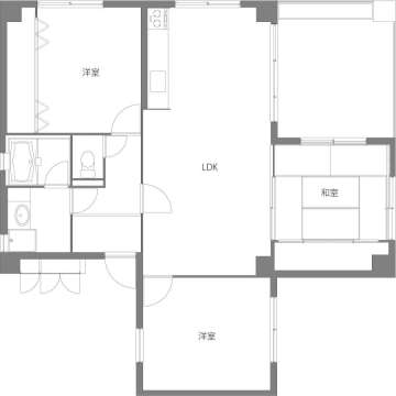
リフォーム図面(ビフォー)

BEFORE

リフォーム

費用
1,030万円
部位
全面
間取り
2LDK
リフォーム図面(アフター)

AFTER

このマンションがあるエリア

交通
北大阪急行線「千里中央」駅徒歩8分
所在
豊中市
エリア
「千里中央駅周辺エリア」詳細
千里中央駅周辺エリアの様子
BEFORE
リフォーム図面(アフター)
AFTER
リフォーム図面(アフター)

完成した住まい

UNICOのMOLNレザーソファをはじめ、
好きな家具や色合い、素材などをまとめた「アイデアノート」を作成されていたお客様。
今回のリノベーションはその「アイデアノート」をもとに、一緒にコーディネートを考えるところから始まりました。
好きな家具があると、家具が映える間取りは?色は?素材は?と考えていきやすいもの。
結果、間取りは大きく変えませんでしたが、
アイランドタイプのキッチンが特徴の、ナチュラルであたたかみのあるお住まいが完成しました。
特に、ドアの色や玄関のタイルの色、LDKの無垢フローリングはお気に入り。
さらに、空調・結露対策で内窓「インプラス」も設置しており、機能性も抜群です。
アイデアノートからのアイデアを形に。
どこを切り取っても絵になる、ひとつひとつにこだわりをこめたリノベーションになりました。

完成写真:1

アイランドキッチンを正面から。まるで、お洒落なカフェのオープンキッチンのよう。

完成写真:2

LDKにはインプラスを取り付け、音と外気温をシャットアウト。白なので目立ちません。

完成写真:3

UNICOのMOLNが鎮座するスペース。観葉植物とグリーンのラグでリラックス空間になっています。

完成写真:4

TVの前にはチェアが2つ。リビングドアの濃いネイビーがアクセント。

完成写真:5

L字型の形状のLDKには無垢フローリングを施工。家具の統一感が素敵です。

完成写真:6

右上にある棚は、実は梁の存在を消すための工夫。梁があるようには見えないですよね?

完成写真:7

背面からの採光が魅力の明るいキッチン。収納力もあります。

完成写真:8

アイランド型専用の換気扇。エアカーテンといわれる層を作り、匂いや煙が周囲に流れていきません。

完成写真:9

リビング隣には、書斎と寝室が。扉の色はクロスに合わせて上品に。

完成写真:10

趣味の本やカメラが並ぶ造作棚は、書斎と寝室の間仕切りを兼ねています。窓際のカウンターも造作。

完成写真:11

それぞれの部屋の扉の色は、現場で最終チェックをしてから決めました。

完成写真:12

子供部屋の扉は薄いパープル。

完成写真:13

玄関の床はモザイクタイル。あえて3種類のシートを使いました。

完成写真:14

子供部屋。鮮やかなグリーンのカーペットが芝生を連想させます。

完成写真:15

洗面室はお洒落なホテルのよう。上部に収納もしっかり確保。

完成写真:16

タンクレスに見えるトイレ。木目パネルの後ろにタンクが隠れています。

このマンションがあるエリア

kamoさんが購入したマンションがある街をご紹介しています。この街が気に入ったら、周辺エリアの売出し物件を検索することも出来ます。

千里中央駅周辺エリアの様子

豊中市:千里中央駅周辺エリア

千里中央駅周辺エリアのイメージマップ

「千里ニュータウン」の中心に位置するのが、この千里中央エリアです。1970年(昭和45年) 万国博覧会の頃にまちびらきが行われています。千里中央からは梅田、新大阪、大阪空港に直接アクセスでき、交通の便が優れている他、駅前には、千里阪急百貨店、大丸ピーコック、せんちゅうパルなどの買物施設も充実します。また駅周辺の住宅地は、整然とした区画になっており、道幅も広く、一戸建ては、土地面積が80坪を超える広い敷地のものが多く見られます。しかしまちびらきから40年が経過し、老朽化などから、再整備が行われています。規制緩和もあり、中層の団地の建て替え、商業、ビジネスエリアでの住宅開発が進んでいます。ますます住宅地としての魅力が増しているエリアだと言えます。

同じリフォーム費用の住まい事例

Loading...

同じエリアにある物件

Loading...

この住まいを担当したスタッフ

ウィルでは各分野の専門家がチームを組み、不動産の購入からローン、プランニング、施工まで一貫してお客さまの理想の住まいづくりを強力にサポートします。

Loading...

家探しからリフォーム完成まで

家探しの段階から物件の購入、施工、完成、入居までのストーリーをお客さまのコメントとウィルの各分野の専門家のコメントでご紹介しています。

  • 2012.01

    家探しスタート

    kamoさん kamoさんお客さまのご希望

    新築マンションを検討していましたが、同じような間取りで魅力を感じずに困っていたところ、担当営業の藤田さんから築古マンションのリノベーションの提案を頂きまして。出来上がりなどが不安でしたが、実際にリノベーションした物件を見学させて頂き、一気にその気になりました。リノベーションを決めてからは、間取りなどは気にせず、立地重視であっという間に今の物件に決まりました。

    藤田 佳代子 不動産エージェント 藤田 佳代子 (ふじた かよこ)

    当社のご提案

    千里中央徒歩圏の一般的な築浅マンションにお問い合わせを頂きましたが、ご案内している中で、お客様の好み等をお伺いし、デザイナーズマンションのリフォームをお勧めしました。実際にリフォームした弊社の社員の自宅をご案内し、リフォームのイメージを持って頂いた後、十分な広さのある立地重視の管理の良い築古マンションをご購入頂きました。

  • 2012.04

    マンションの購入
  • 2012.04

    プランニング

    kamoさん kamoさんお客さまのご希望

    好きな素材、アイデアなどをとにかく雑誌から、ウィルさんのリノベーション事例から集めました。自分達の好きなものに囲まれた、居心地の良い空間したいと思っていました。

    島袋 幹也 住空間コーディネーター 島袋 幹也 (しまぶくろ まさや)

    当社のご提案

    「スキ」を集めたリノベーション。肝になったのは「どの壁を抜いて広いLDKにするか」、「キッチンを対面にするか」でした。キッチンは大きくなくていいからアイランドで回遊できる空間にしたいとのことだったので、排水経路の都合で上げた床レベルの上にステージのようにキッチンを配置しました。

  • 2012.07

    施工スタート 施工中の写真 施工中の写真 施工中の写真 施工中の写真 施工中の写真
  • 2012.09

    完成

    島袋 幹也 住空間コーディネーター 島袋 幹也 (しまぶくろ まさや)

    当社のコメント

    LDKは無垢のフローリングで仕上げ、落ち着いた雰囲気に。室内窓や各部屋のドアの色を変えることで、テイスト感はかえずに、施主様の「スキ」を盛り込みました。作り込んだ造作の洗面化粧台は可愛く仕上がったことはもちろん、収納力もしっかり確保しています。

  • 2012.09

    入居 施工中の写真

    kamoさん kamoさんお客さまのコメント

    とにかく、家で過ごすことが好きになりました。リラックスして過ごすことができます。

ウィルの中古×リフォームが選ばれる5つの理由

1.さまざまなご要望をカタチにするフルオーダーメイドのリフォーム

2.物件探しから住宅ローン、リフォームまでワンストップでサポート

3.住宅ローンとリフォームローンをまとめてお得に組めます。

4.毎週、工事の進捗状況をお客様に共有。また売却の際の資産価値UPも目指します。

5.累計工事数1,000件。安心の自社設計・自社施工体制

詳細を見る

リフォームに関するお問合せ

株式会社ウィルのフロアの様子

株式会社ウィル空間デザイン

フリーダイヤル

0120-296-753
住所
名古屋市中区錦3-15-9 4Fmap
営業時間
10:00~19:00 定休日 水・木
対応エリア
関西・名古屋・東京 詳細 対応エリア 関西(阪神間・北摂・大阪)エリア 神戸市(灘区・東灘区)、大阪市※、芦屋市、西宮市、宝塚市、尼崎市、伊丹市、川西市、猪名川町、豊能町、豊中市、吹田市、箕面市、池田市、摂津市、茨木市、高槻市、島本町 名古屋エリア 名古屋市、尾張旭市、長久手市、日進市、瀬戸市、春日井市、大府市 東京エリア 東京23区※、川崎市※、川口市 ※一部の区を除く
お名前を入力してください。
電話番号を入力してください。
メールアドレスを入力してください。

お問合せ内容を選択してください。必須

任意

スマホやパソコンのビデオ通話機能を使って住まいに関する様々なご相談ができます。

任意

具体的なご相談内容を選択してください。必須

任意
ご入力いただいた個人情報は、このサービスを提供する株式会社ウィルの個人情報保護方針に則って厳重に管理します。 お問合せ内容を、個人情報の取り扱いに関する基本姿勢に同意の上、送信してください。

住まいをつくる

リフォームの事例写真

中古住宅を買ってリフォーム

中古住宅の購入とリフォームをセットで行うと、ライフスタイルや好みに合った住まいを実現できます。

十二十家具イメージ画像

十二十家具オンラインストア

当社が運営しているインテリアショップです。日々の暮らしが豊かになる良質な家具を取り揃えています。

期間報酬制度

家を売るとき、手数料最大半額

家を売るとき、取引成立時期に応じて手数料が最大半額。節約できたコストを売主様に還元します。

平日会員制度

家を買うとき、手数料30%OFF

平日利用の家探しで、手数料が30%割引。営業稼働率を上げて生まれる利益を買主様に還元します。

『検索条件の保存』にはログイン、またはウィルWEB会員の登録が必要です。

ウィルWEB会員の登録

お名前を入力してください。
メールアドレスを入力してください。
電話番号を入力してください。
パスワードは8〜20文字で、また半角英字、数字を最低1文字以上使用してください

※パスワードは半角英数字で8〜20文字。また英字、数字それぞれ1文字以上使用してください。

必須

現在、住まいに関して検討されていることを教えてください。(複数回答可)

任意

ご質問、ご要望などございましたら、ご自由にお書きください。
また、お住まいの購入をご検討の方は、物件の広さなどご希望条件を教えてください。

ご入力いただいた個人情報は、このサービスを提供する株式会社ウィルの個人情報保護方針に則って厳重に管理します。お問合せ内容を、個人情報の取り扱いに関する基本姿勢に同意の上、送信してください。