1名保存
新築

西宮市青葉台1丁目 新築一戸建て

3,980万円
すべての写真(17枚)を⾒る
所在
西宮市 青葉台1丁目
交通
JR福知山線「 生瀬 」駅徒歩6分
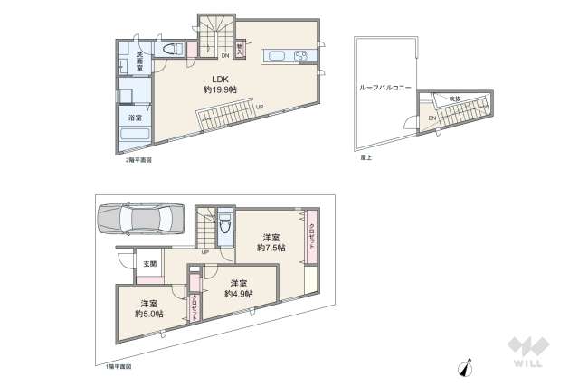
建物
99.02平米 / 3LDK / 2025年2月築
土地
95.22平米 / 南西・南東向き
学校
生瀬小学校 / 塩瀬中学校
西宮市青葉台1丁目 新築一戸建ての地図

物件所在地はおおよその位置です。ウィルWEB会員に登録すると正確な場所が表示されます。

南東・南西の角地につき採光・通風良好、広々ルーフバルコニー付き新築戸建 第1種低層住居専用地域内
ポイント
★JR福知山線「生瀬駅」徒歩6分!
★第1種低層住居専用地域!
★南東・南西の角地につき採光・通風良好!
★接道間口約12.7m!
★ルーフバルコニー付き!
★2階リビング!
★『生瀬小学校』徒歩13分!
★『コープミニ生瀬』徒歩5分!
★『武庫川』徒歩3分!
チェックポイント ◇別途費用374万円
◇『塩瀬中学校』徒歩28分

特徴

  • 新築
  • 南道路
  • 買物施設10分以内
  • 低層住居地域
  • 角地

担当者のコメント

この物件はJR福知山線「生瀬駅」から徒歩6分、『西宮市青葉台1丁目』にある新築一戸建てです。
周辺は、第1種低層住居専用地域に指定された一戸建てが立ち並ぶ住宅地。周囲を山に囲まれ、近くを武庫川が流れる自然豊かな住環境。この辺りの武庫川は渓谷の様相。上流に向かって伸びる川沿いの廃線敷の散策路は、ハイカーに人気。散策路沿いには『桜の園(亦楽山荘)』もあります。地勢は高台で、標高は約80m。道幅4m前後の道路が多く、街路はほぼ整っています。生垣や庭木のある家が多く、町中も緑豊か。高速道路のインターチェンジまでは距離があります。
敷地面積は約28坪。敷地の南西と南東が接道し、採光・通風良好。車1台分の駐車スペースがあります(車種による)。間取りは延床面積99.02平米の3LDK。ルーフバルコニー付き、2階リビングのプラン。現況は完成済みです。別途、外構費用1,540,000円、建築確認費用660,000円、水道工事費用880,000円、地盤・建物保証料660,000円が必要です。詳細についてはお問合せください。
教育施設は『ALOHA保育園』徒歩5分、『生瀬幼稚園』徒歩7分、『生瀬小学校』徒歩13分、『塩瀬中学校』徒歩28分。最寄りのスーパーは『コープミニ 生瀬』徒歩5分。その他『武庫川』が徒歩3分、『医療法人社団緑水会 北摂中央病院』と『塩瀬支所生瀬分室』が徒歩13分の距離にあります。

担当者

木本 茉那 木本 茉那(きもと まな) 宅地建物取引士

設備

  • 食器洗浄機
  • 浄水器
  • IHクッキングヒーター
  • ディスポーザー
  • TV付き浴室
  • 浴室乾燥機
  • ミストサウナ
  • 追焚機能
  • シャンプードレッサー
  • 洗浄便座
  • ペアガラス
  • オール電化
  • 太陽光発電
  • 24時間換気システム
  • 床暖房
  • 電動シャッター雨戸
  • スロップシンク
  • TV付きインターホン
  • オートロック
  • 宅配ボックス
  • ロフト

費用

外構費用
1,540,000円(一括)

建築確認費用
660,000円(一括)

水道工事費用
880,000円(一括)

地盤・建物保証料
660,000円(一括)

ヒストリー

  • 2024.11.13

    本サイトに公開

  • 2025.02.01

    新築

  • 現在

  • 2025.12.28

    情報更新予定

※本サイトに公開:この物件がこのサイトに掲載された日です。※価格変更:この物件の価格がこのサイトで変更された日です。※情報更新予定:この物件の販売の継続、価格変更の有無など確認が行われ、情報が更新される予定の日です。

お問合せ

物件番号644688R

ウィル不動産販売 宝塚本店 詳細

フリーダイヤル0120-491-930
住所
宝塚市逆瀬川1-14-6
営業時間
10:00~19:00 定休日なし 
※年末年始除く

お名前・メールアドレスを入力してください。

お名前を入力してください。
電話番号を入力してください。
メールアドレスを入力してください。

お問合せ内容を選択してください。必須

ご質問・ご相談内容を入力してください。
任意
ご質問・ご相談内容を入力してください。
請求する資料を入力してください。
ご入力いただいた個人情報は、このサービスを提供する株式会社ウィルの個人情報保護方針に則って厳重に管理します。 お問合せ内容を、個人情報の取り扱いに関する基本姿勢に同意の上、送信してください。

交通

「西宮市青葉台1丁目 一戸建て 3,980万円」の最寄り駅、駅との高低差、ターミナル駅から終電時刻、バス停の時刻表など交通に関する情報をご案内しています。また行き先の駅はカスタマイズできます。

最寄り駅

JR福知山線「生瀬」駅の外観

JR福知山線「生瀬」駅

西宮市生瀬町1丁目1-13物件から 徒歩6分
停車する電車
普通
サービス施設
みどりの窓口 6:30~21:00 定期券がお求めになれる券売機 6:30~23:00

駅までの道のり(高低差)

駅・空港へのアクセス

この物件兵庫県西宮市青葉台1丁目
6
JR「生瀬」駅物件から約 6
30
最終: 24時13分
物件から約 36
JR「新大阪」駅物件から 26km 関西国際空港物件から 70km 大阪国際(伊丹)空港物件から 15km 神戸空港物件から 37km

周辺環境

「西宮市青葉台1丁目 一戸建て 3,980万円」の住環境、近くにあるとうれしいとっておきのスポット(注目スポット)、街の住心地の口コミ(街の人の声)、当社の契約者からご回答いただいたアンケートなどをご紹介しています。

周辺環境 周辺環境 周辺環境 周辺環境

『生瀬駅周辺エリア』は、宝塚市との境界近くにある住宅地です。『生瀬武庫川町』には規模の大きなファミリーマンション『セルヴィオ』が並んでいますが、それ以外は区画の大きな一戸建てが立ち並ぶ、ニュータウンのような街並みです。近くを武庫川が流れ、六甲山系の緑に囲まれた、自然豊かな住環境。山手の住宅地のため、エリア内は勾配の急なアップダウンが多くあります。国道176号線が走っているので、車での移動はスムーズ。宝塚にも近く、車があればそれほど不便と感じることもないのではないでしょうか。 詳細

注目スポット

注目スポット
武庫川 詳細
所在:西宮市塩瀬町生瀬物件から徒歩 3

(1件の口コミ)

宝塚市・西宮市・伊丹市・尼崎市を流れる『武庫川』。下流域はサイクリングコースや公園が整備されていますが、この上流域は岩場やゴツゴツとした岸壁が渓谷の様相です。川の風が心地よく、ゆったりとした気分になります。生瀬からスタートする武庫川沿いのJR廃線跡は、今も枕木が残されていて風情のある道。トンネルも当時のものが残されており、ハイキングを楽しむ人が多くいます。(2020.07.27時点)

注目スポット
ナチュールスパ宝塚 詳細
所在:宝塚市湯本町9-33物件から 約2.7km

(2件の口コミ)

宝塚市武庫山2丁目の源泉を利用した温泉施設です。この辺りは古くから宝塚温泉として栄えた場所。その歴史を引き続ぐ施設です。武庫川にかかる宝来橋もよく見える施設建物の設計は安藤忠雄によるもの。コンクリート打ち放しの斬新なデザインが特徴です。6つのフロアの内、2フロアは女性専用。男女兼用の露天ジャグジーや岩盤浴もあります。

注目スポット
塩瀬中央公園 詳細
所在:西宮市東山台5-10-1物件から 約2.7km

(4件の口コミ)

『塩瀬中央公園』は、東山台5丁目にある、敷地面積約22万平方メートルの公園です。斜面地を利用した広々とした公園で、4面のテニスコート、多目的広場、体育館などがあります。公園の1番下には『冒険広場』があり、中でも約80mのすべり台は大人でも十分楽しめます。また森の散歩道は、木々に囲まれ、森林浴を楽しめます。(2020.07.27時点)

街の人の声

この街ボイス画像:ゆゆこ さん(当社のご契約者)

ゆゆこ さん(当社のご契約者)

西宮市宝生ケ丘1丁目在住

女性/45歳/4人家族(うち子ども3人)

子育て便利な立地です! 自慢できること 子育てに便利です。生瀬駅は徒歩圏内でこじんまりとした駅で駅入口の改札入りすぐ電車に乗り込める距離感。駅前のミニコープで基本な主婦が使う具材は全て揃っています。生瀬駅徒歩2分に、運動場備えた保育園が新設されています。宝生ケ丘1丁目は、下部ですと、駅は宝塚駅も徒歩圏内で抜け道たくさんあります。近くの小学校は、児童数、1学年2〜3クラス。こじんまりしてます。小学生は、近くの大型マンション中庭と併設公園で、毎日誰かが遊んでいます、マンション以外の子も。近年、コミュニティバスも運行していますから、宝生ケ丘へもきてけれ、それで宝塚駅へも可能。宝塚駅にいくと、なんでもあります。移動もJR、阪急があり、バスですが阪神バスあり、オールマイティです。西宮北部ですが、支所が名塩駅前にあります。春先は、毎年ウグイスがきてくれ、四季を感じることができます。 気になること 坂がありますが、下部の宝生ケ丘でしたら、苦にはならないと思います。自治会が高齢化しているので、自治会に入ると、忙しくなります、役によっては。とて、自治会は強制ではありません。入っていない方もいます。

この街ボイス画像:ぐり さん(当社のご契約者様)

ぐり さん(当社のご契約者様)

西宮市生瀬高台在住

女性/41歳/1人家族

四季を感じる美しい町です。 自慢できること 山が近くて季節の変化を身近に感じられます。野鳥の姿を見かけることも多く、自宅の庭の木にもよくやってきてくれ、とても癒されます。空が広く、晴れた日の夕方に日が暮れていく時間帯はとても美しいです。また、夜は星がきれいで、以前のマンション住まいでは体験できなかった暮らしができています。周辺はとても静かで暮らしやすい。買い物に出るには車が必需品ではありますが、10分ほど走ればスーパーや100均もあり、とても気に入っています。 気になること とにかく坂が急で、自転車での移動は不可能です。まだ冬を迎えていないので凍結が心配…。駅には歩いて行けますが、車無しで買い物に行くにはかなり不便です。山に近い住宅街なので、夜はかなり暗く、夜道を一人で歩くのには不安があります。街灯を増やしてほしいです。高齢になってくると、ここで生活するのは少し難しいかなと思っています。

この街ボイス画像:タイガー さん(当社のご契約者様)

タイガー さん(当社のご契約者様)

西宮市宝生ケ丘1丁目在住

男性/57歳/6人家族(うち子ども4人)

地域全体に真面目な子供が多い! 自慢できること 交通のアクセスが良く、周りの人も仲良く環境の良い地域です。特に夜は静かでぐっすり眠れます。子ども達の学校も仲が良く、高校の校区は成績優秀な高校が多く、兵庫県でも優秀な1~2番の高校もあり、地域全体に真面目な子供がたくさんいます。 気になること 大型のショッピングモールが近くにないので、車は無いと買い物に行けないこと。中学校の登校はバスなので少し定期代がかかります。西宮市で中学校のバス登校の定期代を負担していただけたらと思っています。

買物施設

「西宮市青葉台1丁目 一戸建て 3,980万円」最寄りのスーパーマーケットの営業時間、駐車場の有無、概要、物件との距離・高低差をご紹介しています。
コープミニ 生瀬

コープミニ 生瀬

西宮市生瀬町2-2-2 物件から徒歩 5
営業時間:9:00~21:00 概要:JR福知山線「生瀬」駅の南側、生瀬町の住宅街の中にあります。食料品を中心に取り扱っています。 (2020.07.18時点)

教育施設

「西宮市青葉台1丁目 一戸建て 3,980万円」の保育所、幼稚園、小学校、中学校までの距離と高低差、また当社のお客様からいただいた口コミ情報を掲載しています。
生瀬幼稚園

生瀬幼稚園 詳細

西宮市生瀬町2丁目3-16 物件から徒歩 7
年齢 4歳児、5歳児 募集定数 65名 昭和25年創立の、歴史ある公立の幼稚園。「生瀬」駅から徒歩3分の、山々の木々の緑が美しい、自然豊かな環境です。春になると大きな桜の木が見事な花を咲かせ、大変綺麗です。 (2020.07.27時点)
生瀬小学校

生瀬小学校 詳細

西宮市生瀬町2-26-24 物件から徒歩 13

(1件の口コミ)

『生瀬小学校』は、JR福知山線「生瀬」駅から南東方向へ徒歩9分、『生瀬町2丁目』にある西宮市立の小学校です。周辺は森に囲まれた緑豊かな環境。近くには神社やお寺もあり、東方向を武庫川が流れています。明治16(1873)年、生瀬村揚明小学校と称して創設。昭和26(1951)年に現在の生瀬小学校となりました。
塩瀬中学校

塩瀬中学校 詳細

西宮市名塩木之元2-8 物件から徒歩 28

(1件の口コミ)

『塩瀬中学校』は、JR宝塚線「西宮名塩駅」から南東方向へ徒歩約2分、「西宮市名塩木之元」にあるニュータウンの南に位置する公立中学校。学校周辺は木々が生い茂り、二級河川の名塩川が流れる自然豊かな場所です。昭和22年4月1日創立。教育目標は「人間尊重の精神に基づき、たしかな学力を身につけた人間性豊かな生徒の育成」などです。

物件データ

「西宮市青葉台1丁目 一戸建て 3,980万円」の所在、交通、広さなどの物件データ。物件概要ともよばれ、物件のことを理解する基本的な事項について書いています。ご不明な用語などありましたら、お気軽にお問合せください。

所在地
兵庫県西宮市青葉台1丁目
交通
JR福知山線「生瀬」駅徒歩6分
→JR福知山線沿線の不動産
→JR福知山線「生瀬」駅の不動産
建物建築年月
2025年2月
構造・階数
木造 2階建
土地面積
95.22㎡
建物面積
99.02㎡
間取り
3LDK
接道状況
南西側幅員約12.1mの公道に約9.2m接道
南東側幅員約5mの公道に約12.7m接道
セットバック
私道負担面積
駐車場
有(1台)
路地状部分
傾斜地部分
現況
完成済
引渡
即時
設備
上下水道/都市ガス
建築確認番号
第KKK02401079号
販売戸数
1区画
総戸数
1区画
用途地域
第1種低層住居専用地域
国土法
不要
取引態様
媒介(仲介)
小学校区
生瀬小学校
→生瀬小学校区内の不動産
中学校区
塩瀬中学校
→塩瀬中学校区内の不動産
物件番号
644688R
※高度地区、景観法、宅地造成等工事規制区域、河川法、都市再生特別地区

※ 図面と現況が異なる場合は、現況優先と致します。
※ 掲載物件は成約済み・売却中止となる場合があります。
※ 成約の際は仲介手数料とこれにかかる消費税が必要です。(当社が売主の物件除く)
※ 写真に写っている、またはパース(絵)や間取り図に描かれている家具や車などは、特にコメントがない場合、物件価格に含まれません。
※ 価格は物件の代金総額を表示しており、消費税が課税される場合は税込価格です(1000円未満は切り上げ)。
※ コメント内に記載している土砂災害警戒区域は、土砂災害特別警戒区域に指定されている箇所も含んでおります。
※ 洪水浸水想定区域、土砂災害危険箇所、土砂災害警戒区域の指定状況については最新データとは限りません。最新データ・詳細なリスクの程度・範囲などについては各自治体の「ハザードマップ」をご確認下さい。

検索条件が似た物件

Loading...

不動産の購入に関するお問合せ

ウィル不動産販売 宝塚本店

ウィル不動産販売 宝塚本店詳細

フリーダイヤル

0120-491-930
営業時間
10:00~19:00 定休日なし
※年末年始除く
対応エリア
関西・名古屋・東京 詳細 対応エリア 関西(阪神間・北摂・大阪)エリア 神戸市(灘区・東灘区)、大阪市※、芦屋市、西宮市、宝塚市、尼崎市、伊丹市、川西市、猪名川町、豊能町、豊中市、吹田市、箕面市、池田市、摂津市、茨木市、高槻市、島本町 名古屋エリア 名古屋市、尾張旭市、長久手市、日進市、瀬戸市、春日井市、大府市 東京エリア 東京23区※、川崎市※、川口市 ※一部の区を除く
免許番号
国土交通大臣 (5)第6447号
加入団体
公益社団法人首都圏不動産公正取引協議会 
お名前を入力してください。
電話番号を入力してください。
メールアドレスを入力してください。

お問合せ内容を選択してください。必須

任意
ご質問・ご相談内容を入力してください。

スマホやパソコンのビデオ通話機能を使って住まいに関する様々なご相談ができます。

任意

具体的なご相談内容を選択してください。必須

ご入力いただいた個人情報は、このサービスを提供する株式会社ウィルの個人情報保護方針に則って厳重に管理します。 お問合せ内容を、個人情報の取り扱いに関する基本姿勢に同意の上、送信してください。

西宮市の戸建の売却をお考えの方へ

下記ページにて、西宮市の戸建の現在の売却市況や購入希望者数、ライバル物件数、過去の成約データなどをご覧いただけます。
また無料で、価格査定や相場資料の提供を行っています。お気軽にお問合せください。

※上記の売却情報は、2025年11月末時点での値です。毎月、1ヶ月ごとの累計で集計をしているため、現在のリアルタイムでの値とは差異がある場合があります。

関連リンク

近くのエリアから一戸建てを探す
近くの町名から一戸建てを探す
リフォームの事例写真

中古住宅を買ってリフォーム

中古住宅の購入とリフォームをセットで行うと、ライフスタイルや好みに合った住まいを実現できます。

十二十家具イメージ画像

十二十家具オンラインストア

当社が運営しているインテリアショップです。日々の暮らしが豊かになる良質な家具を取り揃えています。

期間報酬制度

家を売るとき、手数料最大半額

家を売るとき、取引成立時期に応じて手数料が最大半額。節約できたコストを売主様に還元します。

平日会員制度

家を買うとき、手数料30%OFF

平日利用の家探しで、手数料が30%割引。営業稼働率を上げて生まれる利益を買主様に還元します。

『検索条件の保存』にはログイン、またはウィルWEB会員の登録が必要です。

ウィルWEB会員の登録

お名前を入力してください。
メールアドレスを入力してください。
電話番号を入力してください。
パスワードは8〜20文字で、また半角英字、数字を最低1文字以上使用してください

※パスワードは半角英数字で8〜20文字。また英字、数字それぞれ1文字以上使用してください。

必須

現在、住まいに関して検討されていることを教えてください。(複数回答可)

任意

ご質問、ご要望などございましたら、ご自由にお書きください。
また、お住まいの購入をご検討の方は、物件の広さなどご希望条件を教えてください。

ご入力いただいた個人情報は、このサービスを提供する株式会社ウィルの個人情報保護方針に則って厳重に管理します。お問合せ内容を、個人情報の取り扱いに関する基本姿勢に同意の上、送信してください。