NEW キッチンが主役!グレージュを基調としたモダンリノベーション

中古リフォームの事例:キッチンが主役!グレージュを基調としたモダンリノベーション

中古×リフォーム事例 CASE 417-9795

ルミさん
ルミさん(二人暮らし)
マンション×リフォーム 総額 10,516万円 (物件価格4,100万円+リフォーム費用6,416万円) 保存する

マンションの概要

価格
4,100万円
面積
建物 145.83 ㎡
間取り
3LDK
築年月
1990年2月
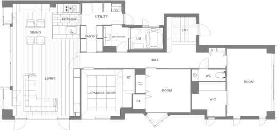
リフォーム図面(ビフォー)

BEFORE

リフォーム図面(アフター)

AFTER

このマンションがあるエリア

交通
阪急宝塚線「岡町」駅徒歩9分
所在
豊中市
エリア
「岡町駅以東・岡上の町・桜塚周辺エリア」詳細
岡町駅以東・岡上の町・桜塚周辺エリアの様子
BEFORE
リフォーム図面(アフター)
AFTER
リフォーム図面(アフター)

完成した住まい

長年海外にお住まいのお客様。ご主人様の定年退職を機に帰国されることになり地元関西で家を探されていました。海外での生活スタイルを変えずに、無垢フローリング漆喰など希望のリフォーム内容を実現。キッチンはオーダーキッチンのCUCINAを採用。リビング空間の主役になっています。空間全体はグレージュで統一しスタイリッシュな空間になりました。

完成写真:1

【before】
広々としたダイニングでフローリングは落ち着いたウォールナット。
キッチン前に壁があり、ⅬDKの繋がりが感じにくい空間でした。。。

完成写真:2

【before】
全面タイル貼のお風呂で高級感がありました。
トーンが落ち着いていて、少し暗い印象でした。

完成写真:3

【DINING】
キッチンの隣にダイニングスペースを作りました。
ダイニングテーブル上にペンダントライトがくるようにレイアウト。お気に入りの照明が良く映えています。

完成写真:4

【KITCHEN】
キッチンはCUCINAのオーダーキッチン。
食器棚も同メーカーで揃えました。
キッチンと壁のタイルはグレー色で統一しました。

完成写真:5

【LIVING】
フローリングはマルホンの無垢フローリングを使用。
濃淡があることにより、表情のある空間になっています。

完成写真:6

【BATHROOM】
お風呂はTOTOのシンラを採用。
カラーや照明で高級感のあるお風呂になっています。

完成写真:7

【ENTRANCE】
玄関収納もキッチンと同じCUCINAです。
扉と玄関タイルのカラーを合わせることでまとまりのある空間になりました。
玄関床と壁面のタイルの目地ラインを揃えるこだわりも!

完成写真:8

【JAPANESEROOM】
元々ある和室をサイズダウンして琉球畳に。
和の雰囲気は残しつつ、モダンな印象にしています。

このマンションがあるエリア

ルミさんが購入したマンションがある街をご紹介しています。ある日の一日の過ごし方も掲載。この街が気に入ったら、周辺エリアの売出し物件を検索することも出来ます。

岡町駅以東・岡上の町・桜塚周辺エリアの様子

豊中市:岡町駅以東・岡上の町・桜塚周辺エリア

岡町駅以東・岡上の町・桜塚周辺エリアのイメージマップ

阪急宝塚線「豊中」駅、「岡町」駅、「曽根」駅の東側にあるこの『岡町駅以東・岡上の町・桜塚周辺エリア』は、「塚」の地名の通り、古墳が多く残る場所です。これらの古墳は、桜塚古墳群と呼ばれ現在も街中に溶け込むように存在しており、歴史ある落ち着いた街並みを形成しています。道幅も比較的広く、区画の整ったエリア。お屋敷のような一戸建てや、敷地面積20坪~30坪の一戸建て、マンション、アパートが混在しています。駅徒歩圏でありながら緑豊かで閑静であるため、住宅地として大変人気があります。古くからの商店街やスーパーが点在し、生活利便性が高いことも人気の理由のひとつです。エリアの中央には、豊中市役所や、警察署、簡易裁判所などがあり、まさに豊中市の中心地と言えます。

ルミさんのある日の一日

07:00

朝起きて ワンちゃんと朝の散歩 約20分

10:00

服部緑地で散歩

12:00

近くのいかりスーパーで買い物。昼食

13:00

健康維持の為fitness

15:00

お昼寝タイム

同じエリアにある物件

Loading...

使用した素材と設備

Loading...

この住まいを担当したスタッフ

ウィルでは各分野の専門家がチームを組み、不動産の購入からローン、プランニング、施工まで一貫してお客さまの理想の住まいづくりを強力にサポートします。

Loading...

家探しからリフォーム完成まで

家探しの段階から物件の購入、施工、完成、入居までのストーリーをお客さまのコメントとウィルの各分野の専門家のコメントでご紹介しています。

  • 2023.04

    家探しスタート

    ルミさん ルミさんお客さまのご希望

    生活施設の利便性、街の治安、広さ、セキュリティを重視して家探しをしていました。
    自分の好きな様にリノベーションしたかったのでリノベーションしていない物件を希望していました。

    河内 亮太 不動産エージェント 河内 亮太 (かわち りょうた)

    当社のご提案

    アメリカから日本への帰国を機にお住まい探しを始められたお客様。一時帰国の際にフラッと立ち寄っていただいたのが弊社でした。それからおよそ半年、帰国されるまでアメリカと日本でメールでやり取りしながらお住まいをご提案させていただきました。
    アメリカでの生活がほとんどだったため、広さの取れた住戸であることや、ワンちゃんと3人での暮らしになることから、ペット飼育可能な物件であることなど、様々なハードルを乗り越えた先に良いお住まいを見つけることができました。
    お二人で理想のお住まいを作りたいというところで、リフォームのご提案をさせていただき、使いやすい間取りはそのままに、細部にまでこだわったお住まいになりました。
    日本での終の住処であることや、奥様の理想を叶えたいというご主人様の想いを感じる家探しになったことを今でも覚えています。

  • 2023.10

    マンションの購入
  • 2023.12

    プランニング

    ルミさん ルミさんお客さまのご希望

    なるべく壁は漆喰、床は無垢など拘りました。全体的にスタイリッシュになる様にお願いして娘の様な担当者さんと楽しみながら出来たと思います。

    春岡 朋花 住空間コーディネーター 春岡 朋花 (はるおか ともか)

    当社のご提案

    間取り変更の可能性や既存梁の活かし方を検討しながら、物件探しから同行させていただきました。
    LDKの折り上げ天井と間接照明で奥行きを演出。キッチンや洗面の水回りは回遊動線を取り入れ、デザイン性と機能性を両立させています。
    無垢フローリングや漆喰で素材感を出し、オーダーメイドのキッチンや洗面台、テレビボード、シューズボックスを中心にトーンを統一し、素材の温かみと上質感が調和する住空間に仕上げました。

  • 2024.03

    施工スタート 施工中の写真

    施工中の様子

    玄関 廊下 リビング キッチンスペース トイレスペース
  • 2024.06

    完成
  • 2024.07

    入居 施工中の写真

ウィルの中古×リフォームが選ばれる5つの理由

1.さまざまなご要望をカタチにするフルオーダーメイドのリフォーム

2.物件探しから住宅ローン、リフォームまでワンストップでサポート

3.住宅ローンとリフォームローンをまとめてお得に組めます。

4.毎週、工事の進捗状況をお客様に共有。また売却の際の資産価値UPも目指します。

5.累計工事数1,000件。安心の自社設計・自社施工体制

詳細を見る

リフォームに関するお問合せ

株式会社ウィルのフロアの様子

株式会社ウィル空間デザイン

フリーダイヤル

0120-296-753
住所
宝塚市逆瀬川1-14-39map
営業時間
10:00~19:00 定休日 日、水曜日
対応エリア
関西・名古屋・東京 詳細 対応エリア 関西(阪神間・北摂・大阪)エリア 神戸市(灘区・東灘区)、大阪市※、芦屋市、西宮市、宝塚市、尼崎市、伊丹市、川西市、猪名川町、豊能町、豊中市、吹田市、箕面市、池田市、摂津市、茨木市、高槻市、島本町 名古屋エリア 名古屋市、尾張旭市、長久手市、日進市、瀬戸市、春日井市、大府市 東京エリア 東京23区※、川崎市※、川口市 ※一部の区を除く
お名前を入力してください。
電話番号を入力してください。
メールアドレスを入力してください。

お問合せ内容を選択してください。必須

任意

スマホやパソコンのビデオ通話機能を使って住まいに関する様々なご相談ができます。

任意

具体的なご相談内容を選択してください。必須

任意
ご入力いただいた個人情報は、このサービスを提供する株式会社ウィルの個人情報保護方針に則って厳重に管理します。 お問合せ内容を、個人情報の取り扱いに関する基本姿勢に同意の上、送信してください。

住まいをつくる

リフォームの事例写真

中古住宅を買ってリフォーム

中古住宅の購入とリフォームをセットで行うと、ライフスタイルや好みに合った住まいを実現できます。

十二十家具イメージ画像

十二十家具オンラインストア

当社が運営しているインテリアショップです。日々の暮らしが豊かになる良質な家具を取り揃えています。

期間報酬制度

家を売るとき、手数料最大半額

家を売るとき、取引成立時期に応じて手数料が最大半額。節約できたコストを売主様に還元します。

平日会員制度

家を買うとき、手数料30%OFF

平日利用の家探しで、手数料が30%割引。営業稼働率を上げて生まれる利益を買主様に還元します。

『検索条件の保存』にはログイン、またはウィルWEB会員の登録が必要です。

ウィルWEB会員の登録

お名前を入力してください。
メールアドレスを入力してください。
電話番号を入力してください。
パスワードは8〜20文字で、また半角英字、数字を最低1文字以上使用してください

※パスワードは半角英数字で8〜20文字。また英字、数字それぞれ1文字以上使用してください。

必須

現在、住まいに関して検討されていることを教えてください。(複数回答可)

任意

ご質問、ご要望などございましたら、ご自由にお書きください。
また、お住まいの購入をご検討の方は、物件の広さなどご希望条件を教えてください。

ご入力いただいた個人情報は、このサービスを提供する株式会社ウィルの個人情報保護方針に則って厳重に管理します。お問合せ内容を、個人情報の取り扱いに関する基本姿勢に同意の上、送信してください。