1名保存
新築

名古屋市天白区鴻の巣2丁目 新築一戸建て(1号地)

4,798万円
すべての写真(13枚)を⾒る
所在
名古屋市天白区 鴻の巣2丁目
交通
地下鉄鶴舞線「 」駅徒歩23分
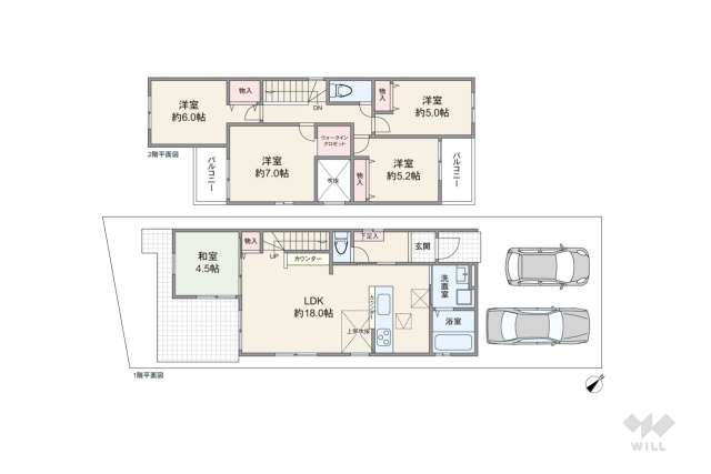
建物
105.68平米 / 5LDK / 2026年2月築
土地
130.24平米 / 北東向き
学校
植田北小学校 / 植田中学校
名古屋市天白区鴻の巣2丁目 新築一戸建ての地図

物件所在地はおおよその位置です。ウィルWEB会員に登録すると正確な場所が表示されます。

敷地面積約39坪・5LDKの新築戸建、『植田中央公園』に近い住宅地 『植田中学校』徒歩6分
ポイント
★地下鉄鶴舞線「原駅」徒歩23分!
★敷地面積約39坪!
★『植田北小学校』徒歩11分!
★『植田中学校』徒歩6分!
★『ピアゴ植田店』徒歩9分!
★『植田中央公園』徒歩5分!

特徴

  • 新築
  • 買物施設10分以内

担当者のコメント

この物件は地下鉄鶴舞線「原駅」から徒歩23分、『名古屋市天白区鴻の巣2丁目』にある新築一戸建てです。
周辺は第一種住居地域に指定された一部店舗や事務所、主に一戸建てと低層の集合住宅が立ち並ぶ住宅地です。東側を国道302号線と名二環、南側を国道153号線が走っています。近い場所に『植田中央公園』『三七川原公園』『植田鴻ノ巣公園』などの大小の公園が点在しており、名二環を挟んで東側には約150haの都市公園『牧野ケ池緑地』があり、気軽に里山の自然に触れることができます。地名の由来は鴻が巣をつくった場所であることから。地勢は丘陵地で、標高は約45m。この辺りは平成9年に換地処分が告示された植田中央の土地区画整理区域内にあり、道幅5m前後の一方通行の道路が多く、街路は整っています。生け垣や庭木のある家が点在し、町中の緑は多め。植田インターチェンジが近く、車での移動に便利です。
敷地面積は約39坪。北東付け道路。駐車スペースあり(車種による)。間取りは延床面積105.68平米の5LDK。現況は完成済みのため、室内の見学ができます。
教育施設は『にじの花保育園』徒歩9分、『名古屋市立植田幼稚園』徒歩10分、『植田北小学校』徒歩11分、『植田中学校』徒歩6分。買物施設は『ピアゴ 植田店』徒歩9分、『フィール RISE やき山店』徒歩15分など…。その他『植田中央公園』が徒歩5分、『牧野ヶ池緑地』が徒歩13分、『天白川』が徒歩17分の距離にあります。

担当者

金和 達也 金和 達也(かなわ たつや) 宅地建物取引士

不動産用語

土地区画整理区域
土地区画整理区域とは、住宅・宅地整備の促進を図ることを目的に定められた区域のことです。この事業により、古くからある入り組んだ市街地の区画を整理し、道幅を広げることで、整然とした街にします。事業は(1)計画決定、(2)事業決定、(3)仮換地指定、(4)換地処分の流れで進められます。仮換地とは、移動先の土地のことで、またそれまでに所有又は使用していた土地を従前地と呼びます。仮換地の指定がされると、従前地の使用は禁止され、仮換地を使用することになります。そして、区域内のすべての工事が完了すると、換地処分が公告され、仮換地が所有地又は使用する土地となり、土地区画整理事業が完了します。
第一種低層住居専用地域
第一種低層住居専用地域とは、都市計画における用途地域の1つで、低層住宅の良好な住環境を守るための地域のことです。13種類の用途地域の中で最も厳しい規制が設けられており、高さがある建物や騒音を出すような用途の建物を建築することができません。軒の高さが7メートルを超えるか、3階以上(地階を除く)の建築物で、条例によって指定された区域に建つ建物は日影規制の適用対象となります。日影規制とは、建築物からできる影が周辺の土地に一定時間かからないようにすることにより、日照環境を確保するための制限のことです。
第一種住居地域
第一種住居地域とは、都市計画による用途地域の一つで、住居の環境を保護するための地域です。3000平方メートルまでの店舗や飲食店、ホテル、スポーツ施設、50平方メートル以下の工場などを建てることができます。第一種住居地域に指定された区域には住宅や商業施設、工場などが混在しています。住居地域であるため大規模な店舗や事務所などの建築を制限していますが、住居専用地域ではないので日当たりや日影などの条件が厳しくはありません。
第二種住居地域
第二種住居地域とは、都市計画による用途地域の一つです。住居環境を保護することを目的としつつ、住宅だけでなく、10,000平方メートルまでの大規模な店舗や遊戯施設なども建てることができます。第一種住居地域とは異なり、カラオケボックスやパチンコ店などを建てることが可能な地域となっています。第二種住居地域は住居専用地域ではないため、日当たりや日影などの条件が厳しくはありません。
準住居地域
準住居地域とは、都市計画法による用途地域の一つで、沿道において自動車関連施設などと住居が調和した環境を保護するための地域のことです。準住居地域では客席が200平方メートル未満の劇場や映画館、演芸場、観覧場などを建設することができます。第二種住居地域とは異なり、150平方メートルまでの自動車修理工場や自動車ディーラー店などを建てることも可能です。また、住居専用地域ではないため、日当たりや日影などの条件は比較的緩やかです。
近隣商業地域
近隣商業地域とは、都市計画法による用途地域の一つで、近隣住民が日用品の買物をする店舗などのために定められた地域のことです。大規模商業施設やショッピングモールだけでなく、小規模の工場を建てることもできます。住居専用地域ではないため、日当たりや日影などの制限が比較的緩やかです。商業地域において日影規制が適用されない点に対し、近隣商業地域では高さ10メートルを超える建物については日影規制が適用される点が異なっています。

設備

  • 食器洗浄機
  • 浄水器
  • IHクッキングヒーター
  • ディスポーザー
  • TV付き浴室
  • 浴室乾燥機
  • ミストサウナ
  • 追焚機能
  • シャンプードレッサー
  • 洗浄便座
  • ペアガラス
  • オール電化
  • 太陽光発電
  • 24時間換気システム
  • 床暖房
  • 電動シャッター雨戸
  • スロップシンク
  • TV付きインターホン
  • オートロック
  • 宅配ボックス
  • ロフト

ヒストリー

  • 2025.11.28

    本サイトに公開

  • 2026.02.01

    新築

  • 現在

  • 2026.04.13

    情報更新予定

※本サイトに公開:この物件がこのサイトに掲載された日です。※価格変更:この物件の価格がこのサイトで変更された日です。※情報更新予定:この物件の販売の継続、価格変更の有無など確認が行われ、情報が更新される予定の日です。

お問合せ

物件番号833122R

ウィル不動産販売 御器所営業所 詳細

フリーダイヤル0120-032-700
住所
名古屋市昭和区御器所通3-7
営業時間
10:00~19:00 定休日なし 
※年末年始除く

お名前・メールアドレスを入力してください。

お名前を入力してください。
電話番号を入力してください。
メールアドレスを入力してください。

お問合せ内容を選択してください。必須

ご質問・ご相談内容を入力してください。
任意
ご質問・ご相談内容を入力してください。
請求する資料を入力してください。
ご入力いただいた個人情報は、このサービスを提供する株式会社ウィルの個人情報保護方針に則って厳重に管理します。 お問合せ内容を、個人情報の取り扱いに関する基本姿勢に同意の上、送信してください。

交通

「名古屋市天白区鴻の巣2丁目 一戸建て 4,798万円」の最寄り駅、駅との高低差、ターミナル駅から終電時刻、バス停の時刻表など交通に関する情報をご案内しています。また行き先の駅はカスタマイズできます。

最寄り駅

地下鉄鶴舞線「原」駅の外観

地下鉄鶴舞線「原」駅

名古屋市天白区原1丁目513物件から 徒歩23分
停車する電車
全て
サービス施設
三井住友銀行ATM 改札口(改札外)

駅までの道のり(高低差)

駅・空港へのアクセス

この物件愛知県名古屋市天白区鴻の巣2丁目
23
地下鉄「原」駅物件から約 23
29
最終: 23時57分
物件から約 52

周辺環境

「名古屋市天白区鴻の巣2丁目 一戸建て 4,798万円」の住環境、近くにあるとうれしいとっておきのスポット(注目スポット)、街の住心地の口コミ(街の人の声)、当社の契約者からご回答いただいたアンケートなどをご紹介しています。

周辺環境 周辺環境 周辺環境 周辺環境

「鴻の巣・焼山・梅が丘周辺エリア」は『植田川』の東側〜天白区の北東部にあり、名東区や日進市と隣接するエリア。 駅からは離れていますが、西部には名古屋中環状線、中央を縦断するように国道302号線と名古屋第二環状自動車道が走っています。梅が丘に「植田IC」があるため、車を利用すれば市内中心部へのアクセスもスムーズ。また、日進方面へ続く豊田西バイパス(国道153号線)が拡幅したことにより、豊田市方面へのアクセスも良くなりました。 エリア内は大通りのロードサイドをのぞいて第1種低層住居専用地域に指定されたところが多く、全体として敷地の広い一戸建てを中心とした閑静な住宅街が広がっています。日進市と隣接する『梅が丘』や名二環沿いの『鴻の巣』には一部畑なども残っており、市内にありながらも落ち着いた郊外のベッドタウンの雰囲気となっています。 全体としては緩やかな南垂れの傾斜地となっていますが、エリア内にアップダウンのきついエリアはありません。 『梅が丘』の北部には名東区と天白区にまたがるゴルフ場『愛知カンツリークラブ』があり、その北部には遊具や広場などが充実した『牧野が池緑地』(名東区)があります。 詳細

注目スポット

注目スポット
植田中央公園 詳細
所在:名古屋市天白区植田本町1丁目物件から徒歩 5

(1件の口コミ)

『植田中央公園』は、地下鉄鶴舞線 植田駅から北方向へ徒歩約19分、国道153号線と植田小学校の間にある公園です。周辺はマンションや駐車場などが多いエリア。すぐ北側の国道153線の沿道には飲食店や店舗などもあり便利です。公園内には、洪水の際の防災用の池になる広々としたグラウンドと、大きなグラウンドから一段上がったところに、小さいグラウンドと周辺にブランコなどの遊具が配置されています。東側の公園入口付近には植田の山を開発した時に記念で建てられた巨大なモニュメントがあり、出迎えてくれます。

注目スポット
牧野ヶ池緑地 詳細
所在:名古屋市名東区猪高町高針物件から徒歩 13

(12件の口コミ)

市営バス「牧の原」バス停から東へ約450m(徒歩6分)歩いたところにあります。広さは東京ドーム31個分に相当する約147万㎡で、そのうち半分近くが『愛知カンツリー倶楽部』(ゴルフ場)として整備されています。公園の北東部には愛知県で2番目に大きなため池「牧野池」があり、池の用水を利用して耕作した水田を「牧田」と呼んだことが「牧野池」の名称の由来。開発されていない緑地や牧野池では、春の桜並木、夏のケヤキ、秋の落ち葉が敷きつめられたコナラ林、冬のカモ類の飛来など四季折々の景色や自然を楽しめます。住宅地に近い西端や東端には広場や遊具が充実。公衆トイレが9ヶ所、駐車場が2ヶ所あります。 (2020.08.18時点)

注目スポット
天白川 詳細
所在:名古屋市天白区~瑞穂区物件から徒歩 17

(14件の口コミ)

愛知県日進市から名古屋市を西に流れる、二級水系「天白川」の本流で、流域面積は119平方キロメートルあります。明治時代に、下流の緑区鳴海町にあった「字天白」という土地に「天白神」が祀られていた事から、その名前が付けられました。河口では、カサゴ、シーバス、メバル等の魚が釣れます。堤防には緑道も整備されており、お散歩コースにも最適です。 (2020.08.17時点)

買物施設

「名古屋市天白区鴻の巣2丁目 一戸建て 4,798万円」最寄りのスーパーマーケットの営業時間、駐車場の有無、概要、物件との距離・高低差をご紹介しています。
ピアゴ 植田店

ピアゴ 植田店

名古屋市天白区元植田1丁目302 物件から徒歩 9
営業時間:9:00~21:00 駐車場:有(327台) 概要:(2020.07.30時点)
フィール RISE やき山店

フィール RISE やき山店

名古屋市天白区焼山1丁目422 物件から徒歩 15
営業時間:10:00~21:00 駐車場:有 概要:(2020.07.30時点)

教育施設

「名古屋市天白区鴻の巣2丁目 一戸建て 4,798万円」の保育所、幼稚園、小学校、中学校までの距離と高低差、また当社のお客様からいただいた口コミ情報を掲載しています。
名古屋市立植田幼稚園

名古屋市立植田幼稚園 詳細

名古屋市天白区植田本町1丁目1201 物件から徒歩 10
『名古屋市立植田幼稚園』は、地下鉄鶴舞線「植田」駅から北東方向へ徒歩17分、「植田本町1丁目」にある幼稚園です。『名古屋市立植田小学校』に隣接しています。周囲には田畑が点在しており、緑の潤いを感じられる住環境。北側約160mのところには「植田中央公園」があります。
植田北小学校

植田北小学校 詳細

名古屋市天白区焼山2丁目1302 物件から徒歩 11
1991年(平成3年)に開校した小学校。学校の東側約480mの場所には名古屋第二環状自動車道が走っています。住宅地の中に位置し、北西側には植田焼山公園が隣接。正門横には校歌の「夢のはばたき」にちなんだ「はばたきの像」があります。(2020.09.02 時点)
植田中学校

植田中学校 詳細

名古屋市天白区植田本町1丁目702 物件から徒歩 6
1984年(昭和59年)に天白中学校から分離独立して開校しました。学校の南側には植田小学校が面し、天白高等学校にも近く落ち着いた環境。4つの小学校区からなり、名古屋市内最大規模の生徒数を有します。校章はかつて一帯に広がっていた竹林をモチーフに、未来へ向かって躍進し続ける姿を表しています。(2020.09.02 時点)

物件データ

「名古屋市天白区鴻の巣2丁目 一戸建て 4,798万円」の所在、交通、広さなどの物件データ。物件概要ともよばれ、物件のことを理解する基本的な事項について書いています。ご不明な用語などありましたら、お気軽にお問合せください。

所在地
愛知県名古屋市天白区鴻の巣2丁目
交通
地下鉄鶴舞線「原」駅徒歩23分
→地下鉄鶴舞線沿線の不動産
→地下鉄鶴舞線「原」駅の不動産
建物建築年月
2026年2月
構造・階数
木造 2階建
土地面積
130.24㎡
建物面積
105.68㎡
間取り
5LDK
接道状況
北東側幅員約6.5mの公道に接道
セットバック
私道負担面積
駐車場
路地状部分
傾斜地部分
現況
完成済
引渡
期日指定(2026年2月上旬)
設備
都市ガス/電気/上下水道
建築確認番号
第KS125-0420-54798号
販売戸数
1区画
総戸数
1区画
用途地域
第1種住居地域
国土法
不要
取引態様
媒介(仲介)
小学校区
植田北小学校
→植田北小学校区内の不動産
中学校区
植田中学校
→植田中学校区内の不動産
物件番号
833122R
※物件所在地(番地):1806(1号地)

※ 図面と現況が異なる場合は、現況優先と致します。
※ 掲載物件は成約済み・売却中止となる場合があります。
※ 成約の際は仲介手数料とこれにかかる消費税が必要です。(当社が売主の物件除く)
※ 写真に写っている、またはパース(絵)や間取り図に描かれている家具や車などは、特にコメントがない場合、物件価格に含まれません。
※ 価格は物件の代金総額を表示しており、消費税が課税される場合は税込価格です(10,000円未満は切り上げ)。
※ コメント内に記載している土砂災害警戒区域は、土砂災害特別警戒区域に指定されている箇所も含んでおります。
※ 洪水浸水想定区域、土砂災害危険箇所、土砂災害警戒区域の指定状況については最新データとは限りません。最新データ・詳細なリスクの程度・範囲などについては各自治体の「ハザードマップ」をご確認下さい。

検索条件が似た物件

Loading...

不動産の購入に関するお問合せ

ウィル不動産販売 御器所営業所

ウィル不動産販売 御器所営業所詳細

フリーダイヤル

0120-032-700
営業時間
10:00~19:00 定休日なし
※年末年始除く
対応エリア
関西・名古屋・東京 詳細 対応エリア 関西(阪神間・北摂・大阪)エリア 神戸市(灘区・東灘区)、大阪市※、芦屋市、西宮市、宝塚市、尼崎市、伊丹市、川西市、猪名川町、豊能町、豊中市、吹田市、箕面市、池田市、摂津市、茨木市、高槻市、島本町 名古屋エリア 名古屋市、尾張旭市、長久手市、日進市、瀬戸市、春日井市、大府市 東京エリア 東京23区※、川崎市※、川口市 ※一部の区を除く
免許番号
国土交通大臣 (5)第6447号
加入団体
公益社団法人首都圏不動産公正取引協議会 
お名前を入力してください。
電話番号を入力してください。
メールアドレスを入力してください。

お問合せ内容を選択してください。必須

任意
ご質問・ご相談内容を入力してください。

スマホやパソコンのビデオ通話機能を使って住まいに関する様々なご相談ができます。

任意

具体的なご相談内容を選択してください。必須

ご入力いただいた個人情報は、このサービスを提供する株式会社ウィルの個人情報保護方針に則って厳重に管理します。 お問合せ内容を、個人情報の取り扱いに関する基本姿勢に同意の上、送信してください。

名古屋市天白区の戸建の売却をお考えの方へ

下記ページにて、名古屋市天白区の戸建の現在の売却市況や購入希望者数、ライバル物件数、過去の成約データなどをご覧いただけます。
また無料で、価格査定や相場資料の提供を行っています。お気軽にお問合せください。

※上記の売却情報は、2026年02月末時点での値です。毎月、1ヶ月ごとの累計で集計をしているため、現在のリアルタイムでの値とは差異がある場合があります。

関連リンク

近くのエリアから一戸建てを探す
近くの町名から一戸建てを探す
リフォームの事例写真

中古住宅を買ってリフォーム

中古住宅の購入とリフォームをセットで行うと、ライフスタイルや好みに合った住まいを実現できます。

十二十家具イメージ画像

十二十家具オンラインストア

当社が運営しているインテリアショップです。日々の暮らしが豊かになる良質な家具を取り揃えています。

期間報酬制度

家を売るとき、手数料最大半額

家を売るとき、取引成立時期に応じて手数料が最大半額。節約できたコストを売主様に還元します。

平日会員制度

家を買うとき、手数料30%OFF

平日利用の家探しで、手数料が30%割引。営業稼働率を上げて生まれる利益を買主様に還元します。

『検索条件の保存』にはログイン、またはウィルWEB会員の登録が必要です。

ウィルWEB会員の登録

お名前を入力してください。
メールアドレスを入力してください。
電話番号を入力してください。
パスワードは8〜20文字で、また半角英字、数字を最低1文字以上使用してください

※パスワードは半角英数字で8〜20文字。また英字、数字それぞれ1文字以上使用してください。

必須

現在、住まいに関して検討されていることを教えてください。(複数回答可)

任意

ご質問、ご要望などございましたら、ご自由にお書きください。
また、お住まいの購入をご検討の方は、物件の広さなどご希望条件を教えてください。

ご入力いただいた個人情報は、このサービスを提供する株式会社ウィルの個人情報保護方針に則って厳重に管理します。お問合せ内容を、個人情報の取り扱いに関する基本姿勢に同意の上、送信してください。