新価格 4/01 リフォーム済

高田馬場プリンスマンション(3階 東向き)

4,290万円
すべての写真(9枚)を⾒る
所在
新宿区 高田馬場4丁目
交通
JR山手線「 高田馬場 」駅徒歩4分
建物
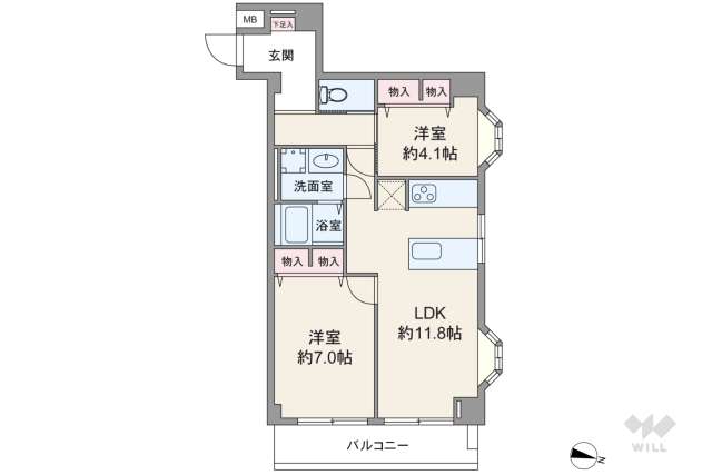
49.07平米 / 2LDK / 1979年6月築
学校
戸塚第三小学校 / 新宿西戸山中学校
高田馬場プリンスマンション(3階 東向き)の地図

物件所在地です。グーグルマップでも表示できます。 MAP >

東向きの角部屋で採光・通風良好、フルリフォーム実施 二型キッチン+家事動線良好 [3階部分/5階建]
ポイント
★JR「高田馬場駅」徒歩4分!
★西武「高田馬場駅」徒歩4分!
★東京メトロ「高田馬場駅」徒歩6分!
★東向きの角部屋で採光・通風良好!
★使い勝手が良い二型キッチン!
★玄関先から室内を見通しにくいクランクイン!
★水回りが集まり家事動線良好!
★2026年3月にフルリフォーム実施!
★現在は空き部屋!
★『戸塚第三小学校』徒歩6分!
★『新宿西戸山中学校』徒歩8分!
★『オオゼキ』徒歩1分!
★『落合中央公園』徒歩9分!

特徴

  • 新着
  • 角部屋
  • 小学校10分以内
  • 買物施設10分以内
  • リフォーム済

担当者のコメント

『高田馬場プリンスマンション』は、JR山手線「高田馬場駅」から徒歩4分、『新宿区高田馬場4丁目』にある総戸数14戸の小規模マンションです。複数駅が利用可能で、西武新宿線「高田馬場駅」からは徒歩4分、東京メトロ東西線「高田馬場駅」からは徒歩6分の距離にあります。周辺は第一種住居地域と商業地域内の店舗や事務所が混在する住宅地です。北側を都道25号飯田橋石神井新座線(早稲田通り)、南側を都道25号飯田橋石神井新座線、東側をJR線が走り、近い場所に『高田馬場公園』や『高田馬場第一児童遊園』、『西戸山公園』など大小の公園が点在しています。『西戸山公園』は線路沿いの開放的な立地が特徴の公園。「健康公園」をテーマとしており、スポーツやレクリエーションに適した設備が整っています。またこの街は、パリに最も愛された日本人画家を言われる藤田嗣治のアトリエ付きの居宅があったことでも知られています。町名の由来の一説は、徳川家康の六男・松平忠輝の生母である茶阿局(高田殿)がこの地に遊覧の庭園を設けたことから「高田」と呼ばれるようになり、1636年(寛永13年)に三代将軍・徳川家光が造設した馬術訓練場の「馬場」と合わせて名付けられたといわれています。地勢は丘陵地で、標高は約25m。道幅約5m前後の道路が多く、街路はやや入り組んでいます。生垣や庭木のある家はあまり見られず、町中の緑は少なめ。首都高速環状線の西池袋の出入口が約2kmの距離にあります。敷地は所有権。建物はRC造5階建てで、施工は大末建設です。なおペットの飼育は不可です。
この物件は3階部分、東向きの角部屋。採光・通風良好です。間取りは専有面積49.07平米の2LDK。LDK約11.8帖の縦長リビングのプラン。バルコニー面積は3平米(概算)です。付帯設備は食器洗浄機など…。2026年3月にリフォーム実施。現況は空き部屋です。【リフォーム内容:全室クロス張替え、フローリング張替え、システムキッチン交換、ユニットバス交換、トイレ交換、洗面化粧台交換、給湯器交換、給排水管更新(専有部)など。】
保育施設・学校は『保育所まぁむ高田馬場駅前園』徒歩6分、『戸塚第三小学校』徒歩6分、『新宿西戸山中学校』徒歩8分。最寄りのスーパーは『オオゼキ 高田馬場店』徒歩1分。その他『下落合図書館』と『高田馬場第一児童館』が徒歩6分、『戸塚特別出張所』が徒歩7分の場所にあります。

担当者

森田 美優 森田 美優(もりた みゆ) 宅地建物取引士

不動産用語

第一種中高層住居専用地域
第一種中高層住居専用地域とは、都市計画における用途地域の1つで、中高層住宅の良好な住環境を守るための地域のことです。4階建て以上のマンションをはじめ、スーパーなどの床面積500平方メートルまでの店舗や病院、大学などを建てることができます。スーパーなどの日常生活に必要な施設が揃っていることも多く、生活利便にもすぐれています。
第一種住居地域
第一種住居地域とは、都市計画による用途地域の一つで、住居の環境を保護するための地域です。3000平方メートルまでの店舗や飲食店、ホテル、スポーツ施設、50平方メートル以下の工場などを建てることができます。第一種住居地域に指定された区域には住宅や商業施設、工場などが混在しています。住居地域であるため大規模な店舗や事務所などの建築を制限していますが、住居専用地域ではないので日当たりや日影などの条件が厳しくはありません。
近隣商業地域
近隣商業地域とは、都市計画法による用途地域の一つで、近隣住民が日用品の買物をする店舗などのために定められた地域のことです。大規模商業施設やショッピングモールだけでなく、小規模の工場を建てることもできます。住居専用地域ではないため、日当たりや日影などの制限が比較的緩やかです。商業地域において日影規制が適用されない点に対し、近隣商業地域では高さ10メートルを超える建物については日影規制が適用される点が異なっています。

設備

  • 食器洗浄機
  • 浄水器
  • IHクッキングヒーター
  • ディスポーザー
  • TV付き浴室
  • 浴室乾燥機
  • ミストサウナ
  • 追焚機能
  • シャンプードレッサー
  • 洗浄便座
  • ペアガラス
  • オール電化
  • 太陽光発電
  • 24時間換気システム
  • 床暖房
  • 電動シャッター雨戸
  • スロップシンク
  • TV付きインターホン
  • オートロック
  • 宅配ボックス
  • ロフト

費用

管理費
月額:14,470円
修繕積立金
月額:2,010円

ヒストリー

  • 1979.06.01

    新築

  • 2026.03

    リフォーム

    全室クロス張替え、フローリング張替え、システムキッチン交換、ユニットバス交換、トイレ交換、洗面化粧台交換、給湯器交換、給排水管更新(専有部)など。

  • 2026.03.24

    本サイトに公開

  • 現在

  • 2026.04.13

    情報更新予定

※本サイトに公開:この物件がこのサイトに掲載された日です。※価格変更:この物件の価格がこのサイトで変更された日です。※情報更新予定:この物件の販売の継続、価格変更の有無など確認が行われ、情報が更新される予定の日です。

お問合せ

物件番号909543R

ウィル不動産販売 中野営業所 詳細

フリーダイヤル0120-777-526
住所
中野区中野5-66-4 東京風月堂中野ビル1階
営業時間
10:00~19:00 定休日なし 
※年末年始除く

お名前・メールアドレスを入力してください。

お名前を入力してください。
電話番号を入力してください。
メールアドレスを入力してください。

お問合せ内容を選択してください。必須

ご質問・ご相談内容を入力してください。
任意
ご質問・ご相談内容を入力してください。
請求する資料を入力してください。
ご入力いただいた個人情報は、このサービスを提供する株式会社ウィルの個人情報保護方針に則って厳重に管理します。 お問合せ内容を、個人情報の取り扱いに関する基本姿勢に同意の上、送信してください。

交通

「高田馬場プリンスマンション 4,290万円」の最寄り駅、駅との高低差、ターミナル駅から終電時刻、バス停の時刻表など交通に関する情報をご案内しています。また行き先の駅はカスタマイズできます。

最寄り駅

JR山手線「高田馬場」駅の外観

JR山手線「高田馬場」駅

東京都新宿区高田馬場1丁目物件から 徒歩4分
停車する電車
各停

駅までの道のり(高低差)

駅・空港へのアクセス

この物件東京都新宿区高田馬場4丁目
4
JR「高田馬場」駅物件から約 4
30
最終:
物件から約 34

周辺環境

「高田馬場プリンスマンション 4,290万円」の住環境、近くにあるとうれしいとっておきのスポット(注目スポット)、街の住心地の口コミ(街の人の声)、当社の契約者からご回答いただいたアンケートなどをご紹介しています。

注目スポット

注目スポット
落合中央公園 詳細
所在:東京都新宿区上落合1丁目2物件から徒歩 9

『落合中央公園』は西部新宿線「下落合駅」から南西方向へ徒歩7分のところにある、新宿区立の都市公園です。東京都下水道局管轄の落合水再生センターの屋上部分に作られた人工地盤を活用し建設されました。昭和39年に開園。遊具エリアには複合遊具やスプリング遊具が設置され、子どもたちがのびのびと走り回ることができます。園内に併設されている野球場は人工芝が敷かれており、雨天後のグラウンド回復が早くなっています。またテニスコートも有しています。ドッグランも整備されているので、お散歩にきた犬たちも走り回って遊ばせることが可能。公園のすぐ東側には神田川が流れ、周囲には『八幡公園』や『せせらぎの里公苑』が近接していて、散策するのにも良さそうです。

注目スポット
西戸山公園 詳細
所在:東京都新宿区百人町4丁目1物件から徒歩 10

『西戸山公園』はJRターミナル駅および西部新宿線「高田馬場駅」から南方向へ徒歩6分のところにある、新宿区立の公園です。この辺りは戦前「戸山ヶ原」と呼ばれる旧陸軍の錬兵場で、戦後になって跡地が整備され、昭和27年に開園されました。公園の敷地は東西に分断され、間に入る形で『新宿区立西戸山小学校』が隣接しています。園内には『新宿区立西戸山公園野球場』やスポーツ広場が併設されており、運動のために訪れる人も多くいます。遊具エリアには定番のすべり台やブランコ、シーソーなどが設置され、充実しています。公園のすぐ東側をJRの線路が走り、本数も多くさまざまな電車が通るので、大人も子どもも飽きることなく眺めて過ごすことができます。

注目スポット
大久保スポーツプラザ 詳細
所在:東京都新宿区大久保3丁目7-42物件から徒歩 11

『大久保スポーツプラザ』はJR「新大久保駅」から北方向へ徒歩9分のところにある、多目的施設です。多目的ホールや集会室では卓球や社交ダンスなどのスポーツの他に、室内楽や合唱など文化的な活動にも幅広く利用できます。鏡貼りになっている壁もあるので、バレエやダンスの練習にも良さそう。和室には弾力性のある丈夫な畳が敷かれており、空手や合気道のような道具を使わない武道や、日舞など踊りにピッタリ。屋上はテニスコートが2面整備されており、晴れの日はテニスを楽しめます。館内には自動遊戯室が設けられており、小学生以下の子どもを連れてのお出かけにも安心。施設の入り口はスロープや自動ドアが設置されており、バリアフリー化されています。

街の人の声

この街ボイス画像:Kチャン さん(当社のご契約者)

Kチャン さん(当社のご契約者)

新宿区西早稲田3丁目在住

女性/81歳/4人家族(うち子ども2人)

5路線利用可!スーパーや病院、警察も近く安心 自慢できること 山手線内で、東京で一つ残っている都電もすぐ近く、西武線、東西線、副都心線、交通の便が良いです。大手病院も、スーパーも何軒もあり、警察所の近くなので、防犯も素晴らしいです。 気になること なだらかですが、坂道があります。特に気になる事はありません。

買物施設

「高田馬場プリンスマンション 4,290万円」最寄りのスーパーマーケットの営業時間、駐車場の有無、概要、物件との距離・高低差をご紹介しています。
オオゼキ 高田馬場店

オオゼキ 高田馬場店

東京都新宿区高田馬場3-12-10 物件から徒歩 1
営業時間:10:00:00~21:00:00
西友 高田馬場店

西友 高田馬場店

東京都新宿区高田馬場3丁目3番8号 物件から徒歩 3
営業時間:0:00:00~0:00

教育施設

「高田馬場プリンスマンション 4,290万円」の保育所、幼稚園、小学校、中学校までの距離と高低差、また当社のお客様からいただいた口コミ情報を掲載しています。
戸塚第二幼稚園

戸塚第二幼稚園 詳細

東京都新宿区高田馬場1丁目25-21 物件から徒歩 8
戸塚第三小学校

戸塚第三小学校 詳細

東京都新宿区高田馬場3丁目18番21号 物件から徒歩 6
新宿西戸山中学校

新宿西戸山中学校 詳細

東京都新宿区百人町4丁目3番1号 物件から徒歩 8

物件データ

「高田馬場プリンスマンション 4,290万円」の所在、交通、広さなどの物件データ。物件概要ともよばれ、物件のことを理解する基本的な事項について書いています。ご不明な用語などありましたら、お気軽にお問合せください。

物件名
高田馬場プリンスマンション
所在地
東京都新宿区高田馬場4丁目
交通
JR山手線「高田馬場」駅徒歩4分
→JR山手線沿線の不動産
→JR山手線「高田馬場」駅の不動産
階数
5階建
所在階
3階部分
構造
RC造
築年月
1979年6月
専有面積
49.07㎡
間取り
2LDK
バルコニー
3㎡ (方向:東)
管理費
14,470円/月
修繕積立金
2,010円/月
駐車場
総戸数
14戸
現況
空家
引渡
相談
設備
エレベーター
管理形態
全部委託
管理員勤務形態
巡回
用途地域
第1種住居地域、商業地域
国土法
不要
取引態様
媒介(仲介)
小学校区
戸塚第三小学校
→戸塚第三小学校区内の不動産
中学校区
新宿西戸山中学校
→新宿西戸山中学校区内の不動産
物件番号
909543R

※ 図面と現況が異なる場合は、現況優先と致します。
※ 掲載物件は成約済み・売却中止となる場合があります。
※ 成約の際は仲介手数料とこれにかかる消費税が必要です。(当社が売主の物件除く)
※ 写真に写っている、またはパース(絵)や間取り図に描かれている家具や車などは、特にコメントがない場合、物件価格に含まれません。
※ 価格は物件の代金総額を表示しており、消費税が課税される場合は税込価格です(10,000円未満は切り上げ)。
※ コメント内に記載している土砂災害警戒区域は、土砂災害特別警戒区域に指定されている箇所も含んでおります。
※ 洪水浸水想定区域、土砂災害危険箇所、土砂災害警戒区域の指定状況については最新データとは限りません。最新データ・詳細なリスクの程度・範囲などについては各自治体の「ハザードマップ」をご確認下さい。

検索条件が似た物件

Loading...

不動産の購入に関するお問合せ

ウィル不動産販売 中野営業所

ウィル不動産販売 中野営業所詳細

フリーダイヤル

0120-777-526
営業時間
10:00~19:00 定休日なし
※年末年始除く
対応エリア
関西・名古屋・東京 詳細 対応エリア 関西(阪神間・北摂・大阪)エリア 神戸市(灘区・東灘区)、大阪市※、芦屋市、西宮市、宝塚市、尼崎市、伊丹市、川西市、猪名川町、豊能町、豊中市、吹田市、箕面市、池田市、摂津市、茨木市、高槻市、島本町 名古屋エリア 名古屋市、尾張旭市、長久手市、日進市、瀬戸市、春日井市、大府市 東京エリア 東京23区※、川崎市※、川口市 ※一部の区を除く
免許番号
国土交通大臣 (5)第6447号
加入団体
公益社団法人首都圏不動産公正取引協議会 
お名前を入力してください。
電話番号を入力してください。
メールアドレスを入力してください。

お問合せ内容を選択してください。必須

任意
ご質問・ご相談内容を入力してください。

スマホやパソコンのビデオ通話機能を使って住まいに関する様々なご相談ができます。

任意

具体的なご相談内容を選択してください。必須

ご入力いただいた個人情報は、このサービスを提供する株式会社ウィルの個人情報保護方針に則って厳重に管理します。 お問合せ内容を、個人情報の取り扱いに関する基本姿勢に同意の上、送信してください。

関連リンク

近くのエリアからマンションを探す
近くの町名からマンションを探す

購入:住まいをさがす

住まいをさがす(東京)TOP

特集

平日の家探しで仲介手数料30%OFF 新着物件お知らせメール 相場データ提供サービス 買替えシミュレーション 買替え成功のポイント 不動産相場価格推定システム 購入時・購入後のサポート 不動産用語
購入に関する問合せ
リフォームの事例写真

中古住宅を買ってリフォーム

中古住宅の購入とリフォームをセットで行うと、ライフスタイルや好みに合った住まいを実現できます。

十二十家具イメージ画像

十二十家具オンラインストア

当社が運営しているインテリアショップです。日々の暮らしが豊かになる良質な家具を取り揃えています。

期間報酬制度

家を売るとき、手数料最大半額

家を売るとき、取引成立時期に応じて手数料が最大半額。節約できたコストを売主様に還元します。

平日会員制度

家を買うとき、手数料30%OFF

平日利用の家探しで、手数料が30%割引。営業稼働率を上げて生まれる利益を買主様に還元します。

『検索条件の保存』にはログイン、またはウィルWEB会員の登録が必要です。

ウィルWEB会員の登録

お名前を入力してください。
メールアドレスを入力してください。
電話番号を入力してください。
パスワードは8〜20文字で、また半角英字、数字を最低1文字以上使用してください

※パスワードは半角英数字で8〜20文字。また英字、数字それぞれ1文字以上使用してください。

必須

現在、住まいに関して検討されていることを教えてください。(複数回答可)

任意

ご質問、ご要望などございましたら、ご自由にお書きください。
また、お住まいの購入をご検討の方は、物件の広さなどご希望条件を教えてください。

ご入力いただいた個人情報は、このサービスを提供する株式会社ウィルの個人情報保護方針に則って厳重に管理します。お問合せ内容を、個人情報の取り扱いに関する基本姿勢に同意の上、送信してください。