1名保存
NEW 3/03 新築

名古屋市緑区旭出1丁目 新築一戸建て(1号地)

4,180万円
所在
名古屋市緑区 旭出1丁目
交通
名鉄名古屋本線「 鳴海 」駅バス13分 徒歩6分
建物
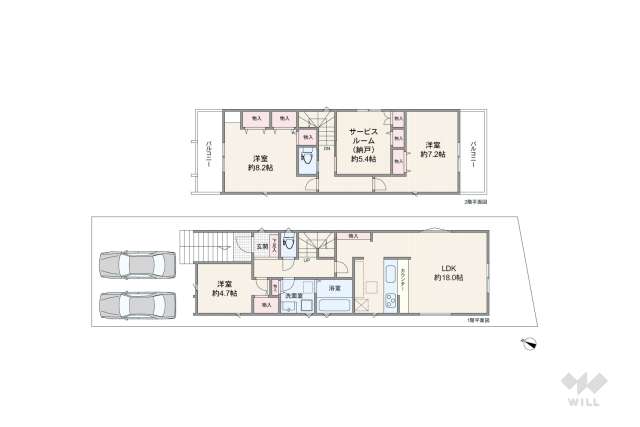
102.27平米 / 3SLDK / 2026年7月築
土地
117.89平米 / 北西向き
学校
旭出小学校 / 滝ノ水中学校
名古屋市緑区旭出1丁目 新築一戸建ての地図

物件所在地はおおよその位置です。ウィルWEB会員に登録すると正確な場所が表示されます。

敷地面積約35坪、第1種低層住居専用地域内にある木造2階建ての新築戸建 『新海池公園』徒歩8分
ポイント
★駅からバス乗車約13分・徒歩6分!
★第1種低層住居専用地域!
★敷地面積約35坪!
★車2台駐車可!(車種による)
★『旭出小学校』徒歩3分!
★『滝ノ水中学校』徒歩15分!
★『ウオダイプラス鹿山店』徒歩7分!
★『新海池公園』徒歩8分!

特徴

  • 新着
  • 新築
  • 車2台以上
  • 小学校10分以内
  • 買物施設10分以内
  • 低層住居地域

担当者のコメント

この物件は名鉄名古屋本線「鳴海駅」からバス乗車約13分・徒歩6分、『名古屋市緑区旭出1丁目』にある新築一戸建てです。
周辺は一戸建てと低層の集合住宅が中心に立ち並ぶ住宅地。第1種低層住居専用地域に指定されています。
敷地面積は約35坪。北西付け道路。車2台分の駐車スペースがあります(車種による)。間取りは延床面積102.27平米の3SLDK。付帯設備は食器洗浄機、洗浄便座、シャンプードレッサー、浴室乾燥機、追焚機能、床暖房、ペアガラス、床下収納庫、24時間換気システムなど…。現況は未完成です。
教育施設は『旭出保育園』徒歩3分、『池上台幼稚園』徒歩10分、『旭出小学校』徒歩3分、『滝ノ水中学校』徒歩15分。買物施設は『ウオダイプラス 鹿山店』徒歩7分、『バロー 滝ノ水店』徒歩11分など…。その他『名古屋市緑図書館』が徒歩7分、『新海池公園』が徒歩8分、『緑区休日急病診療所』が徒歩9分の距離にあります。

担当者

髙松 泰志 髙松 泰志(たかまつ ひろし) 宅地建物取引士

設備

  • 食器洗浄機
  • 浄水器
  • IHクッキングヒーター
  • ディスポーザー
  • TV付き浴室
  • 浴室乾燥機
  • ミストサウナ
  • 追焚機能
  • シャンプードレッサー
  • 洗浄便座
  • ペアガラス
  • オール電化
  • 太陽光発電
  • 24時間換気システム
  • 床暖房
  • 電動シャッター雨戸
  • スロップシンク
  • TV付きインターホン
  • オートロック
  • 宅配ボックス
  • ロフト

ヒストリー

  • 2026.03.03

    本サイトに公開

  • 現在

  • 2026.03.16

    情報更新予定

  • 2026.07.01

    新築

※本サイトに公開:この物件がこのサイトに掲載された日です。※価格変更:この物件の価格がこのサイトで変更された日です。※情報更新予定:この物件の販売の継続、価格変更の有無など確認が行われ、情報が更新される予定の日です。

お問合せ

物件番号898073R

ウィル不動産販売 新瑞橋営業所 詳細

フリーダイヤル0120-722-228
住所
名古屋市瑞穂区瑞穂通8-30-2
営業時間
10:00~19:00 定休日なし 
※年末年始除く

お名前・メールアドレスを入力してください。

お名前を入力してください。
電話番号を入力してください。
メールアドレスを入力してください。

お問合せ内容を選択してください。必須

ご質問・ご相談内容を入力してください。
任意
ご質問・ご相談内容を入力してください。
請求する資料を入力してください。
ご入力いただいた個人情報は、このサービスを提供する株式会社ウィルの個人情報保護方針に則って厳重に管理します。 お問合せ内容を、個人情報の取り扱いに関する基本姿勢に同意の上、送信してください。

交通

「名古屋市緑区旭出1丁目 一戸建て 4,180万円」の最寄り駅、駅との高低差、ターミナル駅から終電時刻、バス停の時刻表など交通に関する情報をご案内しています。また行き先の駅はカスタマイズできます。

最寄り駅

名鉄名古屋本線「鳴海」駅の外観

名鉄名古屋本線「鳴海」駅

名古屋市緑区鳴海町字向田1番地3物件から 徒歩6分・バス13分
停車する電車
急行、準急、普通

駅までの道のり(高低差)

駅・空港へのアクセス

この物件愛知県名古屋市緑区旭出1丁目
6
バス停
13
名鉄「鳴海」駅物件から約 19
19
最終: 24時01分
物件から約 38

周辺環境

「名古屋市緑区旭出1丁目 一戸建て 4,180万円」の住環境、近くにあるとうれしいとっておきのスポット(注目スポット)、街の住心地の口コミ(街の人の声)、当社の契約者からご回答いただいたアンケートなどをご紹介しています。

周辺環境 周辺環境 周辺環境 周辺環境

注目スポット

注目スポット
新海池公園 詳細
所在:名古屋市緑区鹿山1丁目物件から徒歩 8

(1件の口コミ)

『新海池公園』は、名鉄「鳴海」駅から北東へ約18分、『鹿山1丁目』の住宅地にある大きな公園です。野球場、グラウンド、遊具広場、池、山があり、様々な楽しみ方ができる場所。球技やランキング、ウォーキングで汗を流したり、子供を遊ばせたり、池や山でバードウォッチングを楽しだり、家族みんなで楽しめます。もちろん駐車場やトイレも設置されています。

注目スポット
名古屋市緑スポーツセンター 詳細
所在:名古屋市緑区相原郷1丁目2901物件から徒歩 13

『名古屋市緑スポーツセンター』は、名鉄名古屋本線「鳴海」駅からバス乗車約6分、「緑区相原郷1丁目」にあるスポーツ施設です。開館は平成4年7月。第1競技場、第2競技場、弓道練習場、軽運動室、屋内プール、トレーニング室があり、様々なスポーツで汗を流すことが出来ます。また定期的にヨガや体操、水泳、バトミントン、テニスなどの教室も開催されており、初心者の人も安心して新たなスポーツが始められます。

注目スポット
滝の水公園 詳細
所在:名古屋市緑区篠の風3丁目物件から徒歩 17

(3件の口コミ)

『滝の水公園』は、地下鉄桜通「相生山駅」から南方向へ徒歩約15分、「緑区篠の風3丁目」にある公園です。周辺は一戸建てが中心に立ち並ぶ閑静な住宅地。すぐ南側には『名古屋市立滝ノ水小学校』があります。小高い丘になっており、360度のパノラマ眺望あり。名古屋市中心部の高層ビルまで見渡せ、夜景も楽しめます。また広場の周囲には遊歩道や遊具が整備されており、幅広い年代に人気です。

街の人の声

この街ボイス画像:かずま さん(当社のご契約者)

かずま さん(当社のご契約者)

名古屋市緑区滝ノ水4丁目在住

男性/37歳/4人家族(うち子ども2人)

車での移動が便利!商業施設も揃う。 自慢できること 高速の入り口が近く車での移動が便利。毎日、朝夕には渋滞するが、それも交通の便がいいからだと思う。商業施設も充実していて買い物も便利。飲食店も充実していて外食には困らない。大きい公園も割と近いので子育てはしやすいと思う。 気になること 坂が多いので自転車は不便。駅も遠いので、自転車での電車通勤ははなかなか大変。歩いて買い物に行くにも、坂が多いのでお年寄りには大変だと思う。朝夕の渋滞は覚悟したほうがいい。大きなスーパーが1つなくなったのでそれも不便。

この街ボイス画像:ああ さん(当社のご契約者)

ああ さん(当社のご契約者)

名古屋市緑区相原郷2丁目在住

女性/32歳/3人家族(うち子ども1人)

子育て世帯が多く安心 自慢できること 1号線、23号線、302号線などの幹線道路へアクセスしやすく、移動に便利。三河方面へのアクセスもよく、子どもを連れて遊びに行くのにも不自由しない。また、子育て世帯が多いので、公園等で同世代の子と会うことも多く、安心。 気になること 坂が多いので、自転車での移動は大変かもな…と思うことはある。また、公共交通機関での移動となると、駅が遠ければ市バスでの移動がメインになると思うので、それが面倒かもしれない。地下鉄がもう少しのびてくれるといいなと思う。

この街ボイス画像:みどりくみん さん(当社のご契約者)

みどりくみん さん(当社のご契約者)

名古屋市緑区旭出1丁目在住

女性/46歳/3人家族(うち子ども1人)

穏やかで静か、のんびりとした街です。 自慢できること 穏やかな街です。静かな街です。のんびりとした街です。住んでいる人たちもモラルのある方が多く、揉め事などは聴いたことがありません。小学校が近いので、子育てに適しています。ただ、住人の年齢層が上がっており、少しずつ入れ替わりが進んでいく街なのかなと感じています。 気になること 自家用車がないと不便なエリアです。坂が多いです。駅から遠いため、バスを利用するなどしないいけません。お店なども少ないため、賑やかさはありません。また、住宅街として45年くらい前にできた地域なので、お祭りなどは特にないです。

買物施設

「名古屋市緑区旭出1丁目 一戸建て 4,180万円」最寄りのスーパーマーケットの営業時間、駐車場の有無、概要、物件との距離・高低差をご紹介しています。
ウオダイプラス 鹿山店

ウオダイプラス 鹿山店

名古屋市緑区鹿山1丁目48 物件から徒歩 7
営業時間:10:00~20:00 概要:(2019.01.10時点)
バロー 滝ノ水店

バロー 滝ノ水店

名古屋市緑区滝ノ水5丁目1401 物件から徒歩 11
営業時間:10:00~20:00 概要:(2019.01.10時点)

教育施設

「名古屋市緑区旭出1丁目 一戸建て 4,180万円」の保育所、幼稚園、小学校、中学校までの距離と高低差、また当社のお客様からいただいた口コミ情報を掲載しています。
池上台幼稚園

池上台幼稚園 詳細

名古屋市緑区池上台2丁目194 物件から徒歩 10
『池上台幼稚園』は、地下鉄桜通線「鳴子北」駅から南方向へ徒歩約15分、「緑区池上台2丁目」にある私立の幼稚園です。周辺は一戸建てが中心に立ち並ぶ静かな住宅地。道を挟んで北側には「万場山公園」があります。創立は昭和53年4月。運営法人は学校法人石川学園。「たくましさ」「実行力」「思いやり」「創造力」「基本的な生活習慣」の5項目を教育の柱としています。
旭出小学校

旭出小学校 詳細

名古屋市緑区旭出1丁目101 物件から徒歩 3

(1件の口コミ)

1974年(昭和49年)に開校した小学校です。周辺は一戸建てやマンションが立ち並ぶ住宅地。学校の南側には旭出公園が面し、また北西側約250mの場所には新海池公園が広がり緑豊かな環境です。「明るく、清く、たくましく」が校訓です。(2019.7.30時点)
滝ノ水中学校

滝ノ水中学校 詳細

名古屋市緑区滝ノ水3丁目602 物件から徒歩 15
1985年(昭和60年)に鳴海中学校から分離独立し開校した中学校です。周辺は一戸建てが多く立ち並ぶ住宅地。また滝ノ水緑地や滝ノ水中央公園など公園が点在し、自然豊かな環境です。学校の南東側約200mの場所には名古屋第二環状自動車道が走っています。「信頼」が校訓です。(2019.8.13時点)

物件データ

「名古屋市緑区旭出1丁目 一戸建て 4,180万円」の所在、交通、広さなどの物件データ。物件概要ともよばれ、物件のことを理解する基本的な事項について書いています。ご不明な用語などありましたら、お気軽にお問合せください。

所在地
愛知県名古屋市緑区旭出1丁目
交通
名鉄名古屋本線「鳴海」駅バス13分 徒歩6分
→名鉄名古屋本線沿線の不動産
→名鉄名古屋本線「鳴海」駅の不動産
建物建築年月
2026年7月
構造・階数
木造 2階建
土地面積
117.89㎡
建物面積
102.27㎡
間取り
3SLDK
接道状況
北西側幅員約6.5mの公道に約5.5m接道
セットバック
私道負担面積
駐車場
有(2台)
路地状部分
傾斜地部分
現況
未完成
引渡
相談
設備
電気/上下水道/都市ガス
建築確認番号
第KS126-0420-50460号
販売戸数
1区画
総戸数
1区画
用途地域
第1種低層住居専用地域
国土法
不要
取引態様
媒介(仲介)
小学校区
旭出小学校
→旭出小学校区内の不動産
中学校区
滝ノ水中学校
→滝ノ水中学校区内の不動産
物件番号
898073R
※物件所在地(番地):508(1号地)

※ 図面と現況が異なる場合は、現況優先と致します。
※ 掲載物件は成約済み・売却中止となる場合があります。
※ 成約の際は仲介手数料とこれにかかる消費税が必要です。(当社が売主の物件除く)
※ 写真に写っている、またはパース(絵)や間取り図に描かれている家具や車などは、特にコメントがない場合、物件価格に含まれません。
※ 価格は物件の代金総額を表示しており、消費税が課税される場合は税込価格です(1000円未満は切り上げ)。
※ コメント内に記載している土砂災害警戒区域は、土砂災害特別警戒区域に指定されている箇所も含んでおります。
※ 洪水浸水想定区域、土砂災害危険箇所、土砂災害警戒区域の指定状況については最新データとは限りません。最新データ・詳細なリスクの程度・範囲などについては各自治体の「ハザードマップ」をご確認下さい。

検索条件が似た物件

Loading...

不動産の購入に関するお問合せ

ウィル不動産販売 新瑞橋営業所

ウィル不動産販売 新瑞橋営業所詳細

フリーダイヤル

0120-722-228
営業時間
10:00~19:00 定休日なし
※年末年始除く
対応エリア
関西・名古屋・東京 詳細 対応エリア 関西(阪神間・北摂・大阪)エリア 神戸市(灘区・東灘区)、大阪市※、芦屋市、西宮市、宝塚市、尼崎市、伊丹市、川西市、猪名川町、豊能町、豊中市、吹田市、箕面市、池田市、摂津市、茨木市、高槻市、島本町 名古屋エリア 名古屋市、尾張旭市、長久手市、日進市、瀬戸市、春日井市、大府市 東京エリア 東京23区※、川崎市※、川口市 ※一部の区を除く
免許番号
国土交通大臣 (5)第6447号
加入団体
公益社団法人首都圏不動産公正取引協議会 
お名前を入力してください。
電話番号を入力してください。
メールアドレスを入力してください。

お問合せ内容を選択してください。必須

任意
ご質問・ご相談内容を入力してください。

スマホやパソコンのビデオ通話機能を使って住まいに関する様々なご相談ができます。

任意

具体的なご相談内容を選択してください。必須

ご入力いただいた個人情報は、このサービスを提供する株式会社ウィルの個人情報保護方針に則って厳重に管理します。 お問合せ内容を、個人情報の取り扱いに関する基本姿勢に同意の上、送信してください。

名古屋市緑区の戸建の売却をお考えの方へ

下記ページにて、名古屋市緑区の戸建の現在の売却市況や購入希望者数、ライバル物件数、過去の成約データなどをご覧いただけます。
また無料で、価格査定や相場資料の提供を行っています。お気軽にお問合せください。

※上記の売却情報は、2026年01月末時点での値です。毎月、1ヶ月ごとの累計で集計をしているため、現在のリアルタイムでの値とは差異がある場合があります。

関連リンク

近くのエリアから一戸建てを探す
近くの町名から一戸建てを探す
リフォームの事例写真

中古住宅を買ってリフォーム

中古住宅の購入とリフォームをセットで行うと、ライフスタイルや好みに合った住まいを実現できます。

十二十家具イメージ画像

十二十家具オンラインストア

当社が運営しているインテリアショップです。日々の暮らしが豊かになる良質な家具を取り揃えています。

期間報酬制度

家を売るとき、手数料最大半額

家を売るとき、取引成立時期に応じて手数料が最大半額。節約できたコストを売主様に還元します。

平日会員制度

家を買うとき、手数料30%OFF

平日利用の家探しで、手数料が30%割引。営業稼働率を上げて生まれる利益を買主様に還元します。

『検索条件の保存』にはログイン、またはウィルWEB会員の登録が必要です。

ウィルWEB会員の登録

お名前を入力してください。
メールアドレスを入力してください。
電話番号を入力してください。
パスワードは8〜20文字で、また半角英字、数字を最低1文字以上使用してください

※パスワードは半角英数字で8〜20文字。また英字、数字それぞれ1文字以上使用してください。

必須

現在、住まいに関して検討されていることを教えてください。(複数回答可)

任意

ご質問、ご要望などございましたら、ご自由にお書きください。
また、お住まいの購入をご検討の方は、物件の広さなどご希望条件を教えてください。

ご入力いただいた個人情報は、このサービスを提供する株式会社ウィルの個人情報保護方針に則って厳重に管理します。お問合せ内容を、個人情報の取り扱いに関する基本姿勢に同意の上、送信してください。