NEW 1/10 新築

名古屋市守山区廿軒家 新築一戸建て(2号地)

3,680万円
すべての写真(8枚)を⾒る
所在
名古屋市守山区 廿軒家
交通
名鉄瀬戸線「 守山自衛隊前 」駅徒歩1分
建物
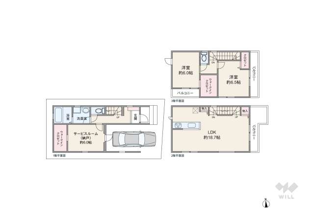
107.55平米 / 2SLDK / 2026年2月築
土地
64.34平米 / 東向き
学校
廿軒家小学校 / 守山中学校
名古屋市守山区廿軒家 新築一戸建ての地図

物件所在地はおおよその位置です。ウィルWEB会員に登録すると正確な場所が表示されます。

近隣商業地域内にある木造3階建ての新築戸建
ポイント
★名鉄瀬戸線「守山自衛隊前駅」徒歩1分!
★名古屋ガイドウェイバス「守山駅」徒歩4分!
★地下鉄名城線「砂田橋駅」徒歩12分!
★全2区画の分譲地!
★車2台駐車可!(車種による)
★『廿軒家小学校』徒歩7分!
★『ピアゴ守山店』徒歩8分!
★『矢田川』徒歩7分!
チェックポイント ◇『守山中学校』徒歩18分

特徴

  • 新着
  • 新築
  • 車2台以上
  • 小学校10分以内
  • 買物施設10分以内
  • 2区画以上

担当者のコメント

この物件は名鉄瀬戸線「守山自衛隊前駅」から徒歩1分、『名古屋市守山区廿軒家』にある新築一戸建てです。複数駅が利用可能で、名古屋ガイドウェイバス「守山駅」からは徒歩4分、地下鉄名城線「砂田橋駅」からは徒歩12分の距離にあります。
周辺は第一種住居地域、第二種中高層住居専用地域、商業地域、近隣商業地域、準住居地域、第二種住居地域に指定された店舗や事務所が立ち並ぶ住宅地。西側を県道30号関田名古屋線が走っており、南へ少し歩くと矢田川が流れています。近くにある『すいどうみち緑道』には遊具が設置され、子供の遊び場にピッタリ。矢田川の河川敷では気軽に体を動かすことができます。地勢は平坦(台地)で、標高は約25m。道幅4m前後の道路が多く、街路はやや入り組んでいます。生け垣や庭木のある家が点在し、町中の緑はやや多め。高速道路のインターチェンジまでは距離があります。
敷地面積は約19坪。全2区画の分譲地のうちの1区画。東付け道路。車2台分の駐車スペースがあります(車種による)。間取りは延床面積107.55平米の2SLDK。付帯設備は浄水器、シャンプードレッサー、浴室乾燥機、追焚機能、TV付きインターホン、床下収納庫、24時間換気システムなど…。現況は未完成です。
教育施設は『守山保育園』徒歩3分、『ともしび幼稚園』徒歩7分、『廿軒家小学校』徒歩7分、『守山中学校』徒歩18分。買物施設は『ピアゴ 守山店』徒歩8分、『マックスバリュ 砂田橋店』徒歩13分、『業務スーパー 新守山店』徒歩15分など…。その他『守山生涯学習センター』が徒歩4分、『守山図書館』が徒歩5分、『矢田川』が徒歩7分の距離にあります。

担当者

橋本 亮 橋本 亮(はしもと りょう) 宅地建物取引士

不動産用語

第二種中高層住居専用地域
第二種中高層住居専用地域とは、中高層住宅の良好な住環境を守るための地域です。マンションや住居、病院、大学のほか、1500平方メートルまでの店舗や事務所、ガソリンスタンド、オフィスビルなどを建てることができます。マンションを中心とした中高層住宅に日常生活に必要な利便施設が混在する地域です。利便施設が混在していますが、住むことを目的としているため、日当たりや日影など一定の条件が設けられています。
第一種住居地域
第一種住居地域とは、都市計画による用途地域の一つで、住居の環境を保護するための地域です。3000平方メートルまでの店舗や飲食店、ホテル、スポーツ施設、50平方メートル以下の工場などを建てることができます。第一種住居地域に指定された区域には住宅や商業施設、工場などが混在しています。住居地域であるため大規模な店舗や事務所などの建築を制限していますが、住居専用地域ではないので日当たりや日影などの条件が厳しくはありません。
第二種住居地域
第二種住居地域とは、都市計画による用途地域の一つです。住居環境を保護することを目的としつつ、住宅だけでなく、10,000平方メートルまでの大規模な店舗や遊戯施設なども建てることができます。第一種住居地域とは異なり、カラオケボックスやパチンコ店などを建てることが可能な地域となっています。第二種住居地域は住居専用地域ではないため、日当たりや日影などの条件が厳しくはありません。
準住居地域
準住居地域とは、都市計画法による用途地域の一つで、沿道において自動車関連施設などと住居が調和した環境を保護するための地域のことです。準住居地域では客席が200平方メートル未満の劇場や映画館、演芸場、観覧場などを建設することができます。第二種住居地域とは異なり、150平方メートルまでの自動車修理工場や自動車ディーラー店などを建てることも可能です。また、住居専用地域ではないため、日当たりや日影などの条件は比較的緩やかです。
近隣商業地域
近隣商業地域とは、都市計画法による用途地域の一つで、近隣住民が日用品の買物をする店舗などのために定められた地域のことです。大規模商業施設やショッピングモールだけでなく、小規模の工場を建てることもできます。住居専用地域ではないため、日当たりや日影などの制限が比較的緩やかです。商業地域において日影規制が適用されない点に対し、近隣商業地域では高さ10メートルを超える建物については日影規制が適用される点が異なっています。

設備

  • 食器洗浄機
  • 浄水器
  • IHクッキングヒーター
  • ディスポーザー
  • TV付き浴室
  • 浴室乾燥機
  • ミストサウナ
  • 追焚機能
  • シャンプードレッサー
  • 洗浄便座
  • ペアガラス
  • オール電化
  • 太陽光発電
  • 24時間換気システム
  • 床暖房
  • 電動シャッター雨戸
  • スロップシンク
  • TV付きインターホン
  • オートロック
  • 宅配ボックス
  • ロフト

ヒストリー

  • 2026.01.10

    本サイトに公開

  • 現在

  • 2026.02.01

    新築

  • 2026.02.02

    情報更新予定

※本サイトに公開:この物件がこのサイトに掲載された日です。※価格変更:この物件の価格がこのサイトで変更された日です。※情報更新予定:この物件の販売の継続、価格変更の有無など確認が行われ、情報が更新される予定の日です。

お問合せ

物件番号871895R

ウィル不動産販売 大曽根営業所 詳細

フリーダイヤル0120-100-121
住所
名古屋市北区大曽根3-7-34
営業時間
10:00~19:00 定休日なし 
※年末年始除く

お名前・メールアドレスを入力してください。

お名前を入力してください。
電話番号を入力してください。
メールアドレスを入力してください。

お問合せ内容を選択してください。必須

ご質問・ご相談内容を入力してください。
任意
ご質問・ご相談内容を入力してください。
請求する資料を入力してください。
ご入力いただいた個人情報は、このサービスを提供する株式会社ウィルの個人情報保護方針に則って厳重に管理します。 お問合せ内容を、個人情報の取り扱いに関する基本姿勢に同意の上、送信してください。

交通

「名古屋市守山区廿軒家 一戸建て 3,680万円」の最寄り駅、駅との高低差、ターミナル駅から終電時刻、バス停の時刻表など交通に関する情報をご案内しています。また行き先の駅はカスタマイズできます。

最寄り駅

名鉄瀬戸線「守山自衛隊前」駅の外観

名鉄瀬戸線「守山自衛隊前」駅

名古屋市守山区廿軒家5-7物件から 徒歩1分
停車する電車
普通
サービス施設
トイレ、車いす対応スロープ、誘導ブロック、点字券売機、駅員無配置駅

駅までの道のり(高低差)

駅・空港へのアクセス

この物件愛知県名古屋市守山区廿軒家
1
名鉄「守山自衛隊前」駅物件から約 1
24
最終: 23時49分
物件から約 25

周辺環境

「名古屋市守山区廿軒家 一戸建て 3,680万円」の住環境、近くにあるとうれしいとっておきのスポット(注目スポット)、街の住心地の口コミ(街の人の声)、当社の契約者からご回答いただいたアンケートなどをご紹介しています。

周辺環境 周辺環境 周辺環境 周辺環境

『守山自衛隊前駅〜瓢箪山駅以南エリア』は区の南西部に位置する千代田街道以北〜名鉄瀬戸線沿線の間にある地域。名鉄瀬戸線に加え、足を伸ばせば地下鉄名城線「砂田橋」駅や「茶屋ヶ坂」駅も徒歩圏内であることや、西部の『宮前橋』(県道30号線・ゆとりーとライン)や西端の『矢田川橋』(県道15号線)で東区、東部の『千代田橋』では千種区と結ぼれていることから、守山区の玄関口でもあります。また、西部には区の北東部へ伸びる県道30号線の上部に高架式の専用レーンを設けた『名古屋ガイドウェイバス(ゆとりーとライン)』が走っており、名鉄瀬戸線「守山自衛隊前」駅の北西部にゆとりーとライン「守山」駅があります。名鉄瀬戸線は市内中心部にある「栄町」駅まで乗り換えなしでアクセスが可能。線路の北側は瀬戸街道と近く市街地として発展していますが、南部の駅前エリアは商店も小規模となり、昭和の雰囲気を残したレトロな街並みです。 この地は『松蔭庵』や『長栄寺』など古くからある神社仏閣や『すいどうみち緑道』などの緑豊かなスポットが点在しており、昔ながらの落ち着いた印象の住宅街となっています。エリア内の地勢は南から北へかけて緩やかな登り坂になっていますが高低差はあまりきつくありません。全体として第1種住居地域と第2種中高層住居専用地域に指定されたマンションや戸建て、小規模な事務所などが混在する街並み。道幅は広くなく、区画整理の際にできた道路と昔ながらの道が混在しています。住宅街としてはマンションよりも戸建てが多く、階数の高い建築物はあまり多くありません。幹線道路となる千代田街道のロードサイドは並木が整備され開けた印象ですが、道路北側は飲食店や商業施設も小規模な店舗が点在するのみで、やはり住宅街の印象が強くなります。 詳細

注目スポット

注目スポット
矢田川 詳細
所在:名古屋市守山区の西部・北区・東区・千種区・名東区物件から徒歩 7

(8件の口コミ)

『矢田川』は尾張旭市の東端にある赤津川と瀬戸川の合流点から始まり、守山区の南部を流れ、西区で庄内川に合流します。守山区と北区・東区・千種区・名東区との境になっている一級河川。河川敷にはグラウンド、サイクリングコース、グランドゴルフ場、ランボール場などが整備されています。土手の桜が綺麗な『矢田川橋緑地』、野球場の併設された『大幸公園』など遊具の設けられたエリアも。河川敷に集まる野鳥を眺めたり、菜の花など季節の花を楽しんだり、自然を感じながらの散歩が楽しめます。 (2020.08.18時点)

注目スポット
すいどうみち緑道 詳細
所在:名古屋市守山区物件から徒歩 8

(2件の口コミ)

守山区西部を南北縦に縦断する、植物の植えられた遊歩道です。犬山市にある水源、木曽川から名古屋市千種区の鍋屋上野浄水場へと送られる導水管の管上に整備されていることからすいどうみちと呼称。緑道は全長約23kmありますが、うち守山区内にある約2.5kmの範囲が『すいどうみち緑道』とされています。一年を通じて季節の花や緑が楽しめ、散歩コースに最適。特に春は桜並木が綺麗で多くの人が訪れます。 (2019.06.29時点)

注目スポット
山下公園と守山プール 詳細
所在:名古屋市守山区村合町物件から徒歩 20

名古屋ガイドウェイバス(ゆとりーとライン)「川宮」駅の1番出口から南へ徒歩3分(約200m)、『すいどうみち緑道』沿いにあります。公園南側には多目的広場があり、中央部分はブランコ、幼児用ブランコ、複合遊具などが設置された遊具エリア。北側と西側には木々の植えられた園路があり春は桜、秋は紅葉が綺麗です。公園北隣には昔懐かしい佇まいの『名古屋市守山プール』が。夏休み期間中のみオープンされる屋外プールです。25mプールと魚の形の幼児用プールの2種類があり、夏になれば近所の子どもたちで賑わいます。 (2019.06.29時点)

街の人の声

この街ボイス画像:a さん(当社のご契約者)

a さん(当社のご契約者)

名古屋市守山区町南在住

女性/53歳/3人家族(うち子ども2人)

交通便利です! 自慢できること 地下鉄、名鉄、ゆとりーとライン、市バスのすべてが徒歩10分以内なので、とても便利。少し歩けばJR(大曽根)もある。台風などでどれかが運行停止になっても、必ず帰宅できるので安心。名古屋ドームイオンなどの大型商業施設も徒歩圏内で、栄にも乗り換えなしですぐ行ける。 気になること 特にありません(町内会に参加していなかったため、その辺りの情報についてはわかりません)。

買物施設

「名古屋市守山区廿軒家 一戸建て 3,680万円」最寄りのスーパーマーケットの営業時間、駐車場の有無、概要、物件との距離・高低差をご紹介しています。
ピアゴ 守山店

ピアゴ 守山店

名古屋市守山区東山町12-26 物件から徒歩 8
営業時間:9:00~21:00 駐車場:有(50台) 概要:名鉄瀬戸線「瓢箪山」駅から北へ徒歩3分(約200m)、瀬戸街道沿いにあります。食料品、日用品を取り扱うスーパー。同じ建物の中には美容室、クリーニング店、花屋、英語教室、100円ショップ、書店があります。 (2020.07.28時点)
マックスバリュ 砂田橋店

マックスバリュ 砂田橋店

名古屋市東区砂田橋1丁目1-10 物件から徒歩 13
営業時間:0:00~24:00 駐車場:有(320台) 概要:(2020.07.30時点)

教育施設

「名古屋市守山区廿軒家 一戸建て 3,680万円」の保育所、幼稚園、小学校、中学校までの距離と高低差、また当社のお客様からいただいた口コミ情報を掲載しています。
ともしび幼稚園

ともしび幼稚園 詳細

名古屋市守山区更屋敷10-11 物件から徒歩 7
『ともしび幼稚園』は、名鉄瀬戸線「守山自衛隊前」駅から南東方向へ徒歩8分、地下鉄名城線「砂田橋」駅から北東方向へ徒歩13分、「更屋敷」にある幼稚園です。すぐ南側を矢田川が流れ、東隣には「廿軒家小学校」があります。「健全な教育環境を整備し、的確な教育指導に当たること」を園の使命と考えています。
廿軒家小学校

廿軒家小学校 詳細

名古屋市守山区更屋敷16-16 物件から徒歩 7
1955年(昭和30年)に開校した小学校です。学校の南側は矢田川のため開放感があります。このあたりはかつて犬山城主・成瀬氏の領地だったことから、成瀬氏の家紋に使われている「カタバミ」の文様が校章に取り入れられています。 (2020.09.02 時点)
守山中学校

守山中学校 詳細

名古屋市守山区大屋敷13-63 物件から徒歩 18
1947年(昭和22年)に愛知県東春日井郡守山町立守山中学校として創立し、後に分離独立、改称しました。北側に西城小学校、南に守山小学校が位置し、敷地西側には守山幼稚園があります。 (2020.09.02 時点)

物件データ

「名古屋市守山区廿軒家 一戸建て 3,680万円」の所在、交通、広さなどの物件データ。物件概要ともよばれ、物件のことを理解する基本的な事項について書いています。ご不明な用語などありましたら、お気軽にお問合せください。

所在地
愛知県名古屋市守山区廿軒家
交通
名鉄瀬戸線「守山自衛隊前」駅徒歩1分
→名鉄瀬戸線沿線の不動産
→名鉄瀬戸線「守山自衛隊前」駅の不動産
名古屋ガイドウェイバス「守山」駅徒歩4分
名鉄瀬戸線「瓢箪山」駅徒歩9分
地下鉄名城線「砂田橋」駅徒歩12分
建物建築年月
2026年2月
構造・階数
木造 3階建
土地面積
64.34㎡
建物面積
107.55㎡
間取り
2SLDK
接道状況
東側幅員約6.9mの公道に約5.7m接道
セットバック
私道負担面積
駐車場
有(2台)
路地状部分
傾斜地部分
現況
未完成
引渡
期日指定(2026年2月頃)
設備
電気/上下水道/都市ガス/給湯
建築確認番号
第KS125ー0420−55879号
販売戸数
2区画
総戸数
2区画
用途地域
近隣商業地域
国土法
不要
取引態様
媒介(仲介)
小学校区
廿軒家小学校
→廿軒家小学校区内の不動産
中学校区
守山中学校
→守山中学校区内の不動産
物件番号
871895R
※物件所在地(番地):505(2号地)
※宅地造成等工事規制区域、景観法

※ 図面と現況が異なる場合は、現況優先と致します。
※ 掲載物件は成約済み・売却中止となる場合があります。
※ 成約の際は仲介手数料とこれにかかる消費税が必要です。(当社が売主の物件除く)
※ 写真に写っている、またはパース(絵)や間取り図に描かれている家具や車などは、特にコメントがない場合、物件価格に含まれません。
※ 価格は物件の代金総額を表示しており、消費税が課税される場合は税込価格です(1000円未満は切り上げ)。
※ コメント内に記載している土砂災害警戒区域は、土砂災害特別警戒区域に指定されている箇所も含んでおります。
※ 洪水浸水想定区域、土砂災害危険箇所、土砂災害警戒区域の指定状況については最新データとは限りません。最新データ・詳細なリスクの程度・範囲などについては各自治体の「ハザードマップ」をご確認下さい。

検索条件が似た物件

Loading...

不動産の購入に関するお問合せ

ウィル不動産販売 大曽根営業所

ウィル不動産販売 大曽根営業所詳細

フリーダイヤル

0120-100-121
営業時間
10:00~19:00 定休日なし
※年末年始除く
対応エリア
関西・名古屋・東京 詳細 対応エリア 関西(阪神間・北摂・大阪)エリア 神戸市(灘区・東灘区)、大阪市※、芦屋市、西宮市、宝塚市、尼崎市、伊丹市、川西市、猪名川町、豊能町、豊中市、吹田市、箕面市、池田市、摂津市、茨木市、高槻市、島本町 名古屋エリア 名古屋市、尾張旭市、長久手市、日進市、瀬戸市、春日井市、大府市 東京エリア 東京23区※、川崎市※、川口市 ※一部の区を除く
免許番号
国土交通大臣 (5)第6447号
加入団体
公益社団法人首都圏不動産公正取引協議会 
お名前を入力してください。
電話番号を入力してください。
メールアドレスを入力してください。

お問合せ内容を選択してください。必須

任意
ご質問・ご相談内容を入力してください。

スマホやパソコンのビデオ通話機能を使って住まいに関する様々なご相談ができます。

任意

具体的なご相談内容を選択してください。必須

ご入力いただいた個人情報は、このサービスを提供する株式会社ウィルの個人情報保護方針に則って厳重に管理します。 お問合せ内容を、個人情報の取り扱いに関する基本姿勢に同意の上、送信してください。

名古屋市守山区の戸建の売却をお考えの方へ

下記ページにて、名古屋市守山区の戸建の現在の売却市況や購入希望者数、ライバル物件数、過去の成約データなどをご覧いただけます。
また無料で、価格査定や相場資料の提供を行っています。お気軽にお問合せください。

※上記の売却情報は、2025年11月末時点での値です。毎月、1ヶ月ごとの累計で集計をしているため、現在のリアルタイムでの値とは差異がある場合があります。

関連リンク

近くのエリアから一戸建てを探す
近くの町名から一戸建てを探す
リフォームの事例写真

中古住宅を買ってリフォーム

中古住宅の購入とリフォームをセットで行うと、ライフスタイルや好みに合った住まいを実現できます。

十二十家具イメージ画像

十二十家具オンラインストア

当社が運営しているインテリアショップです。日々の暮らしが豊かになる良質な家具を取り揃えています。

期間報酬制度

家を売るとき、手数料最大半額

家を売るとき、取引成立時期に応じて手数料が最大半額。節約できたコストを売主様に還元します。

平日会員制度

家を買うとき、手数料30%OFF

平日利用の家探しで、手数料が30%割引。営業稼働率を上げて生まれる利益を買主様に還元します。

『検索条件の保存』にはログイン、またはウィルWEB会員の登録が必要です。

ウィルWEB会員の登録

お名前を入力してください。
メールアドレスを入力してください。
電話番号を入力してください。
パスワードは8〜20文字で、また半角英字、数字を最低1文字以上使用してください

※パスワードは半角英数字で8〜20文字。また英字、数字それぞれ1文字以上使用してください。

必須

現在、住まいに関して検討されていることを教えてください。(複数回答可)

任意

ご質問、ご要望などございましたら、ご自由にお書きください。
また、お住まいの購入をご検討の方は、物件の広さなどご希望条件を教えてください。

ご入力いただいた個人情報は、このサービスを提供する株式会社ウィルの個人情報保護方針に則って厳重に管理します。お問合せ内容を、個人情報の取り扱いに関する基本姿勢に同意の上、送信してください。