NEW 1/10 新築

足立区花畑7丁目 新築一戸建て(1号地)

4,980万円
所在
足立区 花畑7丁目
交通
東武伊勢崎線「 谷塚 」駅バス10分 徒歩9分
建物
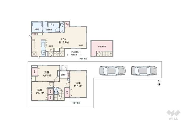
94.39平米 / 3LDK / 2026年2月築
土地
107平米 / 東向き
学校
桜花小学校 / 花畑北中学校
足立区花畑7丁目 新築一戸建ての地図

物件所在地はおおよその位置です。ウィルWEB会員に登録すると正確な場所が表示されます。

第1種住居地域内にある木造2階建ての新築戸建
ポイント
★駅からバス乗車約10分・徒歩9分!
★全3区画の分譲地!
★敷地面積約32坪!
★車2台駐車可!(車種による)
★『桜花小学校』徒歩9分!
★『花畑北中学校』徒歩7分!
★『スーパーベルクス足立花畑中央店』徒歩13分!
★『桑袋ビオトープ公園』徒歩6分!
チェックポイント ◇路地状敷地(不整形地)

特徴

  • 新着
  • 新築
  • 車2台以上
  • 小学校10分以内
  • 2区画以上

担当者のコメント

この物件は東武伊勢崎線「谷塚駅」からバス乗車約10分・徒歩9分、『足立区花畑7丁目』にある新築一戸建てです。
周辺は第一種中高層住居専用地域、第一種低層住居専用地域、第一種住居地域に指定された一部店舗や事務所、主に集合住宅と一戸建てが立ち並ぶ住宅地です。東側を綾瀬川が流れており、綾瀬川に向かって毛長川と伝右川が合流しています。川沿いには2005年に『桑袋小学校』跡地を公園整備した『桑袋ビオトープ公園』があり、気軽に自然に触れて、自然を学ぶことができます。また近くに酉の市の発祥の社としても知られる『花畑大鷲神社』が鎮座しており、本殿の彫刻は見事です。地勢は平坦で、標高は約2.5m。花畑鷲宿(昭和46年換地処分)と花畑北部(平成29年換地処分)の土地区画整理事業区域内にあり、道幅5m前後の道路が多く、街路は整っています。町中の緑は少なめ。約2.5kmの距離に首都高速6号三郷線の八潮南インターチェンジがあります。
敷地面積は約32坪(路地状部分約15平米含む ※概算)。全3区画の分譲地のうちの1区画。東付け道路。車2台分の駐車スペースがあります(車種による)。間取りは延床面積94.39平米の3LDK。付帯設備は食器洗浄機、浄水器、洗浄便座、シャンプードレッサー、追焚機能、床暖房、ペアガラス、TV付きインターホンなど…。現況は未完成です。
教育施設は『花畑桑袋保育園』徒歩9分、『花畑八千代幼稚園』徒歩8分、『桜花小学校』徒歩9分、『花畑北中学校』徒歩7分。最寄りのスーパーは『スーパーベルクス 足立花畑中央店』徒歩13分。その他『桜花住区センター分館』が徒歩5分、『桑袋ビオトープ公園』が徒歩6分、『桜花住区センター』と『あいぐみ緑地公園』が徒歩9分の距離にあります。

担当者

溝口 昂平 溝口 昂平(みぞぐち こうへい) 宅地建物取引士

不動産用語

第一種低層住居専用地域
第一種低層住居専用地域とは、都市計画における用途地域の1つで、低層住宅の良好な住環境を守るための地域のことです。13種類の用途地域の中で最も厳しい規制が設けられており、高さがある建物や騒音を出すような用途の建物を建築することができません。軒の高さが7メートルを超えるか、3階以上(地階を除く)の建築物で、条例によって指定された区域に建つ建物は日影規制の適用対象となります。日影規制とは、建築物からできる影が周辺の土地に一定時間かからないようにすることにより、日照環境を確保するための制限のことです。
第一種中高層住居専用地域
第一種中高層住居専用地域とは、都市計画における用途地域の1つで、中高層住宅の良好な住環境を守るための地域のことです。4階建て以上のマンションをはじめ、スーパーなどの床面積500平方メートルまでの店舗や病院、大学などを建てることができます。スーパーなどの日常生活に必要な施設が揃っていることも多く、生活利便にもすぐれています。
第一種住居地域
第一種住居地域とは、都市計画による用途地域の一つで、住居の環境を保護するための地域です。3000平方メートルまでの店舗や飲食店、ホテル、スポーツ施設、50平方メートル以下の工場などを建てることができます。第一種住居地域に指定された区域には住宅や商業施設、工場などが混在しています。住居地域であるため大規模な店舗や事務所などの建築を制限していますが、住居専用地域ではないので日当たりや日影などの条件が厳しくはありません。

設備

  • 食器洗浄機
  • 浄水器
  • IHクッキングヒーター
  • ディスポーザー
  • TV付き浴室
  • 浴室乾燥機
  • ミストサウナ
  • 追焚機能
  • シャンプードレッサー
  • 洗浄便座
  • ペアガラス
  • オール電化
  • 太陽光発電
  • 24時間換気システム
  • 床暖房
  • 電動シャッター雨戸
  • スロップシンク
  • TV付きインターホン
  • オートロック
  • 宅配ボックス
  • ロフト

ヒストリー

  • 2026.01.10

    本サイトに公開

  • 現在

  • 2026.01.19

    情報更新予定

  • 2026.02.01

    新築

※本サイトに公開:この物件がこのサイトに掲載された日です。※価格変更:この物件の価格がこのサイトで変更された日です。※情報更新予定:この物件の販売の継続、価格変更の有無など確認が行われ、情報が更新される予定の日です。

お問合せ

物件番号870949R

ウィル不動産販売 北千住営業所 詳細

フリーダイヤル0120-806-800
住所
足立区千住2-4
営業時間
10:00~19:00 定休日なし 
※年末年始除く

お名前・メールアドレスを入力してください。

お名前を入力してください。
電話番号を入力してください。
メールアドレスを入力してください。

お問合せ内容を選択してください。必須

ご質問・ご相談内容を入力してください。
任意
ご質問・ご相談内容を入力してください。
請求する資料を入力してください。
ご入力いただいた個人情報は、このサービスを提供する株式会社ウィルの個人情報保護方針に則って厳重に管理します。 お問合せ内容を、個人情報の取り扱いに関する基本姿勢に同意の上、送信してください。

交通

「足立区花畑7丁目 一戸建て 4,980万円」の最寄り駅、駅との高低差、ターミナル駅から終電時刻、バス停の時刻表など交通に関する情報をご案内しています。また行き先の駅はカスタマイズできます。

最寄り駅

東武伊勢崎線「谷塚」駅の外観

東武伊勢崎線「谷塚」駅

草加市谷塚1丁目1-22物件から 徒歩9分・バス10分
停車する電車
普通

駅までの道のり(高低差)

駅・空港へのアクセス

この物件東京都足立区花畑7丁目
9
バス停
10
東武「谷塚」駅物件から約 19
41
最終: 24時00分
物件から約 60

周辺環境

「足立区花畑7丁目 一戸建て 4,980万円」の住環境、近くにあるとうれしいとっておきのスポット(注目スポット)、街の住心地の口コミ(街の人の声)、当社の契約者からご回答いただいたアンケートなどをご紹介しています。

街の人の声

この街ボイス画像:aoioa さん(当社のご契約者)

aoioa さん(当社のご契約者)

足立区青井5丁目在住

男性/56歳/3人家族(うち子ども1人)

加平ICまで車で1分、交通のアクセス◎! 自慢できること 最寄りのTX青井駅まで徒歩8分。徒歩圏内の東京メトロ北綾瀬駅は開発が進み『ららテラス北綾瀬』開業。環七通り至近で加平インターも車で1分。交通のアクセスが良い。 気になること 環七通りが近いため、空気がきれいとは言えない。

この街ボイス画像:ムラタ さん(当社のご契約者)

ムラタ さん(当社のご契約者)

足立区谷中1丁目在住

女性/70歳/1人家族

公園や区民プールが近く子育てに◎ 自慢できること 夜静かで騒ぐ人がいない。最近、ららテラスもできて駅前がさらに便利になってきた。駅から周辺にスーパーが3つありすこし離れた場所にも1つある。公園も多く広いので、4月にはお花見する人もおり、春や夏など天気がいい日はテントを張って子供を遊ばせる人もいる。また、家の近くにテニスコートもあり、足立区で運営している区民プールもあります。徒歩3分の距離にファミマもあります。 気になること 夜静かすぎる

この街ボイス画像:N.I さん(当社のご契約者)

N.I さん(当社のご契約者)

足立区本木1丁目在住

男性/52歳/4人家族(うち子ども2人)

子育てが終わった世代には住みやすい 自慢できること 過度な近所付き合いがなく静か。学校も近くにないので静か。子育てが終わっているのでこれがとても良かった。車があるので離れたスーパーですが道が空いていて数分で着くのもいい。歩いていける範囲にはなにもないけれど、車なので特に不便は感じない。 気になること 河川と土手がある。異常気象が叫ばれる昨今、決壊したら我が家は一巻の終わりだろうなと思う。土手をなだらかに広げる計画もあるらしく、そうした場合、我が家の一体は土手に含まれるらしいのでまちづくり次第では立ち退きなのかなとも思う。

買物施設

「足立区花畑7丁目 一戸建て 4,980万円」最寄りのスーパーマーケットの営業時間、駐車場の有無、概要、物件との距離・高低差をご紹介しています。
スーパーベルクス 足立花畑中央店

スーパーベルクス 足立花畑中央店

東京都足立区花畑5-13-2 物件から徒歩 13
営業時間:10:00~21:00 駐車場:有(300台)

教育施設

「足立区花畑7丁目 一戸建て 4,980万円」の保育所、幼稚園、小学校、中学校までの距離と高低差、また当社のお客様からいただいた口コミ情報を掲載しています。
花畑八千代幼稚園

花畑八千代幼稚園 詳細

東京都足立区花畑6丁目20番11号 物件から徒歩 8
『花畑八千代幼稚園』は、つくばエクスプレス「六町」駅から北西方向へ徒歩30分、「花畑5丁目」にある私立のプライマリースクールです。東方向へ少し歩いたところを都道466号内匠橋花畑線が走り、南西方向へ約160m歩いたところに『足立区立樫ノ木公園』があります。1956年に開園。運営法人は花畑八千代幼稚園です。「強く・明るく・かしこい子の育成を行う」を教育目標としています。
桜花小学校

桜花小学校 詳細

東京都足立区花畑6丁目4-6 物件から徒歩 9
『足立区立桜花小学校』は東武伊勢崎線「谷塚駅」から南東方向へ徒歩28分、「東京都足立区花畑6丁目」にある公立小学校です。平成9年に『桑袋小学校』と『花畑東小学校』が統合し、開校されました。小学校の周囲には『レイモンド花畑保育園』や『足立区立花畑北中学校』が近接しています。また小学校から東側へ少し歩くと『足立区立花六東公園』があり、綾瀬川が流れています。
花畑北中学校

花畑北中学校 詳細

東京都足立区花畑6丁目12-35 物件から徒歩 7
『足立区立花畑北中学校』は東武伊勢崎線「谷塚駅」から南東方向へ徒歩26分、「東京都足立区花畑6丁目」にある公立中学校です。昭和53年に開校されました。中学校と同じ敷地内に『浅間第一公園』が、南側に『足立区立桜花小学校』が近接しています。また北側には毛長川が、東側には綾瀬川が流れています。校章には学校の木である「白樫」の葉をモチーフに、北の字で大地をしっかりと踏みしめて大空に向かって伸びていこうとする生徒の姿をデザインしています。

物件データ

「足立区花畑7丁目 一戸建て 4,980万円」の所在、交通、広さなどの物件データ。物件概要ともよばれ、物件のことを理解する基本的な事項について書いています。ご不明な用語などありましたら、お気軽にお問合せください。

所在地
東京都足立区花畑7丁目
交通
東武伊勢崎線「谷塚」駅バス10分 徒歩9分
→東武伊勢崎線沿線の不動産
→東武伊勢崎線「谷塚」駅の不動産
建物建築年月
2026年2月
構造・階数
木造 2階建
土地面積
107㎡
建物面積
94.39㎡
間取り
3LDK
接道状況
東側道路に接道
セットバック
私道負担面積
駐車場
有(2台)
路地状部分
15㎡(土地面積に含む)
傾斜地部分
現況
未完成
引渡
期日指定(2026年3月上旬)
設備
都市ガス/電気/上下水道/給湯
建築確認番号
第R07SHC120119号
販売戸数
3区画
総戸数
3区画
用途地域
第1種住居地域
国土法
不要
取引態様
媒介(仲介)
小学校区
桜花小学校
→桜花小学校区内の不動産
中学校区
花畑北中学校
→花畑北中学校区内の不動産
物件番号
870949R
※物件所在地(番地):17(1号地)

※ 図面と現況が異なる場合は、現況優先と致します。
※ 掲載物件は成約済み・売却中止となる場合があります。
※ 成約の際は仲介手数料とこれにかかる消費税が必要です。(当社が売主の物件除く)
※ 写真に写っている、またはパース(絵)や間取り図に描かれている家具や車などは、特にコメントがない場合、物件価格に含まれません。
※ 価格は物件の代金総額を表示しており、消費税が課税される場合は税込価格です(1000円未満は切り上げ)。
※ コメント内に記載している土砂災害警戒区域は、土砂災害特別警戒区域に指定されている箇所も含んでおります。
※ 洪水浸水想定区域、土砂災害危険箇所、土砂災害警戒区域の指定状況については最新データとは限りません。最新データ・詳細なリスクの程度・範囲などについては各自治体の「ハザードマップ」をご確認下さい。

検索条件が似た物件

Loading...

不動産の購入に関するお問合せ

ウィル不動産販売 北千住営業所

ウィル不動産販売 北千住営業所詳細

フリーダイヤル

0120-806-800
営業時間
10:00~19:00 定休日なし
※年末年始除く
対応エリア
関西・名古屋・東京 詳細 対応エリア 関西(阪神間・北摂・大阪)エリア 神戸市(灘区・東灘区)、大阪市※、芦屋市、西宮市、宝塚市、尼崎市、伊丹市、川西市、猪名川町、豊能町、豊中市、吹田市、箕面市、池田市、摂津市、茨木市、高槻市、島本町 名古屋エリア 名古屋市、尾張旭市、長久手市、日進市、瀬戸市、春日井市、大府市 東京エリア 東京23区※、川崎市※、川口市 ※一部の区を除く
免許番号
国土交通大臣 (5)第6447号
加入団体
公益社団法人首都圏不動産公正取引協議会 
お名前を入力してください。
電話番号を入力してください。
メールアドレスを入力してください。

お問合せ内容を選択してください。必須

任意
ご質問・ご相談内容を入力してください。

スマホやパソコンのビデオ通話機能を使って住まいに関する様々なご相談ができます。

任意

具体的なご相談内容を選択してください。必須

ご入力いただいた個人情報は、このサービスを提供する株式会社ウィルの個人情報保護方針に則って厳重に管理します。 お問合せ内容を、個人情報の取り扱いに関する基本姿勢に同意の上、送信してください。

関連リンク

近くのエリアから一戸建てを探す
近くの町名から一戸建てを探す

購入:住まいをさがす

住まいをさがす(東京)TOP

特集

平日の家探しで仲介手数料30%OFF 新着物件お知らせメール 相場データ提供サービス 買替えシミュレーション 買替え成功のポイント 不動産相場価格推定システム 購入時・購入後のサポート 不動産用語
購入に関する問合せ
リフォームの事例写真

中古住宅を買ってリフォーム

中古住宅の購入とリフォームをセットで行うと、ライフスタイルや好みに合った住まいを実現できます。

十二十家具イメージ画像

十二十家具オンラインストア

当社が運営しているインテリアショップです。日々の暮らしが豊かになる良質な家具を取り揃えています。

期間報酬制度

家を売るとき、手数料最大半額

家を売るとき、取引成立時期に応じて手数料が最大半額。節約できたコストを売主様に還元します。

平日会員制度

家を買うとき、手数料30%OFF

平日利用の家探しで、手数料が30%割引。営業稼働率を上げて生まれる利益を買主様に還元します。

『検索条件の保存』にはログイン、またはウィルWEB会員の登録が必要です。

ウィルWEB会員の登録

お名前を入力してください。
メールアドレスを入力してください。
電話番号を入力してください。
パスワードは8〜20文字で、また半角英字、数字を最低1文字以上使用してください

※パスワードは半角英数字で8〜20文字。また英字、数字それぞれ1文字以上使用してください。

必須

現在、住まいに関して検討されていることを教えてください。(複数回答可)

任意

ご質問、ご要望などございましたら、ご自由にお書きください。
また、お住まいの購入をご検討の方は、物件の広さなどご希望条件を教えてください。

ご入力いただいた個人情報は、このサービスを提供する株式会社ウィルの個人情報保護方針に則って厳重に管理します。お問合せ内容を、個人情報の取り扱いに関する基本姿勢に同意の上、送信してください。