新築

尼崎市常松1丁目 新築一戸建て(3号地)

4,680万円
すべての写真(8枚)を⾒る
所在
尼崎市 常松1丁目
交通
阪急今津線「 甲東園 」駅徒歩23分
建物
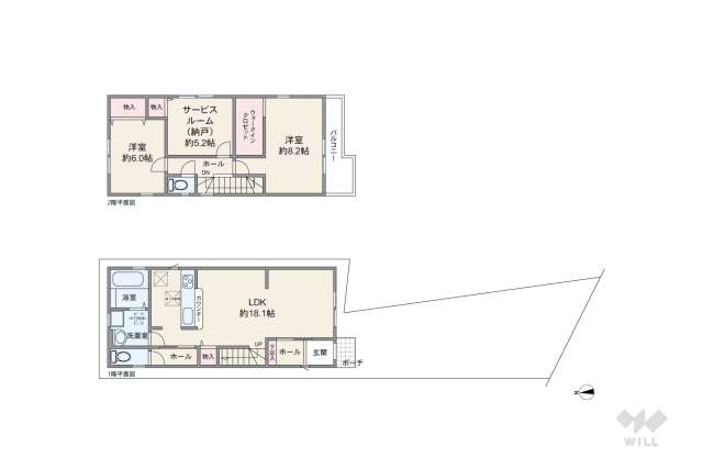
91.12平米 / 2SLDK / 2026年4月築
土地
114.73平米 / 南向き
学校
武庫北小学校 / 常陽中学校
尼崎市常松1丁目 新築一戸建ての地図

物件所在地はおおよその位置です。ウィルWEB会員に登録すると正確な場所が表示されます。

第1種住居地域内にある木造2階建ての新築戸建
ポイント
★阪急今津線「甲東園駅」徒歩23分!
★全4区画の分譲地!
★南付け道路で採光良好!
★敷地面積約34坪!
★車2台駐車可!(車種による)
★『武庫北小学校』徒歩6分!
★『常陽中学校』徒歩7分!
★『コープミニ西武庫』徒歩4分!
★『武庫川髭の渡しコスモス園』徒歩7分!

特徴

  • 新築
  • 車2台以上
  • 南道路
  • 小学校10分以内
  • 買物施設10分以内
  • 2区画以上

担当者のコメント

この物件は阪急今津線「甲東園駅」から徒歩23分、『尼崎市常松1丁目』にある新築一戸建てです。
周辺は第一種住居地域に指定された一部店舗や事務所、主に一戸建てと集合住宅が立ち並ぶ住宅地です。北側を山陽新幹線が走っており、西側を武庫川が流れています。近い場所に『常松南公園』などの小さな公園が点在しており、南西方向へ少し歩くと季節ごとに様々な花が楽しめる緑豊かな公園『西武庫公園』があります。水路沿いの所々に遊歩道があり、お散歩コースにピッタリ。武庫川の河川敷にはサイクリングロードや広場、グラウンドなどが整備されています。地勢は平坦で、標高は約10m。道幅4m前後の道路が多く、街路はやや入り組んでいます。町中の緑は少なめ。高速道路のインターチェンジまでは距離があります。
敷地面積は約34坪。全4区画の分譲地のうちの1区画。南付け道路で採光良好。車2台分の駐車スペースがあります(車種による)。間取りは延床面積91.12平米の2SLDK。付帯設備は浄水器、シャンプードレッサー、浴室乾燥機、追焚機能、TV付きインターホン、床下収納庫、24時間換気システムなど…。現況は未完成です。
教育施設は『西武庫みのり保育園』徒歩8分、『武庫北幼稚園』徒歩7分、『武庫北小学校』徒歩6分、『常陽中学校』徒歩7分。買物施設は『コープミニ 西武庫』徒歩4分、『モンマルシェ 西武庫店』徒歩13分、『サンディ 武庫元町店』徒歩15分など…。その他『武庫川髭の渡しコスモス園』が徒歩7分、『西武庫公園』が徒歩10分、『武庫支所』が徒歩12分の距離にあります。

担当者

橘川 まゆみ 橘川 まゆみ(きつかわ まゆみ) 宅地建物取引士

不動産用語

第一種住居地域
第一種住居地域とは、都市計画による用途地域の一つで、住居の環境を保護するための地域です。3000平方メートルまでの店舗や飲食店、ホテル、スポーツ施設、50平方メートル以下の工場などを建てることができます。第一種住居地域に指定された区域には住宅や商業施設、工場などが混在しています。住居地域であるため大規模な店舗や事務所などの建築を制限していますが、住居専用地域ではないので日当たりや日影などの条件が厳しくはありません。

設備

  • 食器洗浄機
  • 浄水器
  • IHクッキングヒーター
  • ディスポーザー
  • TV付き浴室
  • 浴室乾燥機
  • ミストサウナ
  • 追焚機能
  • シャンプードレッサー
  • 洗浄便座
  • ペアガラス
  • オール電化
  • 太陽光発電
  • 24時間換気システム
  • 床暖房
  • 電動シャッター雨戸
  • スロップシンク
  • TV付きインターホン
  • オートロック
  • 宅配ボックス
  • ロフト

ヒストリー

  • 2025.12.19

    本サイトに公開

  • 2026.03.16

    情報更新予定

  • 現在

  • 2026.04.01

    新築

※本サイトに公開:この物件がこのサイトに掲載された日です。※価格変更:この物件の価格がこのサイトで変更された日です。※情報更新予定:この物件の販売の継続、価格変更の有無など確認が行われ、情報が更新される予定の日です。

お問合せ

物件番号865828R

ウィル不動産販売 塚口営業所 詳細

フリーダイヤル0120-070-709
住所
尼崎市南塚口町2-5-9
営業時間
10:00~19:00 定休日なし 
※年末年始除く

お名前・メールアドレスを入力してください。

お名前を入力してください。
電話番号を入力してください。
メールアドレスを入力してください。

お問合せ内容を選択してください。必須

ご質問・ご相談内容を入力してください。
任意
ご質問・ご相談内容を入力してください。
請求する資料を入力してください。
ご入力いただいた個人情報は、このサービスを提供する株式会社ウィルの個人情報保護方針に則って厳重に管理します。 お問合せ内容を、個人情報の取り扱いに関する基本姿勢に同意の上、送信してください。

交通

「尼崎市常松1丁目 一戸建て 4,680万円」の最寄り駅、駅との高低差、ターミナル駅から終電時刻、バス停の時刻表など交通に関する情報をご案内しています。また行き先の駅はカスタマイズできます。

最寄り駅

阪急今津線「甲東園」駅の外観

阪急今津線「甲東園」駅

西宮市甲東園一丁目1物件から 徒歩23分
停車する電車
準急、普通
※準急は西宮北口方面平日7~8時台のみ

駅までの道のり(高低差)

駅・空港へのアクセス

この物件兵庫県尼崎市常松1丁目
23
阪急「甲東園」駅物件から約 23
22
最終: 24時00分
物件から約 45

周辺環境

「尼崎市常松1丁目 一戸建て 4,680万円」の住環境、近くにあるとうれしいとっておきのスポット(注目スポット)、街の住心地の口コミ(街の人の声)、当社の契約者からご回答いただいたアンケートなどをご紹介しています。

周辺環境 周辺環境 周辺環境 周辺環境

阪急「武庫之荘」駅からバス便になるエリアです。武庫商店街には、食料品、文具、衣料など多数の店舗が揃っています。武庫支所も近くにあり、駅からは遠く通勤には不便かもしれませんが、生活施設は近隣に充実しています。『武庫町、武庫の里、武庫元町』は昭和34~53年に区画整理されていますが、『常松、常吉』は田畑が多く、狭い道も見られます。日本で最初の交通公園である『西武庫公園』は桜の名所としても有名で、花見の季節には屋台が出るなど多くの人で賑わいます。武庫川河川敷は、日曜日には交通規制がかけられ、四季の移り変わりを楽しみながらのんびり歩ける絶好の散歩コースとなります。 詳細

注目スポット

注目スポット
武庫川髭の渡しコスモス園 詳細
所在:尼崎市西昆陽4丁目付近物件から徒歩 7

(1件の口コミ)

阪神間最大規模のコスモス園。10月下旬から11月中旬にかけて武庫川の河川敷に、約13,000平米のコスモスの絨毯が広がります。入場無料で、一般社団法人によるイベントも行われます。※臨時駐車場使用の場合は協力金が必要。収容台数は約300台(2020.07.28時点)

注目スポット
西武庫公園 詳細
所在:尼崎市武庫元町3-14-1物件から徒歩 10

(5件の口コミ)

日本で最初に出来た交通公園だそうです。幼稚園や小学校の子供がこの公園で交通ルールを学びます。交通施設だけではなく、各種の庭園その他遊具もたくさん有ります。春には出店が多く出て、お花見スポットになります。また普段、公園の林の中のベンチで読書やお弁当を広げる人たちもよく見かけます。(2020.07.28時点)

注目スポット
武庫川 詳細
所在:尼崎市西昆陽2物件から徒歩 15

『武庫川』は尼崎市の西側を南北に流れています。尼崎市と西宮市の市境になっています。河川敷は公園と球技場などに整備されており、緑もいっぱいです。菜の花畑やコスモス畑、桜並木など、四季折々の花も楽しめます。毎朝ジョギング、ウォーキング、サイクリングなどする人たちで賑わいます。(2020.07.28時点)

街の人の声

この街ボイス画像:ナオト さん(当社のご契約者)

ナオト さん(当社のご契約者)

尼崎市武庫豊町3丁目在住

男性/25歳/4人家族

再開発で子育て世代が増えている。 自慢できること 武庫営業所が近いので、阪急やJRへはバスでカバー出来ます。伊丹空港へのアクセスは少し悪いですが、距離自体は近いので車があれば直ぐに行けます。町も静かで住みやすく、保育園から高校まで、教育機関も充実しているので、子育て世代にもオススメな町だと思います。 気になること 町の全体の高齢化が心配でしたが、最近また開発されて子育て世代が増えているので、土地の価値等は問題無いと思います。気になるのは阪急武庫川駅の開発計画です。武庫之荘駅よりも近い最寄り駅になると考えられますが、駅までの交通機関が武庫営業所発のバスから乗れるかが気になります。

この街ボイス画像:ケロ さん(当社のご契約者)

ケロ さん(当社のご契約者)

尼崎市武庫豊町2丁目在住

男性/38歳/2人家族

満足しています。 自慢できること 駅からは遠いが、バスの始発点ということもあり特段不便さも感じない。大きな道路とも近いが、騒音などは気にならない。周辺も落ち着いた環境で満足している。生活に必要なものは周辺で大体は揃うので、こちらも不満はない。 気になること 駅からは遠い。自転車で行くにしてもそれなりの距離はある。ただし坂道などは無いので、人によっては苦にならないかもしれない。周辺はほとんど新しく建てられた分譲地で、新しい街という印象はあるが、一方で古くからの住人もおられるため、どういった印象を持たれているかは不安ではある。

この街ボイス画像:kabe さん(当社のご契約者)

kabe さん(当社のご契約者)

尼崎市武庫豊町3丁目在住

女性/31歳/4人家族(うち子ども1人)

子供を育てていく環境としてはとても良い。 自慢できること 商店街が近く、個人でされているお店が多いのですぐ顔を覚えてもらえたり小学校、中学校、保育園が近くにあるので子供を育てていく環境としてはとても良いです。広い公園もあったり、夜も基本的に街灯とかもあったりお店もあるのでそこまで真っ暗ではなく夜にウォーキングしてる方もよく見ます。 気になること 町についての気になることは特にありません。

買物施設

「尼崎市常松1丁目 一戸建て 4,680万円」最寄りのスーパーマーケットの営業時間、駐車場の有無、概要、物件との距離・高低差をご紹介しています。
コープミニ 西武庫

コープミニ 西武庫

尼崎市武庫豊町3-9-11 物件から徒歩 4
営業時間:9:00~21:00 概要:国道171号線の南側、武庫豊町の住宅街にあります。2階には個人医院などの医療施設があります。 (2020.07.18時点)
モンマルシェ 西武庫店

モンマルシェ 西武庫店

尼崎市武庫元町2丁目16-12 物件から徒歩 13
営業時間:10:00~20:00 駐車場:有 概要:武庫元町商店街の中にあります。(2020.07.21時点)

教育施設

「尼崎市常松1丁目 一戸建て 4,680万円」の保育所、幼稚園、小学校、中学校までの距離と高低差、また当社のお客様からいただいた口コミ情報を掲載しています。
武庫北幼稚園

武庫北幼稚園 詳細

尼崎市常松2丁目14-60 物件から徒歩 7

(1件の口コミ)

常松の住宅街の中の、『武庫北小学校』に隣接する幼稚園です。近くに武庫川が流れており、土手すべりや虫とりなど自然と触れ合う教育を大切にしています。南側には常松春日神社があり、緑の多い環境です。 (2020.10.17時点)
武庫北小学校

武庫北小学校 詳細

尼崎市常松2丁目14-1 物件から徒歩 6
『武庫北小学校』は、JR山陽新幹線の少し北側の武庫川河川敷沿いの自然豊かな環境にある小学校です。176号線にもほど近く、道路東側には、「産業技術短期大学」や「常陽中学校」があります。176号線沿道は店舗などが立ち並びますが、学校周辺は田畑なども残り、長閑な雰囲気です。 昭和43年に武庫小学校から分離して創立。校章は6つの「ムコ」の中央に「北小」を図案化したデザイン。子どもたちが手を取り合い、成長・努力する姿をイメージしています。
常陽中学校

常陽中学校 詳細

尼崎市西昆陽1丁目26-26 物件から徒歩 7
『尼崎市立常陽中学校』は、阪急神戸線「武庫之荘」駅からバス乗車約11分、国道171号線沿いの「尼崎市西昆陽1丁目」にある公立の中学校です。昭和57年に開校。教育目標は「個性豊かで責任感の強い自立する力を育成する。健やかな体と豊かな心をもち学ぶ力を育成する。」などです。

物件データ

「尼崎市常松1丁目 一戸建て 4,680万円」の所在、交通、広さなどの物件データ。物件概要ともよばれ、物件のことを理解する基本的な事項について書いています。ご不明な用語などありましたら、お気軽にお問合せください。

所在地
兵庫県尼崎市常松1丁目
交通
阪急今津線「甲東園」駅徒歩23分
→阪急今津線沿線の不動産
→阪急今津線「甲東園」駅の不動産
建物建築年月
2026年4月
構造・階数
木造 2階建
土地面積
114.73㎡
建物面積
91.12㎡
間取り
2SLDK
接道状況
南側幅員約4.1mの道路に接道
セットバック
私道負担面積
駐車場
有(2台)
路地状部分
傾斜地部分
現況
未完成
引渡
相談
設備
建築確認番号
第R07SHC120239号
販売戸数
4区画
総戸数
4区画
用途地域
第1種住居地域
国土法
不要
取引態様
媒介(仲介)
小学校区
武庫北小学校
→武庫北小学校区内の不動産
中学校区
常陽中学校
→常陽中学校区内の不動産
物件番号
865828R
※物件所在地(番地):33(3号地)

※ 図面と現況が異なる場合は、現況優先と致します。
※ 掲載物件は成約済み・売却中止となる場合があります。
※ 成約の際は仲介手数料とこれにかかる消費税が必要です。(当社が売主の物件除く)
※ 写真に写っている、またはパース(絵)や間取り図に描かれている家具や車などは、特にコメントがない場合、物件価格に含まれません。
※ 価格は物件の代金総額を表示しており、消費税が課税される場合は税込価格です(10,000円未満は切り上げ)。
※ コメント内に記載している土砂災害警戒区域は、土砂災害特別警戒区域に指定されている箇所も含んでおります。
※ 洪水浸水想定区域、土砂災害危険箇所、土砂災害警戒区域の指定状況については最新データとは限りません。最新データ・詳細なリスクの程度・範囲などについては各自治体の「ハザードマップ」をご確認下さい。

検索条件が似た物件

Loading...

不動産の購入に関するお問合せ

ウィル不動産販売 塚口営業所

ウィル不動産販売 塚口営業所詳細

フリーダイヤル

0120-070-709
営業時間
10:00~19:00 定休日なし
※年末年始除く
対応エリア
関西・名古屋・東京 詳細 対応エリア 関西(阪神間・北摂・大阪)エリア 神戸市(灘区・東灘区)、大阪市※、芦屋市、西宮市、宝塚市、尼崎市、伊丹市、川西市、猪名川町、豊能町、豊中市、吹田市、箕面市、池田市、摂津市、茨木市、高槻市、島本町 名古屋エリア 名古屋市、尾張旭市、長久手市、日進市、瀬戸市、春日井市、大府市 東京エリア 東京23区※、川崎市※、川口市 ※一部の区を除く
免許番号
国土交通大臣 (5)第6447号
加入団体
公益社団法人首都圏不動産公正取引協議会 
お名前を入力してください。
電話番号を入力してください。
メールアドレスを入力してください。

お問合せ内容を選択してください。必須

任意
ご質問・ご相談内容を入力してください。

スマホやパソコンのビデオ通話機能を使って住まいに関する様々なご相談ができます。

任意

具体的なご相談内容を選択してください。必須

ご入力いただいた個人情報は、このサービスを提供する株式会社ウィルの個人情報保護方針に則って厳重に管理します。 お問合せ内容を、個人情報の取り扱いに関する基本姿勢に同意の上、送信してください。

尼崎市の戸建の売却をお考えの方へ

下記ページにて、尼崎市の戸建の現在の売却市況や購入希望者数、ライバル物件数、過去の成約データなどをご覧いただけます。
また無料で、価格査定や相場資料の提供を行っています。お気軽にお問合せください。

※上記の売却情報は、2026年02月末時点での値です。毎月、1ヶ月ごとの累計で集計をしているため、現在のリアルタイムでの値とは差異がある場合があります。

関連リンク

近くのエリアから一戸建てを探す
近くの町名から一戸建てを探す
リフォームの事例写真

中古住宅を買ってリフォーム

中古住宅の購入とリフォームをセットで行うと、ライフスタイルや好みに合った住まいを実現できます。

十二十家具イメージ画像

十二十家具オンラインストア

当社が運営しているインテリアショップです。日々の暮らしが豊かになる良質な家具を取り揃えています。

期間報酬制度

家を売るとき、手数料最大半額

家を売るとき、取引成立時期に応じて手数料が最大半額。節約できたコストを売主様に還元します。

平日会員制度

家を買うとき、手数料30%OFF

平日利用の家探しで、手数料が30%割引。営業稼働率を上げて生まれる利益を買主様に還元します。

『検索条件の保存』にはログイン、またはウィルWEB会員の登録が必要です。

ウィルWEB会員の登録

お名前を入力してください。
メールアドレスを入力してください。
電話番号を入力してください。
パスワードは8〜20文字で、また半角英字、数字を最低1文字以上使用してください

※パスワードは半角英数字で8〜20文字。また英字、数字それぞれ1文字以上使用してください。

必須

現在、住まいに関して検討されていることを教えてください。(複数回答可)

任意

ご質問、ご要望などございましたら、ご自由にお書きください。
また、お住まいの購入をご検討の方は、物件の広さなどご希望条件を教えてください。

ご入力いただいた個人情報は、このサービスを提供する株式会社ウィルの個人情報保護方針に則って厳重に管理します。お問合せ内容を、個人情報の取り扱いに関する基本姿勢に同意の上、送信してください。