1名保存

宝塚市ふじガ丘 中古一戸建て

2,280万円
すべての写真(7枚)を⾒る
所在
宝塚市 ふじガ丘
交通
阪急宝塚線「 雲雀丘花屋敷 」駅バス7分 徒歩7分
建物
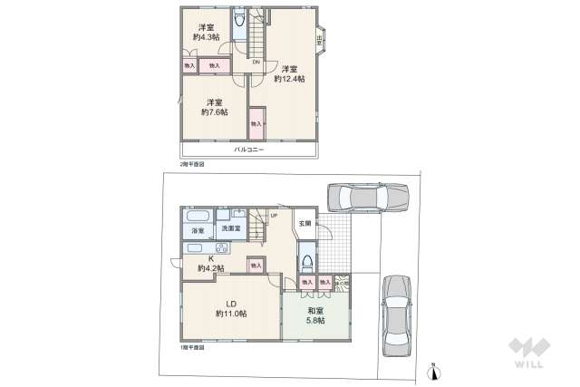
115.24平米 / 4LDK / 1998年3月築
土地
153.8平米 / 向き
学校
長尾台小学校 / 南ひばりガ丘中学校
宝塚市ふじガ丘 中古一戸建ての地図

物件所在地はおおよその位置です。ウィルWEB会員に登録すると正確な場所が表示されます。

敷地面積約46坪、第1種低層住居専用地域内にある軽量鉄骨造2階建ての4LDK ハウスメーカー施工
ポイント
★駅からバス乗車約7分・徒歩7分!
★第1種低層住居専用地域!
★敷地面積約46坪!
★車2台駐車可!(車種による)
★ハウスメーカー施工の注文住宅!
★現在は空き家!
★『長尾台小学校』徒歩15分!
★『平井山荘~最明寺川沿いの山道~』徒歩10分!
チェックポイント ◇『南ひばりガ丘中学校』徒歩45分
◇『KOHYO(コーヨー)川西店』約2.7km

特徴

  • 車2台以上
  • 買物施設10分以内
  • 低層住居地域
  • 中古
  • ハウスメーカー施工

担当者のコメント

この物件は阪急宝塚線「雲雀丘花屋敷駅」からバス乗車約7分・徒歩7分、『宝塚市ふじガ丘』にある中古一戸建てです。
周辺は第一種低層住居専用地域に指定された一戸建てが立ち並ぶ住宅地。周囲を長尾連山の山々に囲まれた自然豊かな住環境。町内に遊具が設置された小さな公園『ふじガ丘公園』があります。北側には『愛宕原ゴルフ倶楽部』、西側には縦走路の宝塚ロックガーデン、南側には最明寺滝があります。また最明寺川沿いの山道を通って、阪急山本駅へアクセスすることもできます。地勢は高台で、標高は約170m。道幅5m前後の道路が多く、街路は整っています。生垣や庭木のある家が多く、町中も緑豊か。高速道路のインターチェンジまでは距離があります。
敷地面積は約46坪。車2台分の駐車スペースがあります(車種による)。建物は1998年3月築の軽量鉄骨造2階建て。ハウスメーカー施工。間取りは延床面積115.24平米の4LDK。付帯設備は食器洗浄機など…。現況は空き家です。
教育施設は『生成幼稚園』徒歩25分、『長尾台小学校』徒歩15分、『南ひばりガ丘中学校』徒歩45分。買物施設は『KOHYO(コーヨー) 川西店』・『ラソラ川西(旧モザイクボックス)』・『アステ川西』約2.7kmなど…。その他『平井山荘~最明寺川沿いの山道~』が徒歩10分、『北雲雀きずきの森』が徒歩16分の距離にあります。

担当者

吉田 光輝 吉田 光輝(よしだ こうき) 宅地建物取引士

不動産用語

軽量鉄骨造
軽量鉄骨造は、厚さ6mm以下の軽い鉄骨を使った工法で、ハウスメーカー(積水ハウス、ダイワハウス、ヘーベルハウスなど)の家によく見られます。一般的な木造建築の工法である在来工法と同じく、柱で建物を支えるラーメン構造で、柱と柱の間には、筋交いが入っています。メリットは比較的耐火性にすぐれ、木造に比べ白アリなどによる柱の腐食が少ないこと。デメリットは筋交いが多い為、リフォームの際、プラン変更の邪魔になることです。
第一種低層住居専用地域
第一種低層住居専用地域とは、都市計画における用途地域の1つで、低層住宅の良好な住環境を守るための地域のことです。13種類の用途地域の中で最も厳しい規制が設けられており、高さがある建物や騒音を出すような用途の建物を建築することができません。軒の高さが7メートルを超えるか、3階以上(地階を除く)の建築物で、条例によって指定された区域に建つ建物は日影規制の適用対象となります。日影規制とは、建築物からできる影が周辺の土地に一定時間かからないようにすることにより、日照環境を確保するための制限のことです。

設備

  • 食器洗浄機
  • 浄水器
  • IHクッキングヒーター
  • ディスポーザー
  • TV付き浴室
  • 浴室乾燥機
  • ミストサウナ
  • 追焚機能
  • シャンプードレッサー
  • 洗浄便座
  • ペアガラス
  • オール電化
  • 太陽光発電
  • 24時間換気システム
  • 床暖房
  • 電動シャッター雨戸
  • スロップシンク
  • TV付きインターホン
  • オートロック
  • 宅配ボックス
  • ロフト

ヒストリー

  • 1998.03.01

    新築

  • 2025.12.10

    本サイトに公開

  • 現在

  • 2026.02.16

    情報更新予定

※本サイトに公開:この物件がこのサイトに掲載された日です。※価格変更:この物件の価格がこのサイトで変更された日です。※情報更新予定:この物件の販売の継続、価格変更の有無など確認が行われ、情報が更新される予定の日です。

お問合せ

物件番号861362R

ウィル不動産販売 川西営業所 詳細

フリーダイヤル0120-464-777
住所
川西市栄町12-7
営業時間
10:00~19:00 定休日なし 
※年末年始除く

お名前・メールアドレスを入力してください。

お名前を入力してください。
電話番号を入力してください。
メールアドレスを入力してください。

お問合せ内容を選択してください。必須

ご質問・ご相談内容を入力してください。
任意
ご質問・ご相談内容を入力してください。
請求する資料を入力してください。
ご入力いただいた個人情報は、このサービスを提供する株式会社ウィルの個人情報保護方針に則って厳重に管理します。 お問合せ内容を、個人情報の取り扱いに関する基本姿勢に同意の上、送信してください。

交通

「宝塚市ふじガ丘 一戸建て 2,280万円」の最寄り駅、駅との高低差、ターミナル駅から終電時刻、バス停の時刻表など交通に関する情報をご案内しています。また行き先の駅はカスタマイズできます。

最寄り駅

阪急宝塚線「雲雀丘花屋敷」駅の外観

阪急宝塚線「雲雀丘花屋敷」駅

宝塚市雲雀丘1丁目1-10物件から 徒歩7分・バス7分
停車する電車
急行、準急、普通
※準急は梅田方面平日6~8時台のみ

駅までの道のり(高低差)

駅・空港へのアクセス

この物件兵庫県宝塚市ふじガ丘
7
バス停
7
阪急「雲雀丘花屋敷」駅物件から約 14
25
最終: 24時25分
物件から約 39
JR「新大阪」駅物件から 22km 関西国際空港物件から 68km 大阪国際(伊丹)空港物件から 10km 神戸空港物件から 39km

周辺環境

「宝塚市ふじガ丘 一戸建て 2,280万円」の住環境、近くにあるとうれしいとっておきのスポット(注目スポット)、街の住心地の口コミ(街の人の声)、当社の契約者からご回答いただいたアンケートなどをご紹介しています。

周辺環境 周辺環境 周辺環境 周辺環境

「雲雀丘花屋敷駅エリア」は、大阪梅田から北西に位置し、電車や車で約30分でアクセスできる街です。西摂平野と長尾山系が重なる場所にあり、住宅地は南斜面の丘陵地となっています。このエリアは大正時代、阿部元太郎によって初めて開発され、景観に配慮した設計が特徴です。たとえば、地形を活かしたカーブの多い街路、道路と住宅の敷地を隔てる犬走り、住宅周囲の生垣や植栽など。それらは長年にわたり住民たちによって維持されています。大正時代に建築された洋館が点在する街並みにはハイカラな雰囲気がありつつ、北側の山手エリアには自然公園や滝などの自然も豊富です。駅前の一部に中高層住宅が許可された地域がありますが、大部分は第一種低層住居専用地域で、一戸建てが多く見られるエリアです。 詳細

注目スポット

注目スポット
平井山荘~最明寺川沿いの山道~ 詳細
所在:宝塚市平井山荘物件から徒歩 10

最明寺川沿いに続く、散歩道です。阪急「山本」駅からスタート地点まで約10分、そこから約1時間で『満願寺町』まで至るコースです。川のせせらぎを聞きながら、ゆっくりと散歩出来ます。道中には「宝教寺」などお寺が数々あり、少し足を延ばせば突き当たりに三方を崖に囲まれた「最明寺滝」もあります。(2020.07.13時点)

注目スポット
北雲雀きずきの森 詳細
所在:川西市南野坂1丁目物件から徒歩 16

(1件の口コミ)

北雲雀きずきの森は、阪急宝塚線「川西能勢口」駅から北西方向へ徒歩約20分ほどの場所にある森。宝塚市が平成18年に取得し、平成22年にオープンしています。雲雀丘荘園、松ガ丘、南野坂などの住宅地からアクセス可能。毎日のお散歩コースにもぴったりの場所です。(北側の入り口前にはコインパーキング有り)森の中には、里山の自然が残り、コナラやアカマツの木が多く、サクラ、ツツジなどもあります。こもれびの道、ふれあいの道、はぐぐみの道があり、またみはらし広場からは大阪平野を一望できます。(2020.07.30時点)

街の人の声

この街ボイス画像:山雲雀 さん(当社のご契約者)

山雲雀 さん(当社のご契約者)

宝塚市雲雀丘3丁目在住

男性/81歳/2人家族

静かな高級住宅街です。 自慢できること 交通のアクセスが良く便利。空港も近い。周りは静か。高級住宅街。始発があるので必ず座れる。雲雀丘学園があり、そこへ通学するには大変便利。終電が遅いので、梅田で夜遅くなっても帰れる。 気になること 坂が多い。大型スーパーは遠い。公立の小中学校は少し遠い。

この街ボイス画像:みほ さん(当社のご契約者)

みほ さん(当社のご契約者)

宝塚市花屋敷荘園1丁目在住

女性/75歳/2人家族

ご近所さんはよい方ばかりです。 自慢できること ご近所にお住まいの人達のコミュニケーション能力が高いく、住みやすい。 気になること 坂道が多く、高齢化してくると、歩いての行動範囲が限られてしまう。

この街ボイス画像:かなぴ さん(当社のご契約者)

かなぴ さん(当社のご契約者)

宝塚市雲雀丘1丁目在住

女性/34歳/4人家族(うち子ども2人)

坂は多いが夜景が素晴らしい! 自慢できること 住んでいるところは、緑が多く、街並みがゆったりしている。隣に公園があり、小さい子がいるファミリーには便利。すぐ近くにクリニックもあるので、なにかあっても安心。坂が多いがそのぶん眺望が素晴らしく、夜は特に感動する。 気になること 坂が多いため、体調がすぐれない時や、怪我した時は大変かなと思う。車があれば問題ないが、いつまで住めるかは不安。消防署がちかくにあるためサイレンの音が気になる。地震の際は高い場所にあるため心配

買物施設

「宝塚市ふじガ丘 一戸建て 2,280万円」最寄りのスーパーマーケットの営業時間、駐車場の有無、概要、物件との距離・高低差をご紹介しています。
KOHYO(コーヨー) 川西店

KOHYO(コーヨー) 川西店

川西市小花1-1-10 物件から 約2.7km
営業時間:8:00~23:00 駐車場:有 概要:阪急宝塚線の高架下にあります。 (2020.07.23時点)
ラソラ川西(旧モザイクボックス)

ラソラ川西(旧モザイクボックス)

川西市栄町11番1号 物件から 約2.7km
営業時間:10:00~20:00 概要:阪急「川西能勢口」駅前にある専門店街。「紀伊國屋書店」、「ダイコクドラッグ」などの専門店の他、和洋中の飲食店も入っています。 (2020.07.24時点)

教育施設

「宝塚市ふじガ丘 一戸建て 2,280万円」の保育所、幼稚園、小学校、中学校までの距離と高低差、また当社のお客様からいただいた口コミ情報を掲載しています。
生成幼稚園

生成幼稚園 詳細

宝塚市雲雀丘山手1丁目16-17 物件から徒歩 25

(2件の口コミ)

『生成幼稚園』は、阪急宝塚本線「雲雀丘花屋敷駅」から北東方向へ徒歩13分、「雲雀丘山手1丁目」にある私立の幼稚園です。敷地西側は緑が豊かな環境となっており、北西方向へ約350m歩いたところに『宝塚市立長尾台小学校』があります。1952年に開園。運営法人は学校法人精常学園です。「協調性や時には我慢をする心を養い、過程にある楽しさや目標を達成したときの喜びを経験する」を教育目標としています。
長尾台小学校

長尾台小学校 詳細

宝塚市長尾台1丁目1-1 物件から徒歩 15
『長尾台小学校』は、阪急宝塚線「雲雀丘花屋敷」駅からバス乗車6分徒歩1分、「長尾台1丁目」にある小学校です。標高173mの高台にあり、周辺は山に囲まれ緑が多く、自然がいっぱいです。創設は昭和52年。教育目標は「ひとりひとりが輝く長尾台の子」です。
南ひばりガ丘中学校

南ひばりガ丘中学校 詳細

宝塚市南ひばりガ丘2丁目7-1 物件から徒歩 45

(1件の口コミ)

『南ひばりガ丘中学校』は、阪急「山本」駅から南東へ徒歩13分、『南ひばりガ丘2丁目』の静かな住宅地にある中学校です。すぐ南側を最明寺川が流れています。創設は昭和51年です。 (2020.07.20時点)

物件データ

「宝塚市ふじガ丘 一戸建て 2,280万円」の所在、交通、広さなどの物件データ。物件概要ともよばれ、物件のことを理解する基本的な事項について書いています。ご不明な用語などありましたら、お気軽にお問合せください。

所在地
兵庫県宝塚市ふじガ丘
交通
阪急宝塚線「雲雀丘花屋敷」駅バス7分 徒歩7分
→阪急宝塚線沿線の不動産
→阪急宝塚線「雲雀丘花屋敷」駅の不動産
建物建築年月
1998年3月
構造・階数
軽量鉄骨造 2階建
土地面積
153.8㎡
建物面積
115.24㎡
間取り
4LDK
接道状況
セットバック
私道負担面積
駐車場
有(2台)
路地状部分
傾斜地部分
現況
空家
引渡
相談
設備
用途地域
第1種低層住居専用地域
国土法
不要
取引態様
媒介(仲介)
小学校区
長尾台小学校
→長尾台小学校区内の不動産
中学校区
南ひばりガ丘中学校
→南ひばりガ丘中学校区内の不動産
物件番号
861362R
※航空法、高度地区、

※ 図面と現況が異なる場合は、現況優先と致します。
※ 掲載物件は成約済み・売却中止となる場合があります。
※ 成約の際は仲介手数料とこれにかかる消費税が必要です。(当社が売主の物件除く)
※ 写真に写っている、またはパース(絵)や間取り図に描かれている家具や車などは、特にコメントがない場合、物件価格に含まれません。
※ 価格は物件の代金総額を表示しており、消費税が課税される場合は税込価格です(1000円未満は切り上げ)。
※ コメント内に記載している土砂災害警戒区域は、土砂災害特別警戒区域に指定されている箇所も含んでおります。
※ 洪水浸水想定区域、土砂災害危険箇所、土砂災害警戒区域の指定状況については最新データとは限りません。最新データ・詳細なリスクの程度・範囲などについては各自治体の「ハザードマップ」をご確認下さい。

検索条件が似た物件

Loading...

不動産の購入に関するお問合せ

ウィル不動産販売 川西営業所

ウィル不動産販売 川西営業所詳細

フリーダイヤル

0120-464-777
営業時間
10:00~19:00 定休日なし
※年末年始除く
対応エリア
関西・名古屋・東京 詳細 対応エリア 関西(阪神間・北摂・大阪)エリア 神戸市(灘区・東灘区)、大阪市※、芦屋市、西宮市、宝塚市、尼崎市、伊丹市、川西市、猪名川町、豊能町、豊中市、吹田市、箕面市、池田市、摂津市、茨木市、高槻市、島本町 名古屋エリア 名古屋市、尾張旭市、長久手市、日進市、瀬戸市、春日井市、大府市 東京エリア 東京23区※、川崎市※、川口市 ※一部の区を除く
免許番号
国土交通大臣 (5)第6447号
加入団体
公益社団法人首都圏不動産公正取引協議会 
お名前を入力してください。
電話番号を入力してください。
メールアドレスを入力してください。

お問合せ内容を選択してください。必須

任意
ご質問・ご相談内容を入力してください。

スマホやパソコンのビデオ通話機能を使って住まいに関する様々なご相談ができます。

任意

具体的なご相談内容を選択してください。必須

ご入力いただいた個人情報は、このサービスを提供する株式会社ウィルの個人情報保護方針に則って厳重に管理します。 お問合せ内容を、個人情報の取り扱いに関する基本姿勢に同意の上、送信してください。

宝塚市の戸建の売却をお考えの方へ

下記ページにて、宝塚市の戸建の現在の売却市況や購入希望者数、ライバル物件数、過去の成約データなどをご覧いただけます。
また無料で、価格査定や相場資料の提供を行っています。お気軽にお問合せください。

※上記の売却情報は、2025年12月末時点での値です。毎月、1ヶ月ごとの累計で集計をしているため、現在のリアルタイムでの値とは差異がある場合があります。

関連リンク

近くのエリアから一戸建てを探す
近くの町名から一戸建てを探す
リフォームの事例写真

中古住宅を買ってリフォーム

中古住宅の購入とリフォームをセットで行うと、ライフスタイルや好みに合った住まいを実現できます。

十二十家具イメージ画像

十二十家具オンラインストア

当社が運営しているインテリアショップです。日々の暮らしが豊かになる良質な家具を取り揃えています。

期間報酬制度

家を売るとき、手数料最大半額

家を売るとき、取引成立時期に応じて手数料が最大半額。節約できたコストを売主様に還元します。

平日会員制度

家を買うとき、手数料30%OFF

平日利用の家探しで、手数料が30%割引。営業稼働率を上げて生まれる利益を買主様に還元します。

『検索条件の保存』にはログイン、またはウィルWEB会員の登録が必要です。

ウィルWEB会員の登録

お名前を入力してください。
メールアドレスを入力してください。
電話番号を入力してください。
パスワードは8〜20文字で、また半角英字、数字を最低1文字以上使用してください

※パスワードは半角英数字で8〜20文字。また英字、数字それぞれ1文字以上使用してください。

必須

現在、住まいに関して検討されていることを教えてください。(複数回答可)

任意

ご質問、ご要望などございましたら、ご自由にお書きください。
また、お住まいの購入をご検討の方は、物件の広さなどご希望条件を教えてください。

ご入力いただいた個人情報は、このサービスを提供する株式会社ウィルの個人情報保護方針に則って厳重に管理します。お問合せ内容を、個人情報の取り扱いに関する基本姿勢に同意の上、送信してください。