新築

大田区南久が原2丁目 新築一戸建て

7,280万円
すべての写真(26枚)を⾒る
所在
大田区 南久が原2丁目
交通
東急池上線「 久が原 」駅徒歩5分
建物
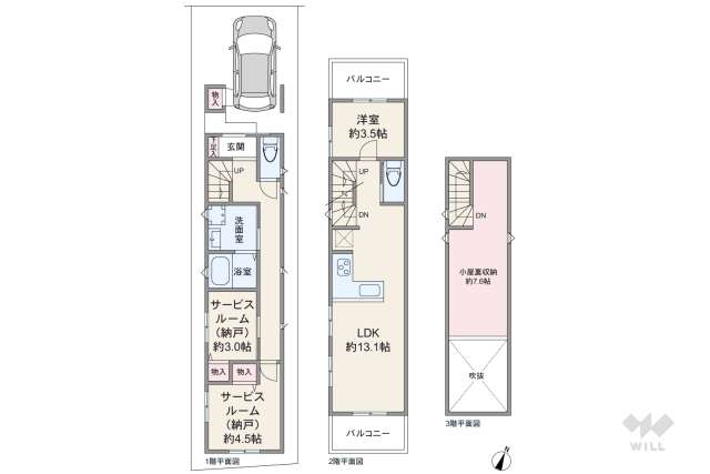
64.57平米 / 1LDK+2S / 2026年2月築
土地
64.6平米 / 北向き
学校
東調布第三小学校 / 大森第七中学校
大田区南久が原2丁目 新築一戸建ての地図

物件所在地はおおよその位置です。ウィルWEB会員に登録すると正確な場所が表示されます。

ビルトインガレージ付きの新築戸建、吹抜け付きの2階リビングプラン 2階は風通しの良い両面バルコニー
ポイント
★東急池上線「久が原駅」徒歩5分!
★東急多摩川線「鵜の木駅」徒歩9分!
★東急多摩川線「下丸子駅」徒歩10分!
★第1種低層住居専用地域!
★駅からの道のりは平坦!
★ビルトインガレージ!
★吹抜けで開放感のある2階リビングプラン!
★小屋裏収納あり!
★2階は両面バルコニーで風通し良好!
★『東調布第三小学校』徒歩1分!
★『大森第七中学校』徒歩5分!
★『サミットストア久が原店』徒歩5分!
★『大田区民プラザ』徒歩9分!

特徴

  • 新築
  • 小学校10分以内
  • 買物施設10分以内
  • 低層住居地域

担当者のコメント

この物件は東急池上線「久が原駅」から南へ徒歩5分、『大田区南久が原2丁目』にある新築一戸建てです。複数駅が利用可能で、東急多摩川線「鵜の木駅」からは徒歩9分、東急多摩川線「下丸子駅」からは徒歩10分の距離にあります。
周辺は第一種中高層住居専用地域、第一種低層住居専用地域、近隣商業地域、準住居地域に指定された一部店舗や事務所、主に一戸建てと集合住宅が立ち並ぶ住宅地です。西側を都道311号環状八号線(環八通り)が走っています。近くにクロマツ、アカマツが茂る『鵜の木松山公園』があり、鎌倉街道沿いには庚申塔が建っています。地勢は丘陵地(久が原台と呼ばれる台地の南端)にあり、標高は約15m。道幅5m前後の道路が多く、街路はやや入り組んでいます。生け垣や庭木のある家が点在し、町中の緑はやや多め。高速道路のインターチェンジまでは距離があります。東急池上線「久が原駅」との高低差は約2m。洪水浸水想定区域、土砂災害危険箇所、土砂災害警戒区域の指定はありません。
敷地面積は約19坪。北付け道路。車1台分の駐車スペースがあります(車種による)。間取りは延床面積64.57平米の1LDK+2S。付帯設備は食器洗浄機、浄水器、浴室乾燥機、TV付きインターホンなど…。現況は完成済みのため、室内の見学ができます。
教育施設は『アスクみなみ久が原保育園』・『鵜の木いまいずみ保育園』徒歩4分、『鵜ノ木幼稚園』徒歩4分、『東調布第三小学校』徒歩1分、『大森第七中学校』徒歩5分。買物施設は『サミットストア 久が原店』徒歩5分、『まいばすけっと 久が原3丁目店』徒歩8分、『マルエツ 鵜の木店』徒歩9分など…。その他『鵜の木特別出張所』が徒歩5分、『千鳥児童館』が徒歩8分、『大田区民プラザ』が徒歩9分の距離にあります。

担当者

谷原 杏奈 谷原 杏奈(たにはら あんな) 宅地建物取引士

不動産用語

第一種低層住居専用地域
第一種低層住居専用地域とは、都市計画における用途地域の1つで、低層住宅の良好な住環境を守るための地域のことです。13種類の用途地域の中で最も厳しい規制が設けられており、高さがある建物や騒音を出すような用途の建物を建築することができません。軒の高さが7メートルを超えるか、3階以上(地階を除く)の建築物で、条例によって指定された区域に建つ建物は日影規制の適用対象となります。日影規制とは、建築物からできる影が周辺の土地に一定時間かからないようにすることにより、日照環境を確保するための制限のことです。
第一種中高層住居専用地域
第一種中高層住居専用地域とは、都市計画における用途地域の1つで、中高層住宅の良好な住環境を守るための地域のことです。4階建て以上のマンションをはじめ、スーパーなどの床面積500平方メートルまでの店舗や病院、大学などを建てることができます。スーパーなどの日常生活に必要な施設が揃っていることも多く、生活利便にもすぐれています。
準住居地域
準住居地域とは、都市計画法による用途地域の一つで、沿道において自動車関連施設などと住居が調和した環境を保護するための地域のことです。準住居地域では客席が200平方メートル未満の劇場や映画館、演芸場、観覧場などを建設することができます。第二種住居地域とは異なり、150平方メートルまでの自動車修理工場や自動車ディーラー店などを建てることも可能です。また、住居専用地域ではないため、日当たりや日影などの条件は比較的緩やかです。
近隣商業地域
近隣商業地域とは、都市計画法による用途地域の一つで、近隣住民が日用品の買物をする店舗などのために定められた地域のことです。大規模商業施設やショッピングモールだけでなく、小規模の工場を建てることもできます。住居専用地域ではないため、日当たりや日影などの制限が比較的緩やかです。商業地域において日影規制が適用されない点に対し、近隣商業地域では高さ10メートルを超える建物については日影規制が適用される点が異なっています。
土砂災害警戒区域
土砂災害警戒区域とは、土砂災害防止法に基づいて指定された区域で、「イエローゾーン」とも呼ばれます。土砂災害の危険があると見込まれる場所を基礎調査し、災害時に住民の生命や身体に危害が及ぶ恐れがあると判断された場合に指定されます。指定されると、「市町村地域防災計画への記載」、「災害時要援護者関連施設での警戒態勢の整備」、「土砂災害ハザードマップによる周知の徹底」などが行われ、災害発生時の警戒・避難態勢が整備されます。
洪水浸水想定区域
洪水浸水想定区域とは、川が氾濫した場合に浸水が想定される区域や、家屋の倒壊・流出をもたらすような堤防決壊に伴う激しい氾濫流・河岸侵食の発生が想定される区域のことです。指定時点の河川の整備状況を勘案し、想定し得る最大規模の降雨や、降雨により河川が氾濫した場合に想定される浸水の状況をシミュレーションしたものです。
→ハザードマップを見る

設備

  • 食器洗浄機
  • 浄水器
  • IHクッキングヒーター
  • ディスポーザー
  • TV付き浴室
  • 浴室乾燥機
  • ミストサウナ
  • 追焚機能
  • シャンプードレッサー
  • 洗浄便座
  • ペアガラス
  • オール電化
  • 太陽光発電
  • 24時間換気システム
  • 床暖房
  • 電動シャッター雨戸
  • スロップシンク
  • TV付きインターホン
  • オートロック
  • 宅配ボックス
  • ロフト

ヒストリー

  • 2025.12.09

    本サイトに公開

  • 2026.02.01

    新築

  • 2026.03.16

    情報更新予定

  • 現在

※本サイトに公開:この物件がこのサイトに掲載された日です。※価格変更:この物件の価格がこのサイトで変更された日です。※情報更新予定:この物件の販売の継続、価格変更の有無など確認が行われ、情報が更新される予定の日です。

お問合せ

物件番号861251R

ウィル不動産販売 自由が丘営業所 詳細

フリーダイヤル0120-805-200
住所
目黒区自由が丘1-14-10
営業時間
10:00~19:00 定休日なし 
※年末年始除く

お名前・メールアドレスを入力してください。

お名前を入力してください。
電話番号を入力してください。
メールアドレスを入力してください。

お問合せ内容を選択してください。必須

ご質問・ご相談内容を入力してください。
任意
ご質問・ご相談内容を入力してください。
請求する資料を入力してください。
ご入力いただいた個人情報は、このサービスを提供する株式会社ウィルの個人情報保護方針に則って厳重に管理します。 お問合せ内容を、個人情報の取り扱いに関する基本姿勢に同意の上、送信してください。

交通

「大田区南久が原2丁目 一戸建て 7,280万円」の最寄り駅、駅との高低差、ターミナル駅から終電時刻、バス停の時刻表など交通に関する情報をご案内しています。また行き先の駅はカスタマイズできます。

最寄り駅

東急池上線「久が原」駅の外観

東急池上線「久が原」駅

東京都大田区南久が原2-6-10物件から 徒歩5分
停車する電車
各停

駅までの道のり(高低差)

駅・空港へのアクセス

この物件東京都大田区南久が原2丁目
5
東急「久が原」駅物件から約 5
38
最終: 24時04分
物件から約 43

周辺環境

「大田区南久が原2丁目 一戸建て 7,280万円」の住環境、近くにあるとうれしいとっておきのスポット(注目スポット)、街の住心地の口コミ(街の人の声)、当社の契約者からご回答いただいたアンケートなどをご紹介しています。

注目スポット

注目スポット
大田区民プラザ 詳細
所在:東京都大田区下丸子3丁目1-3物件から徒歩 9

『大田区民プラザ』は、東急多摩川線「下丸子駅」から北東方向へ歩いてすぐ、「下丸子3丁目」にある総合文化施設です。1987年に「文化をはぐくむまちづくりの拠点」として開館しました。公益財団法人大田区文化振興協会が管理運営しており、財団の本部となっています。広い舞台とゆったりした座席の大ホールや床の一部が迫上がって舞台になる小ホール、可動式の展示パネルがある展示室など様々な設備が備わっています。コンサートや演劇、展示会、講習会などで利用されており、多様な文化に触れることができる施設です。

注目スポット
下丸子公園 詳細
所在:東京都大田区下丸子4丁目21-2物件から徒歩 16

『下丸子公園』は、東急多摩川線「下丸子駅」から南西方向へ徒歩6分、「下丸子4丁目」にある公園です。多摩川の旧跡「矢口の渡し」を景観として再現しており、公園北側にある丘から水が流れ、石造りの池に注ぎこんでいます。子供広場にある「わんぱくトリデ」と呼ばれるコンビネーション遊具や大きな砂場などは遊び場として子供たちに人気があります。また、フットサルコートやバスケットボールのハーフコートもあり、大人も子供も一緒になって楽しむことができる公園となっています。

街の人の声

この街ボイス画像:マース さん(当社のご契約者)

マース さん(当社のご契約者)

大田区北千束2丁目在住

女性/62歳/2人家族

素敵な庭の家が多い閑静な住宅街 自慢できること 豊かな庭のあるお家が多く、静かな住宅街です。周辺のお庭は、お花が咲き乱れていたり、電飾で飾られていたりするので、気持ちが豊かになります。電車も駅がいくつか使えるので、その時の目的地にあった駅から出発することが出来て便利です。 気になること 駅前からもう住宅街となり、日々の買い物に少し困ります。某スーパーはありますが、満足できる材料を買いに行こうと思うと、少し歩いて行かなければいけません。そこが便利になると嬉しいです。駅に行くまで踏切があり、待っている間に電車が行ってしまうと悔しい気持ちになるので、そこが解消されると良いと思います。

この街ボイス画像:TY さん(当社のご契約者)

TY さん(当社のご契約者)

大田区東雪谷2丁目在住

女性/50歳/1人家族

便利かつ、都会とは思えないほど静かな町。 自慢できること 交通の便が良く、商店街にスーパー、コンビニ、郵便局などが揃っているので大変便利。また近くに神社や公園があり、環境もとても良い。都会とは思えない程静かで、夜も安心して歩ける。落ちついて生活出来る町だと思う。 気になること 飲食店はあるが、それ程多くない。おしゃれなカフェや飲食店があれば嬉しい。また、惣菜屋やお弁当屋が少ないので、もっと増えると嬉しい。商店街はあるが高齢化が進んでいる印象。もっと活気があればもっと魅力的な町になると思う。

この街ボイス画像:K さん(当社のご契約者)

K さん(当社のご契約者)

大田区羽田6丁目在住

女性/49歳/2人家族

品川・横浜方面に乗換なしでアクセス可 自慢できること 最寄り駅の天空橋駅は、京急と東京モノレールの2路線が利用でき、品川方面、横浜方面とも乗換なしで行くことができ大変便利です。羽田空港が近くにあり、遊びに行ったり間近に飛行機が見られます。多摩川の河口ということもあり、景色もよく、また野鳥も多く楽しい場所です。 気になること 近隣の羽田空港では、南風時の15時~19時の間の実質3時間程度、住宅地寄りの滑走路から飛行機が離陸することがあるため、窓を開けていると音が気になる方がいるかもしれません(私は楽しいと感じるのですが)

買物施設

「大田区南久が原2丁目 一戸建て 7,280万円」最寄りのスーパーマーケットの営業時間、駐車場の有無、概要、物件との距離・高低差をご紹介しています。
サミットストア 久が原店

サミットストア 久が原店

東京都大田区南久が原2-1-1 物件から徒歩 5
営業時間:9:00~24:00 駐車場:有
まいばすけっと 久が原3丁目店

まいばすけっと 久が原3丁目店

東京都大田区久が原3-30-10 物件から徒歩 8
営業時間:7:00~24:00

教育施設

「大田区南久が原2丁目 一戸建て 7,280万円」の保育所、幼稚園、小学校、中学校までの距離と高低差、また当社のお客様からいただいた口コミ情報を掲載しています。
鵜ノ木幼稚園

鵜ノ木幼稚園 詳細

東京都大田区南久が原2丁目19番3 物件から徒歩 4
『鵜ノ木幼稚園』は、東急池上線「久が原駅」から南西方向へ徒歩5分、「南久が原2丁目」にある私立の幼稚園です。敷地西側は環八通りに面し、東方向へ約120m歩いたところに『大田区立東調布第三小学校』があります。1934年に開園。運営法人は学校法人雀村学園です。「のびのび明るい、元気な子に育てる」を教育目標としています。
東調布第三小学校

東調布第三小学校 詳細

東京都大田区南久が原2丁目17番1 物件から徒歩 1
『東調布第三小学校』は、東急池上線「久が原駅」から南方向へ徒歩4分、「南久が原2丁目」にある公立の小学校です。西方向へ約150m歩いたところを環八通りが走り、南方向へ約250m歩いたところに『昭和のくらし博物館』があります。1927年に『東京府荏原郡調布尋常高等小学校第二分教場』として開校しました。著名な卒業生はミュージシャンのFukaseさんです。「思いや考えを伝え合ってよく考える子に育てる」を教育目標としています。
大森第七中学校

大森第七中学校 詳細

東京都大田区南久が原1丁目3番1 物件から徒歩 5
『大森第七中学校』は、東急池上線「久が原駅」から南東方向へ徒歩7分、「南久が原1丁目」にある公立の中学校です。周辺は一戸建てや集合住宅に囲まれた住宅地で、西方向へ約330m歩いたところに『大田区立東調布第三小学校』があります。1947年に開校しました。著名な卒業生は漫画家の村田雄介さんです。「自らよく考え、粘り強くやりぬく人に育てる」を教育目標としています。

物件データ

「大田区南久が原2丁目 一戸建て 7,280万円」の所在、交通、広さなどの物件データ。物件概要ともよばれ、物件のことを理解する基本的な事項について書いています。ご不明な用語などありましたら、お気軽にお問合せください。

所在地
東京都大田区南久が原2丁目
交通
東急池上線「久が原」駅徒歩5分
→東急池上線沿線の不動産
→東急池上線「久が原」駅の不動産
東急多摩川線「鵜の木」駅徒歩9分
東急多摩川線「下丸子」駅徒歩10分
東急池上線「千鳥町」駅徒歩11分
建物建築年月
2026年2月
構造・階数
木造 2階建
土地面積
64.6㎡
建物面積
64.57㎡
間取り
1LDK+2S
接道状況
北側幅員約6mの公道に約3.9m接道
セットバック
私道負担面積
駐車場
有(1台)
路地状部分
傾斜地部分
現況
完成済
引渡
相談
設備
上下水道/都市ガス/電気
建築確認番号
第2024SBC-確02202Y号
販売戸数
1区画
総戸数
1区画
用途地域
第1種低層住居専用地域
国土法
不要
取引態様
媒介(仲介)
小学校区
東調布第三小学校
→東調布第三小学校区内の不動産
中学校区
大森第七中学校
→大森第七中学校区内の不動産
物件番号
861251R

※ 図面と現況が異なる場合は、現況優先と致します。
※ 掲載物件は成約済み・売却中止となる場合があります。
※ 成約の際は仲介手数料とこれにかかる消費税が必要です。(当社が売主の物件除く)
※ 写真に写っている、またはパース(絵)や間取り図に描かれている家具や車などは、特にコメントがない場合、物件価格に含まれません。
※ 価格は物件の代金総額を表示しており、消費税が課税される場合は税込価格です(10,000円未満は切り上げ)。
※ コメント内に記載している土砂災害警戒区域は、土砂災害特別警戒区域に指定されている箇所も含んでおります。
※ 洪水浸水想定区域、土砂災害危険箇所、土砂災害警戒区域の指定状況については最新データとは限りません。最新データ・詳細なリスクの程度・範囲などについては各自治体の「ハザードマップ」をご確認下さい。

検索条件が似た物件

Loading...

不動産の購入に関するお問合せ

ウィル不動産販売 自由が丘営業所

ウィル不動産販売 自由が丘営業所詳細

フリーダイヤル

0120-805-200
営業時間
10:00~19:00 定休日なし
※年末年始除く
対応エリア
関西・名古屋・東京 詳細 対応エリア 関西(阪神間・北摂・大阪)エリア 神戸市(灘区・東灘区)、大阪市※、芦屋市、西宮市、宝塚市、尼崎市、伊丹市、川西市、猪名川町、豊能町、豊中市、吹田市、箕面市、池田市、摂津市、茨木市、高槻市、島本町 名古屋エリア 名古屋市、尾張旭市、長久手市、日進市、瀬戸市、春日井市、大府市 東京エリア 東京23区※、川崎市※、川口市 ※一部の区を除く
免許番号
国土交通大臣 (5)第6447号
加入団体
公益社団法人首都圏不動産公正取引協議会 
お名前を入力してください。
電話番号を入力してください。
メールアドレスを入力してください。

お問合せ内容を選択してください。必須

任意
ご質問・ご相談内容を入力してください。

スマホやパソコンのビデオ通話機能を使って住まいに関する様々なご相談ができます。

任意

具体的なご相談内容を選択してください。必須

ご入力いただいた個人情報は、このサービスを提供する株式会社ウィルの個人情報保護方針に則って厳重に管理します。 お問合せ内容を、個人情報の取り扱いに関する基本姿勢に同意の上、送信してください。

関連リンク

近くのエリアから一戸建てを探す
近くの町名から一戸建てを探す

購入:住まいをさがす

住まいをさがす(東京)TOP

特集

平日の家探しで仲介手数料30%OFF 新着物件お知らせメール 相場データ提供サービス 買替えシミュレーション 買替え成功のポイント 不動産相場価格推定システム 購入時・購入後のサポート 不動産用語
購入に関する問合せ
リフォームの事例写真

中古住宅を買ってリフォーム

中古住宅の購入とリフォームをセットで行うと、ライフスタイルや好みに合った住まいを実現できます。

十二十家具イメージ画像

十二十家具オンラインストア

当社が運営しているインテリアショップです。日々の暮らしが豊かになる良質な家具を取り揃えています。

期間報酬制度

家を売るとき、手数料最大半額

家を売るとき、取引成立時期に応じて手数料が最大半額。節約できたコストを売主様に還元します。

平日会員制度

家を買うとき、手数料30%OFF

平日利用の家探しで、手数料が30%割引。営業稼働率を上げて生まれる利益を買主様に還元します。

『検索条件の保存』にはログイン、またはウィルWEB会員の登録が必要です。

ウィルWEB会員の登録

お名前を入力してください。
メールアドレスを入力してください。
電話番号を入力してください。
パスワードは8〜20文字で、また半角英字、数字を最低1文字以上使用してください

※パスワードは半角英数字で8〜20文字。また英字、数字それぞれ1文字以上使用してください。

必須

現在、住まいに関して検討されていることを教えてください。(複数回答可)

任意

ご質問、ご要望などございましたら、ご自由にお書きください。
また、お住まいの購入をご検討の方は、物件の広さなどご希望条件を教えてください。

ご入力いただいた個人情報は、このサービスを提供する株式会社ウィルの個人情報保護方針に則って厳重に管理します。お問合せ内容を、個人情報の取り扱いに関する基本姿勢に同意の上、送信してください。