新築

大田区東馬込2丁目 新築一戸建て(2号地)

7,480万円
所在
大田区 東馬込2丁目
交通
都営浅草線「 馬込 」駅徒歩7分
建物
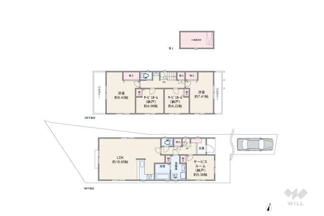
110.13平米 / 2LDK+3S / 2026年7月築
土地
179.29平米 / 向き
学校
馬込小学校 / 馬込東中学校
大田区東馬込2丁目 新築一戸建ての地図

物件所在地はおおよその位置です。ウィルWEB会員に登録すると正確な場所が表示されます。

敷地面積約54坪、全3区画の分譲地に建つ木造2階建ての新築戸建 『ライフ東馬込店』徒歩3分
ポイント
★都営浅草線「馬込駅」徒歩7分!
★全3区画の分譲地!
★敷地面積約54坪!
★小屋裏収納付き!
★『馬込小学校』徒歩10分!
★『馬込東中学校』徒歩9分!
★『ライフ東馬込店』徒歩3分!
★『馬込文化センター』徒歩11分!
チェックポイント ◇路地状敷地(不整形地)

特徴

  • 新築
  • 小学校10分以内
  • 買物施設10分以内
  • 2区画以上

担当者のコメント

この物件は都営浅草線「馬込駅」から徒歩7分、『大田区東馬込2丁目』にある新築一戸建てです。
周辺は主に集合住宅と一戸建てが立ち並ぶ住宅地。第1種中高層住居専用地域に指定されています。
敷地面積は約54坪(路地状部分約20.69平米含む)。全3区画の分譲地のうちの1区画。間取りは延床面積110.13平米の2LDK+3S。付帯設備はロフトなど…。現況は建築中です。
教育施設は『おおたみんなの家』・『南馬込第二保育園』徒歩5分、『大田こまどり幼稚園』徒歩8分、『馬込小学校』徒歩10分、『馬込東中学校』徒歩9分。買物施設は『ライフ 東馬込店』徒歩3分、『まいばすけっと 山王銀座店』徒歩6分、『マルエツプチ 馬込駅前店』徒歩7分など…。その他『馬込図書館』が徒歩8分、『馬込特別出張所』と『馬込文化センター』が徒歩11分の距離にあります。

担当者

神鳥 直人 神鳥 直人(かんどり なおと) 宅地建物取引士

不動産用語

路地状部分
路地状部分とは、細長い形状の敷地の一部のことです。道路から奥まった敷地の場合、道路とアクセスするため、また建築確認に必要な条件を満たすため、細長い形状の敷地を設けます。(道路に2m以上接していることが建築確認取得の条件の一つです)奥行きのある一つの土地を複数の区画に分けて分譲する際、この形状の敷地が新たに出来ることが多く、路地状部分の利用方法について隣地との取り決めがある場合もあります。

設備

  • 食器洗浄機
  • 浄水器
  • IHクッキングヒーター
  • ディスポーザー
  • TV付き浴室
  • 浴室乾燥機
  • ミストサウナ
  • 追焚機能
  • シャンプードレッサー
  • 洗浄便座
  • ペアガラス
  • オール電化
  • 太陽光発電
  • 24時間換気システム
  • 床暖房
  • 電動シャッター雨戸
  • スロップシンク
  • TV付きインターホン
  • オートロック
  • 宅配ボックス
  • ロフト

ヒストリー

  • 2025.10.27

    本サイトに公開

  • 現在

  • 2025.11.17

    情報更新予定

  • 2026.07.01

    新築

※本サイトに公開:この物件がこのサイトに掲載された日です。※価格変更:この物件の価格がこのサイトで変更された日です。※情報更新予定:この物件の販売の継続、価格変更の有無など確認が行われ、情報が更新される予定の日です。

お問合せ

物件番号841993R

ウィル不動産販売 自由が丘営業所 詳細

フリーダイヤル0120-805-200
住所
目黒区自由が丘1-14-10
営業時間
10:00~19:00 定休日なし 
※年末年始除く

お名前・メールアドレスを入力してください。

お名前を入力してください。
電話番号を入力してください。
メールアドレスを入力してください。

お問合せ内容を選択してください。必須

ご質問・ご相談内容を入力してください。
任意
ご質問・ご相談内容を入力してください。
請求する資料を入力してください。
ご入力いただいた個人情報は、このサービスを提供する株式会社ウィルの個人情報保護方針に則って厳重に管理します。 お問合せ内容を、個人情報の取り扱いに関する基本姿勢に同意の上、送信してください。

交通

「大田区東馬込2丁目 一戸建て 7,480万円」の最寄り駅、駅との高低差、ターミナル駅から終電時刻、バス停の時刻表など交通に関する情報をご案内しています。また行き先の駅はカスタマイズできます。

最寄り駅

都営浅草線「馬込」駅の外観

都営浅草線「馬込」駅

東京都大田区北馬込2-31-9物件から 徒歩7分
停車する電車
各知恵、快速、特急、アクセス特急、快特

駅までの道のり(高低差)

駅・空港へのアクセス

この物件東京都大田区東馬込2丁目
7
都営地下鉄「馬込」駅物件から約 7
26
最終: 23時59分
物件から約 33

周辺環境

「大田区東馬込2丁目 一戸建て 7,480万円」の住環境、近くにあるとうれしいとっておきのスポット(注目スポット)、街の住心地の口コミ(街の人の声)、当社の契約者からご回答いただいたアンケートなどをご紹介しています。

注目スポット

注目スポット
馬込文化センター 詳細
所在:東京都大田区中馬込3丁目26番3物件から徒歩 11

『馬込文化センター』は、都営浅草線「馬込駅」から南西方向へ徒歩5分、「中馬込3丁目」にあるコミュニティーセンターです。会議、学習などに利用できる集会室をはじめ、和室や調理室、体育室などがあります。また、地域の人と人との出会いと交流、学習成果の発表を目的とした「文化センターまつり」が催されています。まつりの企画、準備はサークルや団体など地域の多くの人々が力を合わせて進められており、多彩な展示や発表、体験コーナーなど楽しい企画が用意されています。

注目スポット
大田区立郷土博物館 詳細
所在:東京都大田区南馬込5丁目11-13物件から徒歩 15

『大田区立郷土博物館』は、都営浅草線「西馬込駅」から北東方向へ徒歩7分、「南馬込5丁目」にある博物館です。1979年に開館しました。2階は「考古学資料と昔の農漁村の風景」と題し、海苔の養殖や麦わらの編み細工などを紹介、3階は馬込文士村と町の近代化とまちの変化を紹介しています。大田区の歴史をより広く深く学ぶことができる博物館として訪れる人々に親しまれています。

注目スポット
馬込区民センター 詳細
所在:東京都大田区南馬込4丁目6番5物件から徒歩 17

『馬込区民センター』は、都営浅草線「西馬込駅」から東方向へ徒歩6分、「南馬込4丁目」にあるコミュニティーセンターです。第一集会室や第二集会室、体育室などがあり、様々なサークルに利用されています。また、歌や踊りのできる広間や将棋・碁のできる静養室、卓球台のある機能訓練室、浴室を備えた「馬込区民センター高齢者施設(ゆうゆうくらぶ馬込)」では、60歳以上の高齢者を対象として趣味・教養・レクリエーションの場を提供しています。

街の人の声

この街ボイス画像:TY さん(当社のご契約者)

TY さん(当社のご契約者)

大田区東雪谷2丁目在住

女性/50歳/1人家族

便利かつ、都会とは思えないほど静かな町。 自慢できること 交通の便が良く、商店街にスーパー、コンビニ、郵便局などが揃っているので大変便利。また近くに神社や公園があり、環境もとても良い。都会とは思えない程静かで、夜も安心して歩ける。落ちついて生活出来る町だと思う。 気になること 飲食店はあるが、それ程多くない。おしゃれなカフェや飲食店があれば嬉しい。また、惣菜屋やお弁当屋が少ないので、もっと増えると嬉しい。商店街はあるが高齢化が進んでいる印象。もっと活気があればもっと魅力的な町になると思う。

この街ボイス画像:K さん(当社のご契約者)

K さん(当社のご契約者)

大田区羽田6丁目在住

女性/49歳/2人家族

品川・横浜方面に乗換なしでアクセス可 自慢できること 最寄り駅の天空橋駅は、京急と東京モノレールの2路線が利用でき、品川方面、横浜方面とも乗換なしで行くことができ大変便利です。羽田空港が近くにあり、遊びに行ったり間近に飛行機が見られます。多摩川の河口ということもあり、景色もよく、また野鳥も多く楽しい場所です。 気になること 近隣の羽田空港では、南風時の15時~19時の間の実質3時間程度、住宅地寄りの滑走路から飛行機が離陸することがあるため、窓を開けていると音が気になる方がいるかもしれません(私は楽しいと感じるのですが)

この街ボイス画像:Ellington さん(当社のご契約者)

Ellington さん(当社のご契約者)

大田区大森北1丁目在住

男性/53歳/1人家族

出張に便利!生活しやすい街です。 自慢できること 京浜東北線の大森駅と京浜急行の大森海岸駅の2駅が使えて通勤に便利です。羽田空港へのアクセスが良く出張が楽になりました。買い物施設や飲食店が多数存在し、映画館や水族館なども近いです。治安も悪くないので非常に生活しやすい町です。 気になること 暮していて不満に感じることは殆どありませんが、海に近いこともあり自然災害に対しては若干の不安は感じます。その点では大森駅周辺でも西側(山王地区)の方が安心かもしれません。私自身は平坦で商業施設が多い東側が気に入っています。

買物施設

「大田区東馬込2丁目 一戸建て 7,480万円」最寄りのスーパーマーケットの営業時間、駐車場の有無、概要、物件との距離・高低差をご紹介しています。
ライフ 東馬込店

ライフ 東馬込店

東京都大田区東馬込2-16-4 物件から徒歩 3
営業時間:9:00~24:00 駐車場:有(49台)
まいばすけっと 山王銀座店

まいばすけっと 山王銀座店

東京都品川区西大井4-25-2 物件から徒歩 6
営業時間:8:00~23:00

教育施設

「大田区東馬込2丁目 一戸建て 7,480万円」の保育所、幼稚園、小学校、中学校までの距離と高低差、また当社のお客様からいただいた口コミ情報を掲載しています。
大田こまどり幼稚園

大田こまどり幼稚園 詳細

東京都大田区北馬込2丁目29番5 物件から徒歩 8
『大田こまどり幼稚園』は、都営浅草線「馬込駅」から西方向へ歩いてすぐ、「北馬込2丁目」にある私立のプライマリースクールです。東方向へ少し歩いたところを国道1号が走り、北東方向へ約390m歩いたところに『大田区立富士見台中学校』があります。1956年に開園。設置者は本多実千子さんです。「リトミックや楽器の活動や行事を通して子どもの主体性を育む」を教育方針としています。
馬込小学校

馬込小学校 詳細

東京都大田区南馬込1丁目34番1 物件から徒歩 10
『馬込小学校』は、都営浅草線「馬込駅」から南方向へ徒歩8分、「南馬込1丁目」にある公立の小学校です。西方向へ約120m歩いたところを国道1号が走り、南東方向へ約270m歩いたところに『萬福寺』があります。1878年に開校しました。著名な卒業生はファミリーマート初代社長の沖正一郎さんです。「心の豊かなこどもに育てる」を教育目標としています。
馬込東中学校

馬込東中学校 詳細

東京都大田区南馬込2丁目26番30 物件から徒歩 9
『馬込東中学校』は、都営浅草線「馬込駅」から南東方向へ徒歩13分、「南馬込2丁目」にある公立の中学校です。東方向へ約150m歩いたところを環七通りが走り、西方向へ約300m歩いたところに『萬福寺』があります。1956年に開校しました。「自ら学び行動する生徒を育てる」を教育目標としています。

物件データ

「大田区東馬込2丁目 一戸建て 7,480万円」の所在、交通、広さなどの物件データ。物件概要ともよばれ、物件のことを理解する基本的な事項について書いています。ご不明な用語などありましたら、お気軽にお問合せください。

所在地
東京都大田区東馬込2丁目
交通
都営浅草線「馬込」駅徒歩7分
→都営浅草線沿線の不動産
→都営浅草線「馬込」駅の不動産
建物建築年月
2026年7月
構造・階数
木造 2階建
土地面積
179.29㎡
建物面積
110.13㎡
間取り
2LDK+3S
接道状況
セットバック
私道負担面積
駐車場
路地状部分
20.69㎡(土地面積に含む)
傾斜地部分
現況
建築中
引渡
相談
設備
電気/上下水道
建築確認番号
第25UDI1T建02355号
販売戸数
3区画
総戸数
3区画
用途地域
第1種中高層住居専用地域
国土法
不要
取引態様
媒介(仲介)
小学校区
馬込小学校
→馬込小学校区内の不動産
中学校区
馬込東中学校
→馬込東中学校区内の不動産
物件番号
841993R
※物件所在地(番地):18(2号地)

※ 図面と現況が異なる場合は、現況優先と致します。
※ 掲載物件は成約済み・売却中止となる場合があります。
※ 成約の際は仲介手数料とこれにかかる消費税が必要です。(当社が売主の物件除く)
※ 写真に写っている、またはパース(絵)や間取り図に描かれている家具や車などは、特にコメントがない場合、物件価格に含まれません。
※ 価格は物件の代金総額を表示しており、消費税が課税される場合は税込価格です(1000円未満は切り上げ)。
※ コメント内に記載している土砂災害警戒区域は、土砂災害特別警戒区域に指定されている箇所も含んでおります。
※ 洪水浸水想定区域、土砂災害危険箇所、土砂災害警戒区域の指定状況については最新データとは限りません。最新データ・詳細なリスクの程度・範囲などについては各自治体の「ハザードマップ」をご確認下さい。

検索条件が似た物件

Loading...

不動産の購入に関するお問合せ

ウィル不動産販売 自由が丘営業所

ウィル不動産販売 自由が丘営業所詳細

フリーダイヤル

0120-805-200
営業時間
10:00~19:00 定休日なし
※年末年始除く
対応エリア
関西・名古屋・東京 詳細 対応エリア 関西(阪神間・北摂・大阪)エリア 神戸市(灘区・東灘区)、大阪市※、芦屋市、西宮市、宝塚市、尼崎市、伊丹市、川西市、猪名川町、豊能町、豊中市、吹田市、箕面市、池田市、摂津市、茨木市、高槻市、島本町 名古屋エリア 名古屋市、尾張旭市、長久手市、日進市、瀬戸市、春日井市、大府市 東京エリア 東京23区※、川崎市※、川口市 ※一部の区を除く
免許番号
国土交通大臣 (5)第6447号
加入団体
公益社団法人首都圏不動産公正取引協議会 
お名前を入力してください。
電話番号を入力してください。
メールアドレスを入力してください。

お問合せ内容を選択してください。必須

任意
ご質問・ご相談内容を入力してください。

スマホやパソコンのビデオ通話機能を使って住まいに関する様々なご相談ができます。

任意

具体的なご相談内容を選択してください。必須

ご入力いただいた個人情報は、このサービスを提供する株式会社ウィルの個人情報保護方針に則って厳重に管理します。 お問合せ内容を、個人情報の取り扱いに関する基本姿勢に同意の上、送信してください。

関連リンク

近くのエリアから一戸建てを探す
近くの町名から一戸建てを探す

購入:住まいをさがす

住まいをさがす(東京)TOP

物件を検索する

住所からさがす 沿線・駅からさがす 学校区からさがす 特徴からさがす

特集

平日の家探しで仲介手数料30%OFF 新着物件お知らせメール 相場データ提供サービス 買替えシミュレーション 買替え成功のポイント 不動産相場価格推定システム 購入時・購入後のサポート 不動産用語
購入に関する問合せ
リフォームの事例写真

中古住宅を買ってリフォーム

中古住宅の購入とリフォームをセットで行うと、ライフスタイルや好みに合った住まいを実現できます。

十二十家具イメージ画像

十二十家具オンラインストア

当社が運営しているインテリアショップです。日々の暮らしが豊かになる良質な家具を取り揃えています。

期間報酬制度

家を売るとき、手数料最大半額

家を売るとき、取引成立時期に応じて手数料が最大半額。節約できたコストを売主様に還元します。

平日会員制度

家を買うとき、手数料30%OFF

平日利用の家探しで、手数料が30%割引。営業稼働率を上げて生まれる利益を買主様に還元します。

『検索条件の保存』にはログイン、またはウィルWEB会員の登録が必要です。

ウィルWEB会員の登録

お名前を入力してください。
メールアドレスを入力してください。
電話番号を入力してください。
パスワードは8〜20文字で、また半角英字、数字を最低1文字以上使用してください

※パスワードは半角英数字で8〜20文字。また英字、数字それぞれ1文字以上使用してください。

必須

現在、住まいに関して検討されていることを教えてください。(複数回答可)

任意

ご質問、ご要望などございましたら、ご自由にお書きください。
また、お住まいの購入をご検討の方は、物件の広さなどご希望条件を教えてください。

ご入力いただいた個人情報は、このサービスを提供する株式会社ウィルの個人情報保護方針に則って厳重に管理します。お問合せ内容を、個人情報の取り扱いに関する基本姿勢に同意の上、送信してください。