リフォーム済

大田区大森南2丁目 中古一戸建て

2,680万円
所在
大田区 大森南2丁目
交通
東京モノレール羽田空港線「 昭和島 」駅徒歩17分
建物
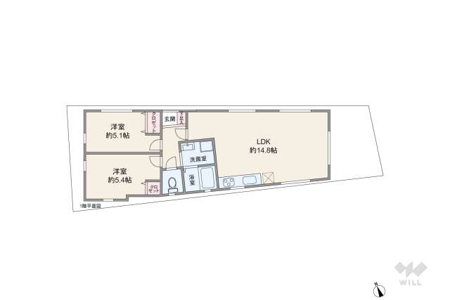
56.61平米 / 2LDK / 1957年12月築
土地
87.13平米 / 向き
学校
大森第四小学校 / 大森第一中学校
大田区大森南2丁目 中古一戸建ての地図

物件所在地はおおよその位置です。ウィルWEB会員に登録すると正確な場所が表示されます。

工業地域内にある木造1階建ての中古戸建 《再建築不可》
ポイント
★東京モノレール羽田空港線「昭和島駅」徒歩17分!
★京急空港線「大鳥居駅」徒歩20分!
★2025年11月にリフォーム実施!
★現在は空き家!
★『大森第四小学校』徒歩4分!
★『大森第一中学校』徒歩10分!
★『まいばすけっと大森南2丁目店』徒歩2分!
★『森ケ崎公園』徒歩9分!
チェックポイント ◇工業地域
◇再建築不可

特徴

  • 小学校10分以内
  • 買物施設10分以内
  • リフォーム済
  • 中古

担当者のコメント

この物件は東京モノレール羽田空港線「昭和島駅」から徒歩17分、『大田区大森南2丁目』にある中古一戸建てです。複数駅が利用可能で、京急空港線「大鳥居駅」からは徒歩20分の距離にあります。
周辺は準工業地域、工業地域、近隣商業地域に指定された店舗や事務所、工場などが混在する住宅地です。南側を呑川が流れており、東へ少し歩くと海沿いに様々なスポーツ施設が併設された『森ケ崎公園』があります。呑川には漁船や釣り船が多く係留されており、また『森ケ崎公園』の手前のエリアは、明治32年に発見され、その後鉱泉旅館が立ち並ぶ臨海行楽地として賑わった場所です(森ヶ崎鉱泉)。地勢は平坦で、標高は約1m。道幅4m前後の一方通行の道路が多く、街路はやや入り組んでいます。町中の緑は少なめ。約1.5kmの距離に首都高速1号の羽田インターチェンジがあります。
敷地面積は約26坪。建物は1957年12月築の木造1階建て。間取りは延床面積56.61平米の2LDK。2025年11月にリフォーム実施。現況は空き家です。再建築不可。詳細についてはお問合せください。【リフォーム内容:キッチン・トイレ・浴室・洗面台・建具・玄関ドア・冊子・照明器具・給湯器・給排水管・ガス管新調、クロス新規、耐震工事、基礎補強工事、断熱工事など。】
教育施設は『森が崎保育園』徒歩5分、『糀谷幼稚園』徒歩19分、『大森第四小学校』徒歩4分、『大森第一中学校』徒歩10分。買物施設は『まいばすけっと 大森南2丁目店』徒歩2分、『ライフ 大森南店』徒歩7分、『マルエツ 大森東店』徒歩8分など…。その他『大森南児童館』が徒歩4分、『東京労災病院』が徒歩5分、『大森南図書館』が徒歩6分の距離にあります。

担当者

谷原 杏奈 谷原 杏奈(たにはら あんな) 宅地建物取引士

不動産用語

準工業地域
準工業地域とは、都市計画法による用途地域の一つで、環境悪化の恐れがない工業の利便を図る地域です。工業地域の一種ではありますが、公害発生などの恐れが大きい工場の建築は禁止されています。また、建ぺい率や容積率、日影規制などの規制は第一種住居地域や第二種住居地域とほぼ同じです。建ぺい率とは敷地面積に対する建築面積の割合のことで、容積率とは建物の延べ面積の敷地面積に対する割合のことを指します。準工業地域に指定された地域では住宅や店舗、小規模の工場などが混在した町並みになることが特徴です。
近隣商業地域
近隣商業地域とは、都市計画法による用途地域の一つで、近隣住民が日用品の買物をする店舗などのために定められた地域のことです。大規模商業施設やショッピングモールだけでなく、小規模の工場を建てることもできます。住居専用地域ではないため、日当たりや日影などの制限が比較的緩やかです。商業地域において日影規制が適用されない点に対し、近隣商業地域では高さ10メートルを超える建物については日影規制が適用される点が異なっています。
工業地域
工業地域とは、都市計画法による用途地域の一つで、主に工業の利便性を考慮して指定された用途地域のことです。住居と工場が混在している地域ですが、工業地域においては住居よりも工場が優先されるため、どのような工場でも建設することが可能となっています。工業地域の周辺は準工業地域であることが多い点や、工場の跡地にはマンションが建設されることが多い点が特徴です。

設備

  • 食器洗浄機
  • 浄水器
  • IHクッキングヒーター
  • ディスポーザー
  • TV付き浴室
  • 浴室乾燥機
  • ミストサウナ
  • 追焚機能
  • シャンプードレッサー
  • 洗浄便座
  • ペアガラス
  • オール電化
  • 太陽光発電
  • 24時間換気システム
  • 床暖房
  • 電動シャッター雨戸
  • スロップシンク
  • TV付きインターホン
  • オートロック
  • 宅配ボックス
  • ロフト

ヒストリー

  • 1957.12.01

    新築

  • 2026.01.18

    本サイトに公開

  • 現在

  • 2026.02.16

    情報更新予定

※本サイトに公開:この物件がこのサイトに掲載された日です。※価格変更:この物件の価格がこのサイトで変更された日です。※情報更新予定:この物件の販売の継続、価格変更の有無など確認が行われ、情報が更新される予定の日です。

お問合せ

物件番号836976R

ウィル不動産販売 自由が丘営業所 詳細

フリーダイヤル0120-805-200
住所
目黒区自由が丘1-14-10
営業時間
10:00~19:00 定休日なし 
※年末年始除く

お名前・メールアドレスを入力してください。

お名前を入力してください。
電話番号を入力してください。
メールアドレスを入力してください。

お問合せ内容を選択してください。必須

ご質問・ご相談内容を入力してください。
任意
ご質問・ご相談内容を入力してください。
請求する資料を入力してください。
ご入力いただいた個人情報は、このサービスを提供する株式会社ウィルの個人情報保護方針に則って厳重に管理します。 お問合せ内容を、個人情報の取り扱いに関する基本姿勢に同意の上、送信してください。

交通

「大田区大森南2丁目 一戸建て 2,680万円」の最寄り駅、駅との高低差、ターミナル駅から終電時刻、バス停の時刻表など交通に関する情報をご案内しています。また行き先の駅はカスタマイズできます。

最寄り駅

東京モノレール羽田空港線「昭和島」駅の外観

東京モノレール羽田空港線「昭和島」駅

東京都大田区昭和島2-2-1物件から 徒歩17分
停車する電車
各停

駅までの道のり(高低差)

駅・空港へのアクセス

この物件東京都大田区大森南2丁目
17
東京モノレール「昭和島」駅物件から約 17
23
最終: 23時35分
物件から約 40

周辺環境

「大田区大森南2丁目 一戸建て 2,680万円」の住環境、近くにあるとうれしいとっておきのスポット(注目スポット)、街の住心地の口コミ(街の人の声)、当社の契約者からご回答いただいたアンケートなどをご紹介しています。

注目スポット

注目スポット
森ケ崎公園 詳細
所在:東京都大田区大森南5丁目2-111物件から徒歩 9

『森ケ崎公園』は、東京モノレール「昭和島駅」から南方向へ徒歩18分、「大森南5丁目」にある『森ケ崎水再生センター』の屋上に整備された公園です。サクラやウメ、ツヅジなど多くの樹木が植えられており、季節ごとに咲く草花を楽しむことができます。園内には木製アスレチック遊具や砂場、芝生の広場、バスケットゴール、テニスコートなどの運動施設が備えられています。また、園の南東角にある展望台からは羽田空港や富士山を望むことができるため、元日には「初日の出」を見るために多くの人が訪れています。

注目スポット
東糀谷第一公園 詳細
所在:東京都大田区東糀谷6丁目8-30物件から徒歩 13

『東糀谷第一公園』は京浜急行空港線「穴守稲荷駅」から北方向へ徒歩10分、「東糀谷6丁目」にある公園です。フェンスに囲まれた芝生広場と遊具広場に分かれており、芝生広場の周囲はサクラの木で囲まれており、春になるとお花見を楽しむことができます。一方、遊具広場には大きな複合遊具やブランコ、鉄棒、滑り台、砂場などがあります。園内は広々としているのでベビーカーでのお散歩や、子供が走り回って遊ぶのに適しています。

注目スポット
東糀谷防災公園 詳細
所在:東京都大田区東糀谷4丁目5-1物件から徒歩 14

『東糀谷防災公園』は、京急空港線「大鳥居駅」から北東方向へ徒歩10分、「東糀谷4丁目」にある公園です。大田区で初めて造られた防災公園で、地域の防災性を高めるため、地域防災活動の拠点として整備されました。本来の防災機能の他にレクリエーションの場となる芝生広場や、サクラ・ツツジなどの花木を眺めながらのウォーキングにちょうど良い周回園路などがあります。自然風石組みの流れる川(せせらぎ)では子供たちが遊べるようになっており、夏場はより賑わっています。

街の人の声

この街ボイス画像:マース さん(当社のご契約者)

マース さん(当社のご契約者)

大田区北千束2丁目在住

女性/62歳/2人家族

素敵な庭の家が多い閑静な住宅街 自慢できること 豊かな庭のあるお家が多く、静かな住宅街です。周辺のお庭は、お花が咲き乱れていたり、電飾で飾られていたりするので、気持ちが豊かになります。電車も駅がいくつか使えるので、その時の目的地にあった駅から出発することが出来て便利です。 気になること 駅前からもう住宅街となり、日々の買い物に少し困ります。某スーパーはありますが、満足できる材料を買いに行こうと思うと、少し歩いて行かなければいけません。そこが便利になると嬉しいです。駅に行くまで踏切があり、待っている間に電車が行ってしまうと悔しい気持ちになるので、そこが解消されると良いと思います。

この街ボイス画像:TY さん(当社のご契約者)

TY さん(当社のご契約者)

大田区東雪谷2丁目在住

女性/50歳/1人家族

便利かつ、都会とは思えないほど静かな町。 自慢できること 交通の便が良く、商店街にスーパー、コンビニ、郵便局などが揃っているので大変便利。また近くに神社や公園があり、環境もとても良い。都会とは思えない程静かで、夜も安心して歩ける。落ちついて生活出来る町だと思う。 気になること 飲食店はあるが、それ程多くない。おしゃれなカフェや飲食店があれば嬉しい。また、惣菜屋やお弁当屋が少ないので、もっと増えると嬉しい。商店街はあるが高齢化が進んでいる印象。もっと活気があればもっと魅力的な町になると思う。

この街ボイス画像:K さん(当社のご契約者)

K さん(当社のご契約者)

大田区羽田6丁目在住

女性/49歳/2人家族

品川・横浜方面に乗換なしでアクセス可 自慢できること 最寄り駅の天空橋駅は、京急と東京モノレールの2路線が利用でき、品川方面、横浜方面とも乗換なしで行くことができ大変便利です。羽田空港が近くにあり、遊びに行ったり間近に飛行機が見られます。多摩川の河口ということもあり、景色もよく、また野鳥も多く楽しい場所です。 気になること 近隣の羽田空港では、南風時の15時~19時の間の実質3時間程度、住宅地寄りの滑走路から飛行機が離陸することがあるため、窓を開けていると音が気になる方がいるかもしれません(私は楽しいと感じるのですが)

買物施設

「大田区大森南2丁目 一戸建て 2,680万円」最寄りのスーパーマーケットの営業時間、駐車場の有無、概要、物件との距離・高低差をご紹介しています。
まいばすけっと 大森南2丁目店

まいばすけっと 大森南2丁目店

東京都大田区大森南2-4-17 物件から徒歩 2
営業時間:7:00~24:00
ライフ 大森南店

ライフ 大森南店

東京都大田区大森南2-15-4 物件から徒歩 7
営業時間:9:00~21:30 駐車場:有(15台)

教育施設

「大田区大森南2丁目 一戸建て 2,680万円」の保育所、幼稚園、小学校、中学校までの距離と高低差、また当社のお客様からいただいた口コミ情報を掲載しています。
糀谷幼稚園

糀谷幼稚園 詳細

東京都大田区西糀谷3丁目5番22 物件から徒歩 19
『糀谷幼稚園』は、京急空港線「大鳥居駅」から北西方向へ徒歩10分、「西糀谷3丁目」にある私立のプライマリースクールです。東方向へ約260m歩いたところを国道131号が走り、敷地東側は『大田区立糀谷中学校』に隣接しています。1952年に開園。代表者は金子令子さんです。「自主的に物事に取り組む子に育てる」を教育目標としています。
大森第四小学校

大森第四小学校 詳細

東京都大田区大森南3丁目18番26 物件から徒歩 4
『大森第四小学校』は、京浜急行本線「梅屋敷駅」から東方向へ徒歩19分、「大森南3丁目」にある公立の小学校です。周辺は一戸建てや集合住宅に囲まれた住宅街で、東方向へ約350m歩いたところに『東京労災病院』があります。1933年に『東京市大森第四尋常小学校』として開校しました。「基礎基本を身につけ、主体的に自分の力で問題を解決し、未来を生きる子に育てる」を教育目標としています。
大森第一中学校

大森第一中学校 詳細

東京都大田区大森南5丁目6番5 物件から徒歩 10
『大森第一中学校』は、東京モノレール「昭和島駅」から南方向へ22分。「大森南5丁目」にある公立の中学校です。敷地南側は海取川に面し、敷地北側は『森ヶ崎公園』に隣接しています。1947年に開校しました。「決まりをよく守り、責任を果たす人になる」を教育目標としています。

物件データ

「大田区大森南2丁目 一戸建て 2,680万円」の所在、交通、広さなどの物件データ。物件概要ともよばれ、物件のことを理解する基本的な事項について書いています。ご不明な用語などありましたら、お気軽にお問合せください。

所在地
東京都大田区大森南2丁目
交通
東京モノレール羽田空港線「昭和島」駅徒歩17分
→東京モノレール羽田空港線沿線の不動産
→東京モノレール羽田空港線「昭和島」駅の不動産
京急空港線「大鳥居」駅徒歩20分
建物建築年月
1957年12月
構造・階数
木造 1階建
土地面積
87.13㎡
建物面積
56.61㎡
間取り
2LDK
接道状況
セットバック
私道負担面積
駐車場
路地状部分
傾斜地部分
現況
空家
引渡
相談
設備
電気/都市ガス/上下水道
用途地域
工業地域
国土法
不要
取引態様
媒介(仲介)
小学校区
大森第四小学校
→大森第四小学校区内の不動産
中学校区
大森第一中学校
→大森第一中学校区内の不動産
物件番号
836976R

※ 図面と現況が異なる場合は、現況優先と致します。
※ 掲載物件は成約済み・売却中止となる場合があります。
※ 成約の際は仲介手数料とこれにかかる消費税が必要です。(当社が売主の物件除く)
※ 写真に写っている、またはパース(絵)や間取り図に描かれている家具や車などは、特にコメントがない場合、物件価格に含まれません。
※ 価格は物件の代金総額を表示しており、消費税が課税される場合は税込価格です(1000円未満は切り上げ)。
※ コメント内に記載している土砂災害警戒区域は、土砂災害特別警戒区域に指定されている箇所も含んでおります。
※ 洪水浸水想定区域、土砂災害危険箇所、土砂災害警戒区域の指定状況については最新データとは限りません。最新データ・詳細なリスクの程度・範囲などについては各自治体の「ハザードマップ」をご確認下さい。

検索条件が似た物件

Loading...

不動産の購入に関するお問合せ

ウィル不動産販売 自由が丘営業所

ウィル不動産販売 自由が丘営業所詳細

フリーダイヤル

0120-805-200
営業時間
10:00~19:00 定休日なし
※年末年始除く
対応エリア
関西・名古屋・東京 詳細 対応エリア 関西(阪神間・北摂・大阪)エリア 神戸市(灘区・東灘区)、大阪市※、芦屋市、西宮市、宝塚市、尼崎市、伊丹市、川西市、猪名川町、豊能町、豊中市、吹田市、箕面市、池田市、摂津市、茨木市、高槻市、島本町 名古屋エリア 名古屋市、尾張旭市、長久手市、日進市、瀬戸市、春日井市、大府市 東京エリア 東京23区※、川崎市※、川口市 ※一部の区を除く
免許番号
国土交通大臣 (5)第6447号
加入団体
公益社団法人首都圏不動産公正取引協議会 
お名前を入力してください。
電話番号を入力してください。
メールアドレスを入力してください。

お問合せ内容を選択してください。必須

任意
ご質問・ご相談内容を入力してください。

スマホやパソコンのビデオ通話機能を使って住まいに関する様々なご相談ができます。

任意

具体的なご相談内容を選択してください。必須

ご入力いただいた個人情報は、このサービスを提供する株式会社ウィルの個人情報保護方針に則って厳重に管理します。 お問合せ内容を、個人情報の取り扱いに関する基本姿勢に同意の上、送信してください。

関連リンク

近くのエリアから一戸建てを探す
近くの町名から一戸建てを探す

購入:住まいをさがす

住まいをさがす(東京)TOP

特集

平日の家探しで仲介手数料30%OFF 新着物件お知らせメール 相場データ提供サービス 買替えシミュレーション 買替え成功のポイント 不動産相場価格推定システム 購入時・購入後のサポート 不動産用語
購入に関する問合せ
リフォームの事例写真

中古住宅を買ってリフォーム

中古住宅の購入とリフォームをセットで行うと、ライフスタイルや好みに合った住まいを実現できます。

十二十家具イメージ画像

十二十家具オンラインストア

当社が運営しているインテリアショップです。日々の暮らしが豊かになる良質な家具を取り揃えています。

期間報酬制度

家を売るとき、手数料最大半額

家を売るとき、取引成立時期に応じて手数料が最大半額。節約できたコストを売主様に還元します。

平日会員制度

家を買うとき、手数料30%OFF

平日利用の家探しで、手数料が30%割引。営業稼働率を上げて生まれる利益を買主様に還元します。

『検索条件の保存』にはログイン、またはウィルWEB会員の登録が必要です。

ウィルWEB会員の登録

お名前を入力してください。
メールアドレスを入力してください。
電話番号を入力してください。
パスワードは8〜20文字で、また半角英字、数字を最低1文字以上使用してください

※パスワードは半角英数字で8〜20文字。また英字、数字それぞれ1文字以上使用してください。

必須

現在、住まいに関して検討されていることを教えてください。(複数回答可)

任意

ご質問、ご要望などございましたら、ご自由にお書きください。
また、お住まいの購入をご検討の方は、物件の広さなどご希望条件を教えてください。

ご入力いただいた個人情報は、このサービスを提供する株式会社ウィルの個人情報保護方針に則って厳重に管理します。お問合せ内容を、個人情報の取り扱いに関する基本姿勢に同意の上、送信してください。