新築

大田区久が原4丁目 新築一戸建て(1号地)

13,890万円
所在
大田区 久が原4丁目
交通
東急池上線「 久が原 」駅徒歩7分
建物
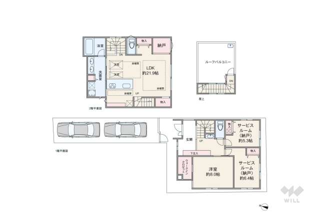
113.02平米 / 1SLDK / 2025年12月築
土地
114.7平米 / 北向き
学校
東調布第三小学校 / 大森第十中学校
大田区久が原4丁目 新築一戸建ての地図

物件所在地はおおよその位置です。ウィルWEB会員に登録すると正確な場所が表示されます。

第1種低層住居専用地域内にある木造2階建ての新築戸建
ポイント
★東急池上線「久が原駅」徒歩7分!
★第1種低層住居専用地域!
★全3区画の分譲地!
★敷地面積約34坪!
★『東調布第三小学校』徒歩7分!
★『まいばすけっと久が原3丁目店』徒歩4分!
★『雪谷文化センター』徒歩15分!
チェックポイント ◇『大森第十中学校』徒歩17分

特徴

  • 新築
  • 小学校10分以内
  • 買物施設10分以内
  • 低層住居地域
  • 2区画以上

担当者のコメント

この物件は東急池上線「久が原駅」から徒歩7分、『大田区久が原4丁目』にある新築一戸建てです。
周辺は一戸建てと低層の集合住宅が中心に立ち並ぶ住宅地。第1種低層住居専用地域に指定されています。
敷地面積は約34坪。全3区画の分譲地のうちの1区画。北付け道路。間取りは延床面積113.02平米の1SLDK。現況は建築中です。
教育施設は『みらいく久が原園』徒歩4分、『こひつじ幼稚園』徒歩5分、『東調布第三小学校』徒歩7分、『大森第十中学校』徒歩17分。買物施設は『まいばすけっと 久が原3丁目店』徒歩4分、『サミットストア 久が原店』徒歩7分、『東急ストア 久が原店』徒歩12分など…。その他『久が原特別出張所』が徒歩6分、『久が原図書館』が徒歩7分、『鵜の木特別出張所』が徒歩10分の距離にあります。

担当者

谷原 杏奈 谷原 杏奈(たにはら あんな) 宅地建物取引士

設備

  • 食器洗浄機
  • 浄水器
  • IHクッキングヒーター
  • ディスポーザー
  • TV付き浴室
  • 浴室乾燥機
  • ミストサウナ
  • 追焚機能
  • シャンプードレッサー
  • 洗浄便座
  • ペアガラス
  • オール電化
  • 太陽光発電
  • 24時間換気システム
  • 床暖房
  • 電動シャッター雨戸
  • スロップシンク
  • TV付きインターホン
  • オートロック
  • 宅配ボックス
  • ロフト

ヒストリー

  • 2025.09.16

    本サイトに公開

  • 2025.12.01

    新築

  • 現在

  • 2026.03.16

    情報更新予定

※本サイトに公開:この物件がこのサイトに掲載された日です。※価格変更:この物件の価格がこのサイトで変更された日です。※情報更新予定:この物件の販売の継続、価格変更の有無など確認が行われ、情報が更新される予定の日です。

お問合せ

物件番号823546R

ウィル不動産販売 自由が丘営業所 詳細

フリーダイヤル0120-805-200
住所
目黒区自由が丘1-14-10
営業時間
10:00~19:00 定休日なし 
※年末年始除く

お名前・メールアドレスを入力してください。

お名前を入力してください。
電話番号を入力してください。
メールアドレスを入力してください。

お問合せ内容を選択してください。必須

ご質問・ご相談内容を入力してください。
任意
ご質問・ご相談内容を入力してください。
請求する資料を入力してください。
ご入力いただいた個人情報は、このサービスを提供する株式会社ウィルの個人情報保護方針に則って厳重に管理します。 お問合せ内容を、個人情報の取り扱いに関する基本姿勢に同意の上、送信してください。

交通

「大田区久が原4丁目 一戸建て 13,890万円」の最寄り駅、駅との高低差、ターミナル駅から終電時刻、バス停の時刻表など交通に関する情報をご案内しています。また行き先の駅はカスタマイズできます。

最寄り駅

東急池上線「久が原」駅の外観

東急池上線「久が原」駅

東京都大田区南久が原2-6-10物件から 徒歩7分
停車する電車
各停

駅までの道のり(高低差)

駅・空港へのアクセス

この物件東京都大田区久が原4丁目
7
東急「久が原」駅物件から約 7
38
最終: 24時04分
物件から約 45

周辺環境

「大田区久が原4丁目 一戸建て 13,890万円」の住環境、近くにあるとうれしいとっておきのスポット(注目スポット)、街の住心地の口コミ(街の人の声)、当社の契約者からご回答いただいたアンケートなどをご紹介しています。

注目スポット

注目スポット
雪谷文化センター 詳細
所在:東京都大田区南雪谷5丁目18番3物件から徒歩 15

『雪谷文化センター』は、東急池上線「御嶽山駅」から北東方向へ徒歩11分、「南雪谷5丁目」にあるコミュニティーセンターです。1961年に『大田区青年館』として発足し、1985年に『雪谷文化センター』へと名称が変更されました。2つの集会室をはじめ、和室や調理室、バレーボールや卓球などの球技を行うことができる体育室、陶芸を行うことができる陶芸炉室などがあります。地域の文化活動の拠点としての役割を担っており、利用者に親しまれています。

街の人の声

この街ボイス画像:マース さん(当社のご契約者)

マース さん(当社のご契約者)

大田区北千束2丁目在住

女性/62歳/2人家族

素敵な庭の家が多い閑静な住宅街 自慢できること 豊かな庭のあるお家が多く、静かな住宅街です。周辺のお庭は、お花が咲き乱れていたり、電飾で飾られていたりするので、気持ちが豊かになります。電車も駅がいくつか使えるので、その時の目的地にあった駅から出発することが出来て便利です。 気になること 駅前からもう住宅街となり、日々の買い物に少し困ります。某スーパーはありますが、満足できる材料を買いに行こうと思うと、少し歩いて行かなければいけません。そこが便利になると嬉しいです。駅に行くまで踏切があり、待っている間に電車が行ってしまうと悔しい気持ちになるので、そこが解消されると良いと思います。

この街ボイス画像:TY さん(当社のご契約者)

TY さん(当社のご契約者)

大田区東雪谷2丁目在住

女性/50歳/1人家族

便利かつ、都会とは思えないほど静かな町。 自慢できること 交通の便が良く、商店街にスーパー、コンビニ、郵便局などが揃っているので大変便利。また近くに神社や公園があり、環境もとても良い。都会とは思えない程静かで、夜も安心して歩ける。落ちついて生活出来る町だと思う。 気になること 飲食店はあるが、それ程多くない。おしゃれなカフェや飲食店があれば嬉しい。また、惣菜屋やお弁当屋が少ないので、もっと増えると嬉しい。商店街はあるが高齢化が進んでいる印象。もっと活気があればもっと魅力的な町になると思う。

この街ボイス画像:K さん(当社のご契約者)

K さん(当社のご契約者)

大田区羽田6丁目在住

女性/49歳/2人家族

品川・横浜方面に乗換なしでアクセス可 自慢できること 最寄り駅の天空橋駅は、京急と東京モノレールの2路線が利用でき、品川方面、横浜方面とも乗換なしで行くことができ大変便利です。羽田空港が近くにあり、遊びに行ったり間近に飛行機が見られます。多摩川の河口ということもあり、景色もよく、また野鳥も多く楽しい場所です。 気になること 近隣の羽田空港では、南風時の15時~19時の間の実質3時間程度、住宅地寄りの滑走路から飛行機が離陸することがあるため、窓を開けていると音が気になる方がいるかもしれません(私は楽しいと感じるのですが)

買物施設

「大田区久が原4丁目 一戸建て 13,890万円」最寄りのスーパーマーケットの営業時間、駐車場の有無、概要、物件との距離・高低差をご紹介しています。
まいばすけっと 久が原3丁目店

まいばすけっと 久が原3丁目店

東京都大田区久が原3-30-10 物件から徒歩 4
営業時間:7:00~24:00
サミットストア 久が原店

サミットストア 久が原店

東京都大田区南久が原2-1-1 物件から徒歩 7
営業時間:9:00~24:00 駐車場:有

教育施設

「大田区久が原4丁目 一戸建て 13,890万円」の保育所、幼稚園、小学校、中学校までの距離と高低差、また当社のお客様からいただいた口コミ情報を掲載しています。
こひつじ幼稚園

こひつじ幼稚園 詳細

東京都大田区久が原4丁目37番14 物件から徒歩 5
『こひつじ幼稚園』は、東急池上線「千鳥町駅」から北西方向へ徒歩7分、「久が原4丁目」にある私立の幼稚園です。周辺は一戸建てや集合住宅に囲まれた住宅街で、北方向へ少し歩いたところに『大田区立大森第七中学校』があります。1948年に開園。運営法人は久がはら教会です。「子供らしく自由に生き生きと」を保育理念としています。
東調布第三小学校

東調布第三小学校 詳細

東京都大田区南久が原2丁目17番1 物件から徒歩 7
『東調布第三小学校』は、東急池上線「久が原駅」から南方向へ徒歩4分、「南久が原2丁目」にある公立の小学校です。西方向へ約150m歩いたところを環八通りが走り、南方向へ約250m歩いたところに『昭和のくらし博物館』があります。1927年に『東京府荏原郡調布尋常高等小学校第二分教場』として開校しました。著名な卒業生はミュージシャンのFukaseさんです。「思いや考えを伝え合ってよく考える子に育てる」を教育目標としています。
大森第十中学校

大森第十中学校 詳細

東京都大田区仲池上2丁目13番1 物件から徒歩 17
『大森第十中学校』は、都営浅草線「西馬込駅」から南西方向へ徒歩7分、「仲池上1丁目」にある公立の中学校です。敷地西側は十中通りに面し、南西方向へ約180m歩いたところに呑川があります。1947年に開校しました。「心身ともに健康な生徒に育てる」を教育目標としています。

物件データ

「大田区久が原4丁目 一戸建て 13,890万円」の所在、交通、広さなどの物件データ。物件概要ともよばれ、物件のことを理解する基本的な事項について書いています。ご不明な用語などありましたら、お気軽にお問合せください。

所在地
東京都大田区久が原4丁目
交通
東急池上線「久が原」駅徒歩7分
→東急池上線沿線の不動産
→東急池上線「久が原」駅の不動産
東急池上線「千鳥町」駅徒歩12分
建物建築年月
2025年12月
構造・階数
木造 2階建
土地面積
114.7㎡
建物面積
113.02㎡
間取り
1SLDK
接道状況
北側幅員約7.2mの公道に接道
セットバック
私道負担面積
駐車場
路地状部分
傾斜地部分
現況
建築中
引渡
相談
設備
建築確認番号
第2025SBC-確00380Y号
販売戸数
2区画
総戸数
3区画
用途地域
第1種低層住居専用地域
国土法
不要
取引態様
媒介(仲介)
小学校区
東調布第三小学校
→東調布第三小学校区内の不動産
中学校区
大森第十中学校
→大森第十中学校区内の不動産
物件番号
823546R
※物件所在地(番地):20(1号地)

※ 図面と現況が異なる場合は、現況優先と致します。
※ 掲載物件は成約済み・売却中止となる場合があります。
※ 成約の際は仲介手数料とこれにかかる消費税が必要です。(当社が売主の物件除く)
※ 写真に写っている、またはパース(絵)や間取り図に描かれている家具や車などは、特にコメントがない場合、物件価格に含まれません。
※ 価格は物件の代金総額を表示しており、消費税が課税される場合は税込価格です(1000円未満は切り上げ)。
※ コメント内に記載している土砂災害警戒区域は、土砂災害特別警戒区域に指定されている箇所も含んでおります。
※ 洪水浸水想定区域、土砂災害危険箇所、土砂災害警戒区域の指定状況については最新データとは限りません。最新データ・詳細なリスクの程度・範囲などについては各自治体の「ハザードマップ」をご確認下さい。

不動産の購入に関するお問合せ

ウィル不動産販売 自由が丘営業所

ウィル不動産販売 自由が丘営業所詳細

フリーダイヤル

0120-805-200
営業時間
10:00~19:00 定休日なし
※年末年始除く
対応エリア
関西・名古屋・東京 詳細 対応エリア 関西(阪神間・北摂・大阪)エリア 神戸市(灘区・東灘区)、大阪市※、芦屋市、西宮市、宝塚市、尼崎市、伊丹市、川西市、猪名川町、豊能町、豊中市、吹田市、箕面市、池田市、摂津市、茨木市、高槻市、島本町 名古屋エリア 名古屋市、尾張旭市、長久手市、日進市、瀬戸市、春日井市、大府市 東京エリア 東京23区※、川崎市※、川口市 ※一部の区を除く
免許番号
国土交通大臣 (5)第6447号
加入団体
公益社団法人首都圏不動産公正取引協議会 
お名前を入力してください。
電話番号を入力してください。
メールアドレスを入力してください。

お問合せ内容を選択してください。必須

任意
ご質問・ご相談内容を入力してください。

スマホやパソコンのビデオ通話機能を使って住まいに関する様々なご相談ができます。

任意

具体的なご相談内容を選択してください。必須

ご入力いただいた個人情報は、このサービスを提供する株式会社ウィルの個人情報保護方針に則って厳重に管理します。 お問合せ内容を、個人情報の取り扱いに関する基本姿勢に同意の上、送信してください。

関連リンク

近くのエリアから一戸建てを探す
近くの町名から一戸建てを探す

購入:住まいをさがす

住まいをさがす(東京)TOP

特集

平日の家探しで仲介手数料30%OFF 新着物件お知らせメール 相場データ提供サービス 買替えシミュレーション 買替え成功のポイント 不動産相場価格推定システム 購入時・購入後のサポート 不動産用語
購入に関する問合せ
リフォームの事例写真

中古住宅を買ってリフォーム

中古住宅の購入とリフォームをセットで行うと、ライフスタイルや好みに合った住まいを実現できます。

十二十家具イメージ画像

十二十家具オンラインストア

当社が運営しているインテリアショップです。日々の暮らしが豊かになる良質な家具を取り揃えています。

期間報酬制度

家を売るとき、手数料最大半額

家を売るとき、取引成立時期に応じて手数料が最大半額。節約できたコストを売主様に還元します。

平日会員制度

家を買うとき、手数料30%OFF

平日利用の家探しで、手数料が30%割引。営業稼働率を上げて生まれる利益を買主様に還元します。

『検索条件の保存』にはログイン、またはウィルWEB会員の登録が必要です。

ウィルWEB会員の登録

お名前を入力してください。
メールアドレスを入力してください。
電話番号を入力してください。
パスワードは8〜20文字で、また半角英字、数字を最低1文字以上使用してください

※パスワードは半角英数字で8〜20文字。また英字、数字それぞれ1文字以上使用してください。

必須

現在、住まいに関して検討されていることを教えてください。(複数回答可)

任意

ご質問、ご要望などございましたら、ご自由にお書きください。
また、お住まいの購入をご検討の方は、物件の広さなどご希望条件を教えてください。

ご入力いただいた個人情報は、このサービスを提供する株式会社ウィルの個人情報保護方針に則って厳重に管理します。お問合せ内容を、個人情報の取り扱いに関する基本姿勢に同意の上、送信してください。