大田区京浜島2丁目 店舗

12,500万円
所在
大田区 京浜島2丁目
交通
東京モノレール羽田空港線「 昭和島 」駅徒歩29分
建物
259.23平米 / 倉庫 / 1983年4月築
土地
198.01平米 / 南東向き
学校
大森第五小学校 / 大森第二中学校
大田区京浜島2丁目 店舗の地図

物件所在地はおおよその位置です。ウィルWEB会員に登録すると正確な場所が表示されます。

南東付け道路で採光良好、京浜島に立地する敷地面積約59坪・鉄骨造3階建ての倉庫 クレーン付き
ポイント
★東京モノレール羽田空港線「昭和島駅」徒歩29分!
★京浜島に立地!
★南東付け道路で採光良好!
★敷地面積約59坪!
★接道間口約10.4m!
★クレーン付き!
★現在は空き家!
★『京浜島防災広場』徒歩4分!
チェックポイント ◇『大森第五小学校』徒歩45分
◇『大森第二中学校』徒歩52分
◇『まいばすけっと大森南2丁目店』約3.8km

特徴

  • 南道路
  • 買物施設10分以内
  • 中古

担当者のコメント

この物件は東京モノレール羽田空港線「昭和島駅」から徒歩29分、『大田区京浜島2丁目』にある店舗です。
周辺は。工業専用地域に指定されています。
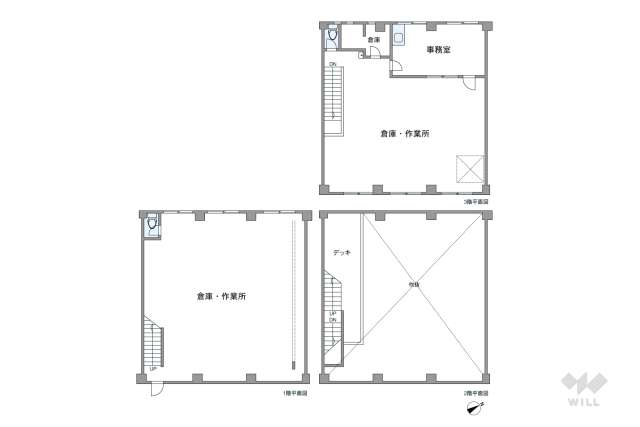
敷地面積は約59坪(別途、約501.41平米のうち持ち分294313分の19801の私道負担有り)。南東付け道路で採光良好。建物は1983年4月築の鉄骨造3階建て。延床面積は259.23平米(1階:倉庫・作業場・トイレ・荷捌きスペース、2階:デッキ・吹抜、3階:倉庫・作業場・事務室・トイレ・ミニキッチン)。2025年4月にリフォーム実施。現況は空き家です。【リフォーム内容:ミニキッチン・全トイレ(温水洗浄機能付)新調、壁・床塗装、室内クリーニングなど。】
教育施設は『大森第五小学校』徒歩45分、『大森第二中学校』徒歩52分。最寄りのスーパーは『まいばすけっと 大森南2丁目店』約3.8km。その他『京浜島防災広場』が徒歩4分、『芝生広場(京浜島つばさ公園)』が徒歩6分、『京浜島ふ頭公園』が徒歩8分の距離にあります。

担当者

神鳥 直人 神鳥 直人(かんどり なおと) 宅地建物取引士

不動産用語

私道
私道は、個人や企業が所有している道のこと。私道に面した一戸建てや土地を購入する場合は、いくつかの注意が必要です。例えば、【注意点1】道路の維持管理を所有者が行う必要があること。【注意点2】通行の制限を受けたり、掘削に際して承諾や承諾料を求められたりする場合があること。【注意点3】建築確認が受けられず、建物の建築が出来ない場合があること(ただし、特定行政庁から指定を受けた位置指定道路の場合は、基本的に建築が可能)などです。また私道についての取り決めを記載した覚書などの書類がある場合もあります。私道に面した不動産の購入を検討の場合は、詳細をお問い合わせください。
私道負担
私道負担とは、敷地内に私道部分が含まれている場合や敷地のほかに私道部分を別途保有または共有している場合のことをいいます。また、接道義務を果たす目的で私道負担が発生することもあります。接道義務とは、「建物の敷地は幅4メートル以上の道路に2メートル以上接していなければならない」という建物建築の際に必要となる条件のことです。私道負担をした部分は土地所有者の持分となるため、一般的に敷地を売却する際はその部分も合わせて売却します。

設備

  • 食器洗浄機
  • 浄水器
  • IHクッキングヒーター
  • ディスポーザー
  • TV付き浴室
  • 浴室乾燥機
  • ミストサウナ
  • 追焚機能
  • シャンプードレッサー
  • 洗浄便座
  • ペアガラス
  • オール電化
  • 太陽光発電
  • 24時間換気システム
  • 床暖房
  • 電動シャッター雨戸
  • スロップシンク
  • TV付きインターホン
  • オートロック
  • 宅配ボックス
  • ロフト

ヒストリー

  • 1983.04.01

    新築

  • 2025.08.20

    本サイトに公開

  • 現在

  • 2025.11.17

    情報更新予定

※本サイトに公開:この物件がこのサイトに掲載された日です。※価格変更:この物件の価格がこのサイトで変更された日です。※情報更新予定:この物件の販売の継続、価格変更の有無など確認が行われ、情報が更新される予定の日です。

お問合せ

物件番号761392R

ウィル不動産販売 自由が丘営業所 詳細

フリーダイヤル0120-805-200
住所
目黒区自由が丘1-14-10
営業時間
10:00~19:00 定休日なし 
※年末年始除く

お名前・メールアドレスを入力してください。

お名前を入力してください。
電話番号を入力してください。
メールアドレスを入力してください。

お問合せ内容を選択してください。必須

ご質問・ご相談内容を入力してください。
任意
ご質問・ご相談内容を入力してください。
請求する資料を入力してください。
ご入力いただいた個人情報は、このサービスを提供する株式会社ウィルの個人情報保護方針に則って厳重に管理します。 お問合せ内容を、個人情報の取り扱いに関する基本姿勢に同意の上、送信してください。

交通

「大田区京浜島2丁目 店舗 12,500万円」の最寄り駅、駅との高低差、ターミナル駅から終電時刻、バス停の時刻表など交通に関する情報をご案内しています。また行き先の駅はカスタマイズできます。

最寄り駅

東京モノレール羽田空港線「昭和島」駅の外観

東京モノレール羽田空港線「昭和島」駅

東京都大田区昭和島2-2-1物件から 徒歩29分
停車する電車
各停

駅までの道のり(高低差)

駅・空港へのアクセス

この物件東京都大田区京浜島2丁目
29
東京モノレール「昭和島」駅物件から約 29
23
最終: 23時35分
物件から約 52

周辺環境

「大田区京浜島2丁目 店舗 12,500万円」の住環境、近くにあるとうれしいとっておきのスポット(注目スポット)、街の住心地の口コミ(街の人の声)、当社の契約者からご回答いただいたアンケートなどをご紹介しています。

注目スポット

注目スポット
京浜島防災広場 詳細
所在:東京都大田区京浜島2丁目10-1物件から徒歩 4

『京浜島防災広場』は、東京モノレール「昭和島駅」から東方向へ徒歩25分、「京浜島2丁目」にある運動競技場です。広々とした広場では少年サッカーやソフトボールなどのスポーツを行うことができます。グランド周辺にはベンチなども備えられています。子供たちがスポーツに取り組む場所として親しまれています。

注目スポット
芝生広場(京浜島つばさ公園) 詳細
所在:東京都大田区京浜島2丁目4-5物件から徒歩 6

『芝生広場(京浜島つばさ公園)』は、東京モノレール「昭和島駅」から東方向へ徒歩30分、「京浜島2丁目」にある公園です。『羽田空港』に面した全長約1.1kmの公園で、空港を離着陸する飛行機を眺めることができます。公園の北側にある『芝生広場』ではバーベキューやデイキャンプを楽しむことができるようになっており、多くの人が訪れ賑わっています。

注目スポット
京浜島ふ頭公園 詳細
所在:東京都大田区京浜島2丁目1物件から徒歩 8

『京浜島ふ頭公園』は、東京モノレール「昭和島駅」から東方向へ徒歩20分、「京浜島2丁目」にある公園です。京浜大橋のそばの「京浜島」という人工島にある大変緑が豊かな公園。桜、モミジ、藤棚などがあり、広々としているのでゆったりお花見を楽しむことができます。公園の中央は広い芝生広場になっており、遊具はありませんが子供が走り回って遊ぶには最適です。小さな子どもでも安心して遊ぶことができる公園となっています、

街の人の声

この街ボイス画像:TY さん(当社のご契約者)

TY さん(当社のご契約者)

大田区東雪谷2丁目在住

女性/50歳/1人家族

便利かつ、都会とは思えないほど静かな町。 自慢できること 交通の便が良く、商店街にスーパー、コンビニ、郵便局などが揃っているので大変便利。また近くに神社や公園があり、環境もとても良い。都会とは思えない程静かで、夜も安心して歩ける。落ちついて生活出来る町だと思う。 気になること 飲食店はあるが、それ程多くない。おしゃれなカフェや飲食店があれば嬉しい。また、惣菜屋やお弁当屋が少ないので、もっと増えると嬉しい。商店街はあるが高齢化が進んでいる印象。もっと活気があればもっと魅力的な町になると思う。

この街ボイス画像:K さん(当社のご契約者)

K さん(当社のご契約者)

大田区羽田6丁目在住

女性/49歳/2人家族

品川・横浜方面に乗換なしでアクセス可 自慢できること 最寄り駅の天空橋駅は、京急と東京モノレールの2路線が利用でき、品川方面、横浜方面とも乗換なしで行くことができ大変便利です。羽田空港が近くにあり、遊びに行ったり間近に飛行機が見られます。多摩川の河口ということもあり、景色もよく、また野鳥も多く楽しい場所です。 気になること 近隣の羽田空港では、南風時の15時~19時の間の実質3時間程度、住宅地寄りの滑走路から飛行機が離陸することがあるため、窓を開けていると音が気になる方がいるかもしれません(私は楽しいと感じるのですが)

この街ボイス画像:Ellington さん(当社のご契約者)

Ellington さん(当社のご契約者)

大田区大森北1丁目在住

男性/53歳/1人家族

出張に便利!生活しやすい街です。 自慢できること 京浜東北線の大森駅と京浜急行の大森海岸駅の2駅が使えて通勤に便利です。羽田空港へのアクセスが良く出張が楽になりました。買い物施設や飲食店が多数存在し、映画館や水族館なども近いです。治安も悪くないので非常に生活しやすい町です。 気になること 暮していて不満に感じることは殆どありませんが、海に近いこともあり自然災害に対しては若干の不安は感じます。その点では大森駅周辺でも西側(山王地区)の方が安心かもしれません。私自身は平坦で商業施設が多い東側が気に入っています。

買物施設

「大田区京浜島2丁目 店舗 12,500万円」最寄りのスーパーマーケットの営業時間、駐車場の有無、概要、物件との距離・高低差をご紹介しています。
まいばすけっと 大森南2丁目店

まいばすけっと 大森南2丁目店

東京都大田区大森南2-4-17 物件から 約3.8km
営業時間:7:00~24:00

教育施設

「大田区京浜島2丁目 店舗 12,500万円」の保育所、幼稚園、小学校、中学校までの距離と高低差、また当社のお客様からいただいた口コミ情報を掲載しています。
大森第五小学校

大森第五小学校 詳細

東京都大田区大森本町1丁目10番5 物件から徒歩 45
『大森第五小学校』は、京浜急行本線「平和島駅」から北東方向へ徒歩7分、「大森本町1丁目」にある公立の小学校です。西方向へ少し歩いたところを国道15号が走り、敷地東側は『平和の森公園』に隣接しています。1934年に開校しました。「いつも明るく元気な子に育てる」を教育目標としています。
大森第二中学校

大森第二中学校 詳細

東京都大田区大森北6丁目18番1 物件から徒歩 52
『大森第二中学校』は、京浜急行本線「平和島駅」から西方向へ徒歩4分、「大森北6丁目」にある公立の中学校です。南方向へ約140m歩いたところを環七通りが走り、南西方向へ約290m歩いたところに『天狗湯』があります。1947年に開校しました。「深く考える人に育てる」を教育目標としています、

物件データ

「大田区京浜島2丁目 店舗 12,500万円」の所在、交通、広さなどの物件データ。物件概要ともよばれ、物件のことを理解する基本的な事項について書いています。ご不明な用語などありましたら、お気軽にお問合せください。

所在地
東京都大田区京浜島2丁目
交通
東京モノレール羽田空港線「昭和島」駅徒歩29分
→東京モノレール羽田空港線沿線の不動産
→東京モノレール羽田空港線「昭和島」駅の不動産
建物建築年月
1983年4月
構造・階数
鉄骨造 3階建
土地面積
198.01㎡
建物面積
259.23㎡
間取り
倉庫
接道状況
南東側幅員約6mの私道に約10.4m接道
セットバック
私道負担面積
501.41㎡(持ち分294313分の19801)
駐車場
路地状部分
傾斜地部分
現況
空家
引渡
相談
設備
電気/上下水道/都市ガス
用途地域
工業専用地域
国土法
不要
取引態様
媒介(仲介)
小学校区
大森第五小学校
→大森第五小学校区内の不動産
中学校区
大森第二中学校
→大森第二中学校区内の不動産
物件番号
761392R

※ 図面と現況が異なる場合は、現況優先と致します。
※ 掲載物件は成約済み・売却中止となる場合があります。
※ 成約の際は仲介手数料とこれにかかる消費税が必要です。(当社が売主の物件除く)
※ 写真に写っている、またはパース(絵)や間取り図に描かれている家具や車などは、特にコメントがない場合、物件価格に含まれません。
※ 価格は物件の代金総額を表示しており、消費税が課税される場合は税込価格です(1000円未満は切り上げ)。
※ コメント内に記載している土砂災害警戒区域は、土砂災害特別警戒区域に指定されている箇所も含んでおります。
※ 洪水浸水想定区域、土砂災害危険箇所、土砂災害警戒区域の指定状況については最新データとは限りません。最新データ・詳細なリスクの程度・範囲などについては各自治体の「ハザードマップ」をご確認下さい。

不動産の購入に関するお問合せ

ウィル不動産販売 自由が丘営業所

ウィル不動産販売 自由が丘営業所詳細

フリーダイヤル

0120-805-200
営業時間
10:00~19:00 定休日なし
※年末年始除く
対応エリア
関西・名古屋・東京 詳細 対応エリア 関西(阪神間・北摂・大阪)エリア 神戸市(灘区・東灘区)、大阪市※、芦屋市、西宮市、宝塚市、尼崎市、伊丹市、川西市、猪名川町、豊能町、豊中市、吹田市、箕面市、池田市、摂津市、茨木市、高槻市、島本町 名古屋エリア 名古屋市、尾張旭市、長久手市、日進市、瀬戸市、春日井市、大府市 東京エリア 東京23区※、川崎市※、川口市 ※一部の区を除く
免許番号
国土交通大臣 (5)第6447号
加入団体
公益社団法人首都圏不動産公正取引協議会 
お名前を入力してください。
電話番号を入力してください。
メールアドレスを入力してください。

お問合せ内容を選択してください。必須

任意
ご質問・ご相談内容を入力してください。

スマホやパソコンのビデオ通話機能を使って住まいに関する様々なご相談ができます。

任意

具体的なご相談内容を選択してください。必須

ご入力いただいた個人情報は、このサービスを提供する株式会社ウィルの個人情報保護方針に則って厳重に管理します。 お問合せ内容を、個人情報の取り扱いに関する基本姿勢に同意の上、送信してください。

関連リンク

近くのエリアから一戸建てを探す
近くの町名から一戸建てを探す

購入:住まいをさがす

住まいをさがす(東京)TOP

物件を検索する

住所からさがす 沿線・駅からさがす 学校区からさがす 特徴からさがす

特集

平日の家探しで仲介手数料30%OFF 新着物件お知らせメール 相場データ提供サービス 買替えシミュレーション 買替え成功のポイント 不動産相場価格推定システム 購入時・購入後のサポート 不動産用語
購入に関する問合せ
リフォームの事例写真

中古住宅を買ってリフォーム

中古住宅の購入とリフォームをセットで行うと、ライフスタイルや好みに合った住まいを実現できます。

十二十家具イメージ画像

十二十家具オンラインストア

当社が運営しているインテリアショップです。日々の暮らしが豊かになる良質な家具を取り揃えています。

期間報酬制度

家を売るとき、手数料最大半額

家を売るとき、取引成立時期に応じて手数料が最大半額。節約できたコストを売主様に還元します。

平日会員制度

家を買うとき、手数料30%OFF

平日利用の家探しで、手数料が30%割引。営業稼働率を上げて生まれる利益を買主様に還元します。

『検索条件の保存』にはログイン、またはウィルWEB会員の登録が必要です。

ウィルWEB会員の登録

お名前を入力してください。
メールアドレスを入力してください。
電話番号を入力してください。
パスワードは8〜20文字で、また半角英字、数字を最低1文字以上使用してください

※パスワードは半角英数字で8〜20文字。また英字、数字それぞれ1文字以上使用してください。

必須

現在、住まいに関して検討されていることを教えてください。(複数回答可)

任意

ご質問、ご要望などございましたら、ご自由にお書きください。
また、お住まいの購入をご検討の方は、物件の広さなどご希望条件を教えてください。

ご入力いただいた個人情報は、このサービスを提供する株式会社ウィルの個人情報保護方針に則って厳重に管理します。お問合せ内容を、個人情報の取り扱いに関する基本姿勢に同意の上、送信してください。